Строительство бани 3х4: шаг за шагом
- Строительство бани 3х4: шаг за шагом
- Связанные вопросы и ответы
- Какие материалы нужно использовать для строительства бани 3х4
- Как правильно спланировать проект бани 3х4
- Как обеспечить безопасность и комфорт при строительстве бани 3х4
- Какие особенности необходимо учесть при проектировании бани 3х4
- Как выбрать подходящий дизайн для бани 3х4
- Как сделать бани 3х4 энергоэффективной
- Как создать комфортную атмосферу в бане 3х4
- Какие особенности конструкции необходимо учесть при строительстве бани 3х4
Строительство бани 3х4: шаг за шагом
Проекты бань из бруса 3х4 — чертеж
Владельцам небольших земельных участков приходится постоянно идти на разного рода выдумки и ухищрения, чтобы компактно разместить на имеющейся территории все необходимые постройки, насаждения и прочие элементы.

Проекты бань из бруса 3х4
В особенности актуальным в подобных условиях является вопрос обустройства бани. Даже если места совсем мало, при грамотном подходе все равно можно возвести полноценное строение со всеми необходимыми помещениями: парилкой, помывочной и предбанником. К примеру, прекрасным вариантом для маленького участка является компактная баня из бруса 3х4 м: древесина известна как полностью безопасный для человека, экологически чистый материал, а возведение подобной небольшой конструкции при условии правильного планирования не потребует от исполнителя чрезмерных усилий и финансовых затрат.

На фото- типовая баня 3 на 4, построенная из бруса
Ознакомившись с нижеизложенной информацией, вы в подробностях рассмотрите наиболее удачный вариант проекта бани из бруса 3х4 м, сможете изучить необходимые сопутствующие чертежи и в целом получите ряд полезных сведений в отношении грамотного проектирования компактных строений подобного предназначения.
Преимущества бани размерами 3х4 м
Баня 3х4
Преимущества бани размерами 3х4 мНесмотря на более чем скромные габариты, баня размерами 3х4 м имеет ряд преимуществ перед более внушительными по своим размерам строениями:
- экономия на возведении и обустройстве. Строительно-отделочные работы требуют сравнительно малого количества материалов. При этом их расход будет максимально экономным. К примеру, стандартная длина бруса у подавляющего большинства производителей составляет 600 см. Для возведения 3-метровой стены деревянную балку можно будет распилить на 2 равные части и использовать без отходов;

Брус деревянный
- сравнительно быстрые сроки возведения. В процессе изучения представленной далее проектной документации вы поймете, что в конструкции рассматриваемой бани нет никаких сложных элементов и труднореализуемых архитектурных решений. Следуя плану, вы сможете спроектировать и при желании даже возвести такую баню собственными силами, не тратя деньги на оплату услуг сторонних работников;
- надежность и длительный срок службы строения. Компактные габариты рассматриваемой бани позволяют минимизировать расход материалов, что дает возможность покупать высококачественное сырье без особого удара по бюджету;

Строительство бани
- относительная простота последующей регистрации готовой бани в кадастровых органах. Многие застройщики и вовсе игнорируют данный этап. Однако если в будущем вы планируете продать участок на выгодных условиях, лучше узаконить постройку. Наличие проекта позволит сделать это с минимальными временными и финансовыми затратами, упростив процедуру регистрации в целом.

Связанные вопросы и ответы:
Вопрос 1: Какие материалы необходимы для строительства бани 3х4
Ответ: Для строительства бани 3х4 необходимы следующие материалы: брусья, доски, металлические скобы, металлические крепления, кирпичи, бетон, пенопласт, гипсокартон, кровельный материал, клеенка, металлическая кровельная черепица, гипсокартонные панели, стеклопластиковые окна, двери, водопроводные и канализационные трубы, электропроводка, электрощиток, электрощиты, светильники, напольные и настенные покрытия, печи и камины, сауна, душевые кабины, ванны, умывальники, унитазы, смесители, краны, водонагреватель, теплоизоляционные материалы, штукатурка, краски и лаки.
Вопрос 2: Как правильно построить фундамент для бани 3х4
Ответ: Для правильного построения фундамента для бани 3х4 необходимо выполнить следующие действия:
1. Определить место для строительства бани.
2. Очистить место от растительности и грунта.
3. Определить тип фундамента (например, свайный или монолитный).
4. Выровнять поверхность места для строительства.
5. Выкопать котлован для фундамента.
6. Уложить бетонный раствор в котлован.
7. Оформить фундамент в соответствии с типом фундамента.
8. Ожидать высыхания бетона.
9. После высыхания бетона, проверить уровень и плотность фундамента.
Вопрос 3: Как правильно выбрать материалы для стен бани 3х4
Ответ: Для правильного выбора материалов для стен бани 3х4 необходимо учитывать следующие факторы:
1. Теплоизоляция: выбор материалов должен учитывать их теплоизоляционные свойства, чтобы сохранить тепло в бане.
2. Водостойкость: материалы должны быть водостойкими, чтобы избежать повреждений от влаги.
3. Прочность: материалы должны быть прочными и долговечными, чтобы выдерживать нагрузку и выдерживать износоустойчивость.
4. Огнестойкость: материалы должны быть огнестойкими, чтобы избежать пожаров.
5. Эстетический вид: материалы должны соответствовать вкусу и предпочтениям владельца бани.
Вопрос 4: Как правильно построить крышу для бани 3х4
Ответ: Для правильного построения крыши для бани 3х4 необходимо выполнить следующие действия:
1. Определить тип крыши (например, плоская, скатная, четырехскатная).
2. Выбрать материалы для крыши (например, металлическая черепица, шифер, кровельный лист).
3. Определить размеры крыши и вырезать материалы.
4. Установить кровельные балки и стропила.
5. Установить гипсокартонные панели на стропила.
6. Установить кровельный материал на гипсокартонные панели.
7. Установить водостойкий элемент (например, гипсокартонную кровельную черепицу).
8. Установить кровельные панели и скобы.
9. Установить кровельную черепицу или другие материалы для крыши.
10. Оформить кровельные углы и водостойкие элементы.
Вопрос 5: Как правильно устроить вентиляцию в бане 3х4
Ответ: Для правильного устроения вентиляции в бане 3х4 необходимо выполнить следующие действия:
1. Определить тип вентиляции (например, естественная или принудительная).
2. Выбрать место для вентиляционных отверстий (например, в потолке или стенах).
3. Установить вентиляционные каналы и решётки.
4. Установить вентиляционные элементы (например, вентиляторы или решётки).
5. Установить элементы для отвода влаги (например, конденсатоуловитель или электровентилятор).
6. Установить элементы для очистки воздуха (например, фильтры или улавливатели пыли).
7. Проверить работу вентиляции и регулировать её, если необходимо.
Вопрос 6: Как правильно устроить электропроводку в бане 3х4
Ответ: Для правильного устроения электропроводки в бане 3х4 необходимо выполнить следующие действия:
1. Определить место для электрощита и электрощитов.
2. Установить электрощит и электрощиты.
3. Установить электропроводку (например, кабели, разъёмы, выключатели).
4. Установить электрические приборы (например, светильники, напольные и настенные покрытия, электроплиты, электропечи).
5. Установить электрические устройства (например, водонагреватели, душевые кабины, сауны, камины).
6. Проверить работу электропроводки и регулировать её, если необходимо.
Вопрос 7: Как правильно устроить систему отопления в бане 3х4
Ответ: Для правильного устроения системы отопления в бане 3х4 необходимо выполнить следующие действия:
1. Определить тип отопления (например, газовое, электрическое, биомассовое).
2. Выбрать место для отопительного оборудования (например, печи, каминов, водонагревателей).
3. Установить отопительное оборудование.
4. Установить систему вентиляции для отвода продуктов сгорания.
5. Установить систему теплоизоляции для сохранения тепла.
6. Установить систему управления отоплением (например, термостаты, датчики температуры).
7. Проверить работу системы отопления и регулировать её, если необходимо.
Какие материалы нужно использовать для строительства бани 3х4
Лучшая баня для приусадебного участка изготавливается из бревен. Планировка бани с размерами 3 на 4 из бруса выполняется по общим правилам, о которых будет сказано ниже.
Сруб должен делать мастер. Без опыта, знаний построить деревянную постройку сложно. Здание из бревен не нуждается в декоративной отделке.
Строительный материал выбирают в зависимости от региона проживания, финансовых возможностей. Жителям Сибири, Урала выгоднее заказать древесину через местный лесхоз, чем покупать кирпич. Проживающему на Кавказе населению доступен дикий камень, которого много по берегам горных рек. На юге можно применить:
- пеноблоки;
- саман;
- газосиликатные модули.
Кирпич подойдет, если есть деньги, чтобы нанять опытных каменщиков.
Как правильно спланировать проект бани 3х4
Планируя постройку бани, прежде всего, нужно определиться с тем, какой она будет. Не стоит брать идеи из головы. Лучше ориентироваться на классические концепции. Рассмотрим самые популярные типы бань со всего мира.
Для начала стоит упомянуть деление строений по уровню влажности:
- К первой категории относятся бани, которые прогреваются сухим паром. Температура в таких помещениях получается самой высокой. Она варьируется от шестидесяти до ста двадцати градусов. Влажность там, наоборот, очень низкая – не выше двадцати пяти процентов.
- Вторая группа – сырые бани. В таких комнатах температура ниже – около 60 градусов. А вот влажность повышена.
- Водяные бани прогреваются горячей водой.
По таким принципам прогреваются все разновидности таких помещений:
- Римская. Один из самых старинных видов бань. Она состоит из пяти комнат, которые соединены между собой. Первая комната называется предбанником. Вторая носит условное название теплой. Если в первой – температура совсем низкая, то в этой комнате она уже повышается. В третьей, жаркой, еще теплее. А четвертую уже называют парной. Традиционно в этом помещении температура достигает 85 градусов. В некоторых случаях бывает даже выше. Пятая считается разгрузочной и там уже становится холоднее.
- Ирландская. Этот тип бани похож на предыдущий. Но есть и некие отличия. Самое главное из них – комнаты тут не переходят одна в другую, а выходят дверями в общий коридор. Так что не нужно непременно переходить из одного помещения в другое, можно заходить в любое по желанию.
- Русская. Это самый привычный для нас тип бань. В такой постройке всегда есть небольшой предбанник, моечная и парная. В парной располагается еще одна отличительная деталь русской бани – настоящая печь.
- Финская. Такой тип парилки еще называют сауной. Финская баня состоит из одного помещения. Оно обогревается при помощи горячего пара. Влажность в комнате понижена до минимума.
- Офуро. Этим термином называют японские бани. Хотя простому русскому человеку сложно поверить в то, что это полноценная парилка. По сути, это простая бочка, наполненная горячей водой. Жидкость, заполняющая эту емкость, разогревается до шестидесяти градусов и дополняется разными целебными травами, которые тоже благотворно влияют на состояние здоровья и кожного покрова. По задумке создателей, в этом целебном отваре человек должен провести 10 минут или даже больше. Но даже людям с очень хорошим здоровьем это не всегда удается.
- Хаммам. Последний тип бань – турецкая. Она относится к категории водяных. Помещение такого типа лучше всего подходит для тех, кто не любит или по состоянию здоровья не выдерживает воздействие высоких температур. Основная деталь хаммама – это большой бассейн с горячей водой. Правда, до момента, когда посетитель бани доберется до этого бассейна, ему приходится окунуться еще в несколько емкостей с более холодной водой.
Как уже понятно, хаммамы обычно достаточно большие, и уместить все необходимые детали на территории размером 3х4 практически невозможно.
Как обеспечить безопасность и комфорт при строительстве бани 3х4
Многие домовладельцы предпочитают строить на участке небольшие бани из-за очевидных выгод:
- на строительство постройки уходит меньшее количество строительных материалов;
- мини–бани можно возводить самостоятельно, без найма специалистов;
- на строительство здания уходит 2-3 недели.
Для отопления выгодно применять электронагреватели. Коммунальные расходы при этом не будут разорительными. Маленькая парная быстро прогревается.
Особенности строительства:
- Правильная планировка бани 3 на 4, учитывает количество человек, проживающих в доме. Парная для большого семейства, должна иметь размеры 2 на 3 метра.
- Если намечаются посиделки с друзьями, выделяют комнату отдыха. План создается с учетом возможностей, пожеланий домовладельца.
Функцию комнаты отдыха может выполнять предбанникИсточник p0.zoon.ru
Важно! При строительстве нужно предусмотреть теплоизоляцию парилки, душевой. Для этой цели используют стекловолокно, минеральную вату.
Баня 3х4 м: основные сведения о проекте
Строительство дачного банного мини-комплекса относят к возведению хозяйственных построек на частном участке и регламентируют утвержденным на государственном уровне документом СНиП 30-02-97. Изучите строительные и санитарные нормы перед выбором места для возведения сооружения, чтобы обеспечить пожарную и гигиеническую безопасность.
Собственную баню требуется строить на наиболее подходящей территории. Для этого нужно проанализировать следующие аспекты:
- тип почв. Под постройку выбирайте незаболоченные равнинные участки. От характера грунта зависит выбор вида фундаментного яруса;
- глубина залегания водоносного горизонта. Оценивайте территорию после схода снега и во время снижения уровня грунтовых вод. Нельзя допускать подмывание фундамента;
- климатические особенности вашего региона. Проанализируйте глубину промерзания почвенного субстрата, угрозу подтопления паводковыми водами и сейсмическую активность для подбора надежного основания под постройку, которое обеспечит долгосрочную эксплуатацию здания;
- расположение относительно других объектов на дачном или частном участке. Слив воды из бани, водонабор, протопка требует соблюдения санитарной и пожарной безопасности;
- электрификация. Подача электроэнергии должна осуществляться от общего щитка, питающего жилой или дачный дом и другие объекты на вашей территории;
- гармонию с общим ландшафтом участка. Предусмотрите, чтобы строение органично вписывалось в общий вид территории, его внешний вид сочетался с соседствующими объектами.
Какие особенности необходимо учесть при проектировании бани 3х4
6 мин.
Придомовая территория
Владельцам небольших земельных участков всегда приходится идти на компромисс, позволяющий при недостаточной площади создать строение, отвечающее всем запросам хозяев. Полноценная баня — одна из причин головной боли, ведь она при компактных размерах все же должна быть удобной и функциональной. Лучшее решение при дефиците свободного пространства — проект бани 3 на 4. Несмотря на скромные размеры в ней без труда можно разместить все необходимые помещения с максимальным комфортом. Плюс небольшого здания — возможность возвести его самостоятельно в относительно короткие сроки. Надо только выбрать наилучшую планировку, отвечающую всем требованиям хозяев.
Есть ли преимущества у такой бани?
Экономия — самый важный плюс, так как немногие участки могут позволить отнимать большую площадь у посадок и множества других необходимых строений. Если принять во внимание малые масштабы строительства, то они дадут возможность купить самые качественные материалы, но при этом не «вылететь в трубу».

Последняя возможность — шанс соорудить конструкцию, в прочности которой сомнений не возникнет. Сроки возведения небольшого строения не могут не вдохновлять, ведь весь процесс может занять всего неделю, а в некоторых случаях — и того меньше.
Традиционные материалы
Баня , первые упоминания о которой относятся к 907 году, так и осталась неизменным атрибутом быта. Есть и типичный материал, используемый повсеместно при сооружении данных построек. Это древесина, которая после соответствующей защитной обработки становится идеалом для частного строительства. Она:
- экологична, поэтому всегда привлекательна;
- способна противостоять высоким температурам и чрезмерной влажности;
- проста в обработке, что облегчает строительный процесс;
- обеспечивает бане оптимальный микроклимат;
- паропроницаема, имеет низкий уровень теплопроводности.
В малоэтажном частном строительстве популярны 2 разновидности древесины — оцилиндрованное бревно и брус.

Бревно, прошедшее минимальную обработку, обеспечивает долговечность постройки, однако имеет существенный недостаток. Сооружение из этого материала должно дать усадку — около 10%, поэтому ввод в эксплуатацию здания возможен только через полгода после его возведения. Также необходимо конопатить, шлифовать. Многих это условие не пугает, поэтому бани из бревна неизменно популярны, в большей мере это и относится к строениям небольших размеров. Главная причина — оригинальный вид бани, напоминающей постройки давних времен.

Как выбрать подходящий дизайн для бани 3х4
Наилучшим вариантом каркасной бани будет строение площадью 3х4 метра, которое позволит оборудовать не только парилку, но и небольшую душевую и даже комнату отдыха. Такая постройка имеет свои сильные стороны, среди которых можно выделить некоторые.
- Она экономична. На постройку уйдет относительно небольшое количество строительных материалов.
- Простое возведение фундамента. Для такой постройки нет необходимости возводить монолитный фундамент, достаточно будет столбчатый вариант.
- Постройка займет мало времени. Технология строительства очень проста, и даже при самостоятельном возведении не отнимет большого количества времени.
- Строение такого типа надежно и долговечно. В связи с тем, что материалов будет затрачено мало, появляется возможность приобретения их более высокого качества.
- Коммуникации можно проложить прямо в стенах. Это придаст помещению аккуратный внешний вид.
- Такая баня экологически безопасна, так как строится только из натуральных материалов.
- Процесс возведения может происходить при любой температуре и в любое время года.
- Есть возможность выполнить как внешнюю, так и внутреннюю отделку любыми материалами.
- Готовая постройка не будет нуждаться в усадке.
- Простая регистрация в кадастровой службе. При наличии проекта постройки, ее можно будет быстро зарегистрировать. К тому же официальное оформление поможет в случае продажи участка получить за него высокую стоимость.
При строительстве такой бани очень важно предусмотреть ее теплоизоляцию и пароизоляцию. Теплоизоляция для помещения бани очень важна. Для ее обустройства в помещениях такого типа можно использовать минеральную вату либо стекловолокно, которые имеют достойные теплоудерживающие качества.
Пароизоляция также является очень важным моментом, который не стоит упускать из вида. В период дождей и снегов повышенная влажность окружающей среды может проникать в помещение, что негативно скажется на его сроках эксплуатации. Поэтому в процессе постройки рекомендуется между обшивкой и утеплителем проложить слой из специальной пленки либо пергамина, который будет противостоять проникновению влаги в помещение.
И также обязательно надо учесть, что от выбора древесины будет во многом зависеть качество и срок эксплуатации каркасной бани. Лучше предпочесть лиственные, осиновые или липовые сорта деревьев. При покупке обязательно проверять степень просушки досок. После того как для себя обозначены все положительные моменты такой постройки, а также учтены и подобраны основные материалы, можно переходить к изготовлению проекта бани. Этот этап является очень важным в процессе строительства.
Как сделать бани 3х4 энергоэффективной
Стены чаще всего делают из бруса , хотя в современных проектах бань 3х4 есть постройки, несущие стены и перегородки которых выложены из кирпича, керамзитобетона.
Выбирая дерево в качестве стен, получают надежную, прочную, экологически безопасную коробку, которую изнутри и внешне обшивают функциональными и декоративными материалами. Среди дачников популярны клееный брус, бревно из лиственницы, липы. Некоторые владельцы заказывают готовые каркасы, каркасные бани легко и быстро складывают наподобие конструктора.
Недостаток деревянных зданий – низкая пожаробезопасность. Чтобы продлить срок службы дерева, применяют специальные лаки и пропитки, отчего в случае короткого замыкания или близости открытого огня может случиться пожар. С другой стороны, сейчас доступны облицовочные материалы, устойчивые к возгоранию.
Кирпич, в отличие от дерева, не горит, обладает продолжительным сроком эксплуатации, слабо впитывает влагу. Ему не страшны перепады температур, поэтому бани 3×4 из кирпича – частый выбор индивидуальных строителей. К тому же, кирпич имеет небольшой вес, работая самостоятельно, легко переносить материал.
Блоки из керамзитобетона крупнее, тяжелее кирпича, но обладают хорошей теплоемкостью. Баня из керамзитовых блоков теплая, однако, стоит позаботиться о хорошей гидроизоляции: керамзит впитывает влагу. Под тяжелые стеновые модули (кирпич, цементные блоки) нужно обустроить крепкий фундамент.
Пеноблоками, газобетоном, арболитом также выкладывают стены бань. Теплые материалы служат каркасом и теплоизолятором, но требовательны к защите от влаги, как изнутри, так по наружи здания.
Кровлю на завершающем этапе стройки укрывают твердыми либо гибкими материалами. Керамическая и битумная черепица, ондулин, листовой металл или шифер – покрытие зависит от проекта бани .
Важно! Рассчитывают также количество расходников для веранды , если она планируется.
Как создать комфортную атмосферу в бане 3х4
Чем дальше — тем веселее. Планировки бани 3 на 4 внутри, конечно, не могут похвастаться такой вариативностью, как у решений с общей квадратурой полезной площади, превышающих 50 квадратных метров, но, тем не менее, позволяют грамотно распределить все необходимые функциональные зоны с единственно верной целью — сделать использование банного помещения действительно приятным и запоминающимся.
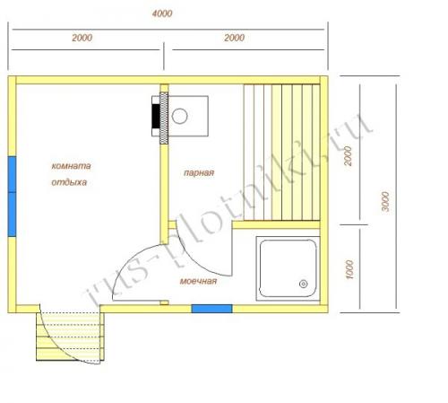
Разумеется, на общей площади в 12 квадратных метров трудно разместиться большой компании. Поэтому при размещении тех или иных зон следует учитывать наиболее вероятный факт: такой небольшой баней, скорее всего, будет пользоваться семья из 2-3 человек либо дружеская компания на столько же человек. Все, что свыше, так или иначе, но будет немного снижать уровень комфорта. Взглянем на варианты внутренней планировки бани 3 на 4 с объединенными мойкой и парилкой.




Если вы используете печь-каменку, то логично разместить ее между парной и предбанником, чтобы распространить тепло по всей площади постройки. К тому же, вынос топочной части в предбанник позволяет вам увеличивать температуру пара, даже не заходя в парную и не растрачивая, тем самым, тепло, которое так или иначе, но выходит через открытую дверь.
Особое внимание следует уделить оформлению парной:
- не располагайте верхний лежак чересчур высоко — есть риск, что человек будет ударяться головой о потолок, когда будет слазить;
- при обустройстве лежаков учитывайте, сколько человек будет регулярно пользоваться баней;
- не располагайте лежаки чересчур близко от печи в своем стремлении сэкономить место — это не только не приносит удовольствие, но даже опасно для жизни
Вариант планировки 3х4 с мойкой и парилкой отдельно
Если проявить смекалку и некоторую инженерную хитрость, то можно осуществить внутреннюю планировку бани 3х4 с раздельным размещением мойки и парилки. В этом есть немало плюсов:
- принимать душ в прохладном помещении куда приятнее;
- возможность раздельного и одновременного использования моечной и парной;
- температура в парной всегда высокая, а пар — сухой и приятный.
Посмотрите на то, какие есть варианты планировки бани 3х4 именно с раздельной интеграцией двух зон.





Какие особенности конструкции необходимо учесть при строительстве бани 3х4
Для начала необходимо отметить, что подобная работа может потребовать от исполнителя определенных навыков и точных расчетов. Это связанно с тем, что проект бани из пеноблоков представляет собой полноценную конструкцию с прочным основанием и надежной крышей.

Любительское фото готового основания под баню
Фундамент
- Прежде всего, необходимо создать фундамент. При этом проекты бани из пеноблоков предполагает, что основание будет иметь ленточный тип.
- Специалисты рекомендуют располагать его не только по периметру, но и в местах расположения простенков.
- Отдельное внимание стоит уделить глубине и утеплению. Дело в том, что типовой проект бань из пеноблоков рекомендует сразу устанавливать систему слива и отвода сточных вод, а значит, основание лучше всего располагать ниже уровня промерзания грунта и утеплять снаружи.
- Также необходимо позаботиться и о создании хорошей гидроизоляции. Для этого используют битум, который наносят не только снаружи фундамента, но и внутри.
Рассматривая различные чертежи бань из пеноблоков можно заметить, что довольно часто основание в них не отображается. Поэтому его придется делать самостоятельно или искать полноценный проект.
Совет! Некоторые мастера считают, что лучше всего для бани изготовить свайный фундамент. Однако при использовании данного вида строительного материала он совершенно не подходит.

Чертеж для изготовления фундамента
Стены
- Типовой проект бани из пеноблока выглядит, как застроечный план с указанием размещения всех стен и простенков, которые образую комнаты. При этом такая конструкция имеет четкое техническое обоснование, а значит, вносить самостоятельные изменения в него не стоит.
- Если конкретные планы бань из пеноблоков не отвечают конкретной области применения, то стоит поискать другие проекты. Если же было произведено изменение конструкции, то после этого чертеж следует показать специалисту, который может дать дополнительные рекомендации и укажет на критические ошибки.
Совет! Существует огромное количество готовых технических решений, которые избавят мастеров от произведения самостоятельных расчетов.

Принцип изготовления стен при использовании данного материала
Утепление
- Необходимо помнить, что проекты бань из пеноблока должны содержать информацию об утеплении всех комнат помещения. При этом отдельное внимание уделяется парилке, которая оснащается своей системой обогрева и соответствующей защитой для поддержания заданной температуры.
- Отдельное внимание уделяют виду утеплителя. Дело в том, что для данного строения лучше использовать материал со светоотражающей поверхностью, которая препятствует выходу инфракрасного излучения наружу. Если же используется проект бани 3х4 из пеноблоков, то при таких габаритах профессионалы рекомендуют использовать такой утеплитель по всему зданию, а не только в парилке.
Совет! Пеноблок и сам является неплохим утеплителем, но пузырьки в этом материале распределены неравномерно, а значит, он не может стать надежной защитой от холода.

Вариант организации утепления стен
Крыша
- Создавая проекты дачных бань из пеноблоков, специалисты рекомендуют использовать простейшие односкатные крыши. Они довольно практичны и имеют небольшую стоимость.
- Для создания подобных конструкций лучше всего использовать деревянные балки, которые на стадии изготовления стен фиксируют в кладке.
- Стоит отметить, что если проект кровли изготавливается своими руками, то угол наклона ската регулируют в соответствии с типом выбранного покрытия. Для рубероида он будет составлять 5 градусов, а для металлической черепицы он должен быть не менее 25 градусов. Все остальные материалы можно делать под 15 градусов.
- Обычно инструкция по изготовлению крыши на бане рекомендует производить небольшое утепление чердака, чтобы снизить теплопотери.
Совет! При проектировании крыши для данного помещения необходимо учитывать тип подогрева помещения и при необходимости организовать правильный вывод печной трубы в бане.

Различные проекты односкатных крыш
Системы обогрева
В настоящее время существует много безопасных и надежных устройств для создания и поддержания определенной температуры в банях. Однако даже самую современную печь необходимо устанавливать по правилам пожарной безопасности.
Для этих целей стоит применять специальные материалы, цена на которые может показаться высокой. Однако безопасность должна быть превыше всего и на ней не стоит экономить. Именно поэтому все проекты должны соответствовать определенным нормам и правилам.
Для начала необходимо отметить, что подобная работа может потребовать от исполнителя определенных навыков и точных расчетов. Это связано с тем, что проект бани из пеноблоков представляет собой полноценную конструкцию с прочным основанием и надежной крышей.
Рассматривая различные чертежи бань из пеноблоков можно заметить, что довольно часто основание в них не отображается. Поэтому его придется делать самостоятельно или искать полноценный проект.
Совет!
Некоторые мастера считают, что лучше всего для бани изготовить свайный фундамент. Однако при использовании данного вида строительного материала он совершенно не подходит.
Существует огромное количество готовых технических решений, которые избавят мастеров от произведения самостоятельных расчетов.
Принцип изготовления стен при использовании данного материала
Пеноблок и сам является неплохим утеплителем, но пузырьки в этом материале распределены неравномерно, а значит, он не может стать надежной защитой от холода.
Совет!
При проектировании крыши для данного помещения необходимо учитывать тип подогрева помещения и при необходимости организовать правильный вывод печной трубы в бане.
В настоящее время существует много безопасных и надежных устройств для создания и поддержания определенной температуры в банях. Однако даже самую современную печь необходимо устанавливать по правилам пожарной безопасности.



