Бюджетная беседка своими руками: пошаговое руководство для начинающих
- Бюджетная беседка своими руками: пошаговое руководство для начинающих
 - Связанные вопросы и ответы
 - Какие материалы лучше всего использовать для бюджетной беседки
 - Как выбрать подходящее место для беседки на участке
 - Какие инструменты необходимы для постройки беседки своими руками
 - Как собрать каркас беседки без опыта в строительстве
 - Как правильно сделать крышу для беседки
 - Какие варианты кровли самые дешевые и надежные
 - Как обустроить пол в беседке
 
Бюджетная беседка своими руками: пошаговое руководство для начинающих
Беседка на даче или в саду – это не только место для отдыха, но и украшение вашего участка. Однако, строительство беседки может показаться сложным и дорогим делом. Но не волнуйтесь! С помощью нашего руководства вы сможете построить красивую и функциональную беседку своими руками, потратив минимальные средства.
Выбор места и планировка
Перед началом строительства важно выбрать подходящее место для беседки. Учитывайте следующие факторы:
- Освещенность: беседка должна быть светлой, но не стоит ставить её под прямые солнечные лучи.
 - Вентиляция: место должно быть продуваемым, чтобы избежать скопления влаги.
 - Ландшафт: беседка должна гармонировать с окружающим пейзажем.
 
Также важно определить размеры беседки. Для небольшого участка подойдет беседка размером 2х2 метра. Если же у вас больше места, можно построить более просторную беседку.
Выбор материалов
Для строительства беседки вам понадобятся следующие материалы:
| Материал | Количество | Стоимость (приблизительно) | 
|---|---|---|
| Деревянные бруски (для каркаса) | 4-6 штук | 500-700 рублей | 
| Деревянные доски (для крыши и стен) | 10-12 штук | 1000-1500 рублей | 
| Металлические уголки (для крепления) | 10-15 штук | 300-500 рублей | 
| Шифер или черепица (для крыши) | 1-2 штуки | 500-1000 рублей | 
| Краска или лак (для отделки) | 1-2 банки | 500-1000 рублей | 
Общая примерная стоимость материалов составит 3500-5500 рублей.
Подготовка инструментов
Для строительства беседки вам понадобятся следующие инструменты:
- Дрель
 - Молоток
 - Рулетка
 - Карандаш
 - Лопата
 - Ножовка
 
Подготовка участка
Перед началом строительства необходимо подготовить участок:
- Очистите территорию от мусора и растительности.
 - Разметьте место для беседки с помощью колышков и веревки.
 - Копайте ямы для фундамента (глубина 20-30 см).
 - Насыпьте слой песка и утрамбуйте его.
 
Строительство каркаса
Каркас беседки состоит из четырех опорных столбов и верхней обвязки.
Пошаговая инструкция:
- Установите столбы в ямы и залейте бетоном.
 - Подождите, пока бетон застынет (около 24 часов).
 - Установите верхнюю обвязку, соединив столбы между собой.
 
Крыша и обшивка
Для крыши можно использовать шифер или черепицу. Установите крышу на верхнюю обвязку и закрепите её гвоздями.
Обшивка стен может быть частичной или полной. Для этого используйте деревянные доски и закрепите их к каркасу.
Декорирование и обустройство
После завершения строительства можно приступить к декорированию беседки:
- Покрасьте стены и крышу в подходящий цвет.
 - Установите скамейки или стулья.
 - Добавьте украшения, такие как гирлянды или цветы.
 
Советы и рекомендации
Чтобы беседка прослужила дольше, следуйте этим советам:
- Используйте качественные материалы.
 - Регулярно осматривайте конструкцию и устраняйте повреждения.
 - Держите беседку чистой и сухой.
 
Следуя нашему руководству, вы сможете построить красивую и уютную беседку своими руками, не потратив много средств. Удачи в строительстве!
Связанные вопросы и ответы:
Вопрос 1: Как выбрать подходящее место для бюджетной беседки на своем участке
Выбор места для беседки зависит от нескольких факторов. Во-первых, важно учитывать рельеф участка: еслистись неровная, возможно, потребуется выравнивание или создание террасы. Во-вторых, нужно подумать о том, где будет комфортнее находиться: например, в тени для защиты от солнца или в солнечном месте, если вы любите тепло. Также стоит обратить внимание на дренаж: избегайте низин, где может скапливаться вода. Кроме того, убедитесь, что беседка не будет мешать движению по участку и не закроет доступ к важным зонам, таким как сад или огород. Наконец, проверьте, нет ли подземных коммуникаций в месте строительства.
Вопрос 2: Какие материалы лучше всего использовать для бюджетной беседки?
Для бюджетной беседки можно использовать доступные и прочные материалы. Основой могут служить деревянные бруски или бревна, которые недороги и легко обрабатываются. Крышу можно сделать из поликарбоната или профлиста, которые также доступны по цене. Стены можно обшить вагонкой или использовать сетку для вентиляции. Пол рекомендуется делать из деревянных досок или бетонных плит, в зависимости от предпочтений. Двери и окна можно использовать старые или купить бюджетные варианты. Также можно добавить декоративные элементы, такие как плетение из ивовых прутьев или цветочные горшки.
Вопрос 3: Какие инструменты мне понадобятся для постройки беседки своими руками?
Для постройки беседки вам понадобится набор базовых инструментов. Во-первых, это измерительные инструменты: рулетка, уровень и угольник. Затем, инструменты для резки: лопата, пила или электропила, а также ножовка. Для сборки конструкции потребуются ключи, отвертки и молоток. Не забудьте про строительные гвозди, саморезы и веревку для натягивания. Также полезно иметь лестницу или стремянку для работы на высоте. Если вы планируете использовать бетон, вам понадобится бетономешалка или ведро для ручного замеса. Все инструменты должны быть в хорошем состоянии, чтобы работа шла гладко.
Вопрос 4: Как сделать фундамент для беседки своими руками?
Фундамент для беседки можно сделать своими руками, используя простые материалы. Если беседка легкая, можно обойтись столбчатым фундаментом. Для этого выкопайте ямы глубиной около 50 см, положите на дно песок и установите бетонные столбы или деревянные столбы, обработанные антисептиком. Залейте бетон, чтобы закрепить столбы. Для более тяжелой конструкции можно сделать ленточный фундамент. Выкопайте траншею, положите песок и щебень, а затем залейте бетон. Перед началом работ убедитесь, что площадка ровная и очищенная от мусора. Фундамент должен быть прочным, чтобы обеспечить устойчивость беседки.
Вопрос 5: Как сделать крышу для бюджетной беседки?
Крышу для бюджетной беседки можно сделать из доступных материалов. Одним из простых вариантов является крыша из поликарбоната. Для этого необходимо установить каркас из деревянных брусков, обшить его досками или металлическим профилем, а затем закрепить листы поликарбоната. Также можно использовать профлист, который легко монтируется и имеет привлекательный вид. Если вы хотите более натуральный вариант, можно сделать крышу из соломы или шифера, но это будет дороже. Убедитесь, что крыша имеет небольшой уклон, чтобы вода не задерживалась. Также важно правильно закрепить крышу к стенам беседки для устойчивости.
Вопрос 6: Как построить стены и двери для беседки?
Строительство стен и дверей для беседки начинается с установки каркаса. Используйте деревянные бруски, чтобы создать раму, и закрепите их гвоздями или саморезами. Затем обшейте стены вагонкой, досками или сеткой. Для дверей можно использовать готовые рамы или сделать их самостоятельно. Двери должны открываться легко и удобно, поэтому правильно подгоните петли. Также можно добавить окна для вентиляции и освещения. Убедитесь, что стены ровные и надежно закреплены. Если вы используете сетку, не забудьте натянуть ее плотно и закрепить гвоздями или хомутами.
Вопрос 7: Как оформить и украсить бюджетную беседку?
Оформление и украшение беседки могут сделать ее более уютной и привлекательной. Начните с внутренней отделки: можно обшить стены вагонкой или покрасить их в светлый цвет. Пол можно покрыть линолеумом или досками. Добавьте стол и скамейки, которые можно сделать своими руками из дерева. Украсьте стены вазонами с цветами или гирляндами. Снаружи можно посадить цветы или кустарники, которые будут обрамлять беседку. Также можно добавить крышу из цветов или плетение из ивовых прутьев. Не забудьте про освещение: установите гирлянды или фонари, чтобы беседка была комфортной вечером.
Вопрос 8: Какие ошибки нужно избегать при строительстве бюджетной беседки?
При строительстве бюджетной беседки важно избегать распространенных ошибок. Во-первых, не экономьте на материалах: использование некачественных материалов может привести к быстрому износу конструкции. Во-вторых, не пренебрегайте планировкой: убедитесь, что все размеры верны, и конструкция ровная. В-третьих, не забывайте о вентиляции: беседка должна проветриваться, чтобы избежать накопления влаги. Также не игнорируйте правила безопасности: убедитесь, что все соединения надежны, и крыша не обрушится. Наконец, не спешите: выполняйте каждое этап строительства тщательно, чтобы беседка получилась прочной и красивой.
Какие материалы лучше всего использовать для бюджетной беседки
Самый доступный и удобный в работе материал – древесина. За несколько дней из него можно собрать основание, каркас и крышу беседки. Попутно отметим, что опорная рама из бруса, под которую требуется столбчатый фундамент, для бюджетной беседки не обязательна.

Деревянная опорная рама под беседку (монтируется на столбчатом фундаменте)
Легкий навес можно соорудить и без нее, закопав в грунт на 40-60 сантиметров столбики из дуба или лиственницы. Для повышения стойкости древесины к гниению концы столбов обрабатывают биозащитой или просто обжигают их на костре в течение 5 минут. После такой термообработки срок службы стоек существенно возрастает.
Кто возражает против такого варианта, пусть вспомнит историю деревянного зодчества на Руси. В те времена на деревянных столбчатых основаниях строились не только простые срубы, но и боярские терема.

Столбы беседки в грунте и скамейки на цепочках – недорого и оригинально
Дешевая беседка может обойтись и без дощатого пола. Для этого участок, отведенный под строительство, нужно отсыпать мелким гравием, смешанным с песком, и хорошо его утрамбовать. Если вам хочется разместить беседку на газоне, то незачем снимать травяное покрытие. Мягкая травка под ногами – ни одно искусственное покрытие не сможет ее заменить. Солнечного света для нормального роста растений под таким навесом достаточно, а редкий полив «живого пола» вас не затруднит.
Недорогая деревянная беседка может быть изготовлена не только из пиломатериала. Если вы собираетесь срезать парочку старых плодовых деревьев, не спешите пускать их на дрова. Части ствола яблони или груши, алычи или черешни – прекрасные стойки для дачной беседки.

Живописный каркас из стволов будет отлично смотреться под крышей из деревянных досок. Для обеспечения герметичности на швы между ними нужно набить более тонкие доски, после чего покрыть весь кровельный настил несмываемым антисептиком. В качестве столбиков фундамента можно использовать пеньки, выкорчеванные после срезки деревьев.
У хорошего хозяина не бывает отходов. Поэтому всю деловую древесину (доски и обрезки бревен), оставшуюся от строительства сруба, можно успешно использовать для возведения дачной беседки.

Как выбрать подходящее место для беседки на участке
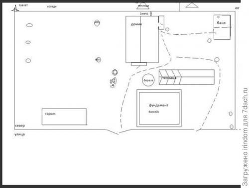
Вопрос от нашей подписчицы Ann Viktori:У меня вопрос по устройству участка.  Домик очень близко к соседнему участку (1 метр от забора), причем юго-восток!..  Вход с юго-западной стороны.  Между домиком и баней, у забора, детская площадка:  домик и песочница. Есть еще вход с севера-запада (в виде балкона). С юго-востока на северо-запад  приличный наклон, особенно до ворот.Где лучше разместить беседку?
У вас есть свой дачный вопрос? Задайте его нашим экспертам и опытным дачникам.
Какие инструменты необходимы для постройки беседки своими руками
Приготовьте инструмент для строительства всех элементов беседки. Подсчитайте сколько потребуется строительных материалов: купите, завезите и разложите на участке, чтобы не мешало будущему строительству.
Строительство беседки состоит из 5 этапов: фундамент, пол, стены, крыша, отделочные работы.
Инструменты и материалы для строительства фундамента беседки
Фундамент делают двух видов: блочный или столбчатый. Инструменты и материалы для блочного фундамента.
- Инструмент. Для укладки бетонных блоков потребуются: лопата, водяной уровень и трамбовка. Водяным уровнем многие не могут пользоваться - его заменяют строительным уровнем около метра в длину и ровным деревянным бруском 2-3 метра в длину. Уровень нужен для выравнивания верхнего края плит. Во втором варианте брусок укладывается на соседние плиты, сверху на брусок уровень, и смотрим на сколько блоки надо поднять или опустить.
 - Расходные материалы. Готовые бетонные блоки размером примерно 300х200х100 мм. Для каждой опоры надо 2 блока. Количество опор - под каждым углом и посередине стены длиннее 4 метров. Вместо бетонных блоков используют шлакоблок. Нужен песок для подушки под блоки. В идеале - щебень для подсыпки.
 
Построить фундамент для беседки можно из подручного материала используя привычные инструменты.
Блочный фундамент возводить быстрее и дешевле: не требуется замешивать бетон и ждать когда он застынет. В большинстве случаев лучше ему отдать предпочтение.
Инструменты и материалы для столбчатого фундамента.
- Инструмент. Для строительства столбчатого фундамента на основе труб потребуются: лопата или земельный бур, уровень, бетономешалка. Бетона требуется мало, поэтому можно обойтись ручным смешиванием.
 - Расходные материалы. Трубы металлические, пластиковые (подойдут используемые для канализации) или асбестовые длиной 500 мм, диаметром 100 - 150 мм. Для бетона - песок, цемент, щебень и вода. Трубы практичней использовать пластиковые, они дешевле, их проще купить, везти и резать. Цемент марки 400. Щебень любого размера, так как нагрузка на бетон небольшая.
 
Строим фундамент для летней беседки

Сверху - элемент фундамента из небольших бетонных плит.
Внизу - элемент столбчатого фундамента для деревянной беседки. 
Фундамент из бетонных плит небольшого размера.
- Определяем на земле расположение несущих столбов для крыши, забиваем колышки. Обычно это углы будущей беседки. Если есть сторона беседки длиннее 4 метров - посередине тоже устанавливаем бетонные блоки для фундамента. Беседка неправильной формы - нормальное явление. Располагайте опорные блоки где вам удобней - не стремитесь к геометрическому совершенству. Наша беседка будет из дерева, а этот материал легко укоротить или наоборот нарастить.
 - В местах где забиты колышки выбираем грунт на глубину 200-300 мм, площадью как бетонные плиты. Глубина зависит от толщины плодородного слоя. Наша задача - убрать верхний, мягкий слой грунта, и фундаментные блоки уложить на плотную поверхность.
 - Утрамбовываем землю. Насыпаем слой щебня 5-10 сантиметров, утрамбовываем. Насыпаем слой песка, так чтобы уложенные сверху плиты выпирали над землёй на 5-10 сантиметров и трамбуем песок. Песок проливаем водой для уплотнения. Планируйте чтобы блоки фундамента выпирали на 10 см. над землёй - деревянные элементы беседки будут меньше тянуть сырость с грунта.
 - Укладываем под каждую опору, в подготовленную ямку, на широкую поверхность, по 2 бетонных блока размером примерно 300х200х100 мм. Блоки должны выпирать над землёй на 5 - 10 сантиметров. Если блоки укладываете один на один - не надо их связывать раствором. Под весом беседки они не будут смещаться.
 - Укладывая блоки контролируйте чтобы верхний край был на одном уровне. Делаем это с помощью водяного уровня или бруска со строительным уровнем.
 
Как собрать каркас беседки без опыта в строительстве
Схема с двумя симметричными скатами дает возможность строить крыши для достаточно больших беседок. Единственный недостаток, если сравнивать с односкатной кровлей, — это повышенный расход материалов на обустройство каркаса и укладку на крыше беседки кровельного покрытия.
Особенности двускатной схемы:
- При правильном расчете крыша беседки способна выдержать сильный ветер, дождь, слой снега до 50 см толщиной. Односкатные и вальмовые сильно уступают двухскатной кровле.
 - Стропильная система двускатной крыши сбалансирована, два ската опираются на конек и взаимно компенсируют давление от веса стропил в горизонтальном направлении. У односкатных крыш всегда была проблема с боковым давлением.
 - Дизайн, внешний вид беседки с двускатной кровлей получается гораздо более привлекательным, чем односкатные постройки.
 
Как ни странно, но именно последний пункт чаще всего становится основным критерием при выборе типа крыши для беседки. Постройку беседки с двускатной крышей необходимо начинать с выбора схемы стропильной системы и фундамента.
Двускатные крыши отличаются долговечностью и надежностью, но только при условии жесткого фундамента. Построить беседку «нормальной» вместимости с двускатной кровлей на столбах или сваях нет смысла. Нужно делать МЗФ или заливать плиту.
Второй вариант более предпочтителен, хотя и потребует дополнительных средств на заливку бетона. Это поможет избежать большей части проблем, связанных с уклонами поверхности, наличием приповерхностных вод и пучением грунта на дачном участке.
Как правильно сделать крышу для беседки
Лучшие кровельные материалы для дачи и частного дома сочетают в себе красоту и надежность, экономичность и долговечность.
Гибкая черепица
Гибкая черепица. Фото: shutterstock.com
Гибкая черепица — это кровельный материал из стекловолокна, модифицированного битума и каменной крошки. Отличительные особенности гибкой черепицы — ее надежность и долговечность, гибкость и хорошие шумопоглощение и теплоизоляция. Такой пластичной листовой черепицей можно крыть округлые эркеры, изогнутые крыши и даже купола. И под этой крышей будет тихо даже в сильный дождь — материал кровли надежно поглощает внешние шумы.
Гибкая черепица надежно защищает от воды, не гниет, не накапливает статическое электричество и помогает экономить на отоплении — этот кровельный материал работает и как теплоизоляция крыши частного дома.
Разнообразие форм, расцветок и даже объемных фактур позволяют с помощью гибкой черепицы воплотить практически любые архитектурные задумки.
Служит качественная гибкая черепица исключительно долго. Например, отечественный производитель ТЕХНОНИКОЛЬ дает официальную гарантию на свою черепицу SHINGLAS от 10 лет до пожизненной (в зависимости от коллекции). Такая долговечность гибкой черепицы возможна благодаря производству на самом современном промышленном оборудовании, строгому соблюдению технологической дисциплины и использованию материалов и сырья высшего качества.
Для изготовления черепицы SHINGLAS используется плотный, эластичный и легкий стеклохолст, морозоустойчивый и стойкий к жаре и ультрафиолету модифицированный битум и натуральная каменная крошка — базальтовый гранулят. В отличие от остроугольных частиц сланцевой крошки черепицы других марок особо прочные базальтовые гранулы кровли SHINGLAS имеют округлую форму, плотно покрывают черепичный гонт (лист), не отслаиваются, не выветриваются и не выгорают на солнце весь срок службы.
Декоративные возможности SHINGLAS очень богаты: 15 коллекций гибкой черепицы разной формы и множество цветов на выбор позволяют реализовать практически любые архитектурно-дизайнерские решения кровли частного дома. Интересная особенность гибкой черепицы — двух- и трехслойные листы, которые позволяют создать неповторимый голографический объем. Дома с такими крышами впечатляют солидным и стильным внешним видом.
Важно, что благодаря большому сроку службы без потери потребительских свойств использование гибкой черепицы SHINGLAS экономически оправдано. Единовременные затраты на обустройство красивой и надежной высококачественной кровли в перерасчете на десятки лет безупречной службы на самом деле оказываются совсем невелики.
Выбор редакции
SHINGLAS
Гибкая черепица
Кровельный материал с безупречным качеством, множеством форм нарезки и расцветок, позволяющий воплотить любую архитектурную задумку
Узнать цену Смотреть каталог
ООО «ТехноНИКОЛЬ-Строительные Системы». erid: LjN8KEqCF.
Какие варианты кровли самые дешевые и надежные
11 мин.
Беседка
Беседки относятся к самым популярным сооружениям, и причин тому несколько. Они не только весьма эффектно выглядят и являются главным украшением участка, но и защищают хозяев и их гостей от малоприятных сюрпризов природы. Однако открытые и полуоткрытые конструкции все же довольно уязвимы. Они не могут обеспечить «абсолютный комфорт» отдыхающих в них людей. Поэтому многие владельцы таких симпатичных зон отдыха ищут ответ на вопрос о том, чем закрыть беседку от дождя и ветра. Способов устранить самый большой недостаток таких небольших построек есть несколько. Но чтобы выбрать идеально-оптимальный вариант, первым делом хозяевам этих привлекательных сооружений нужно познакомиться со всеми технологиями, популярными материалами и приспособлениями.
Потенциальные защитники беседок
Выбор одного подходящего варианта из множества интересных решений может быть совсем не простым. Причина сложности в том, что он всегда зависит от особенностей конструкции, от ее материалов, размеров и предназначения, а также от предпочтений владельцев беседки.

Для тех, кто любит проводить свободное время под открытым небом, подойдут:
- шторы (например, из брезента, акрила и т. д.);
 - москитная сетка или тент;
 - изгородь из растений;
 - прозрачная пленка.
 
Если одно из главных требований возможность быстро избавиться от такой защиты, то хозяева могут выбрать одно из нескольких решений. Вероятно, им подойдут бамбуковые рулонные шторы, подъемные вертикальные маркизы для беседок (веранд), мягкие окна из полимера либо практичные рольставни.

Те, кому важнее всего максимальный комфорт и абсолютная защищенность от непогоды, могут отдать предпочтение:
- остеклению — рамному либо безрамному;
 - прозрачному «барьеру», собранному из поликарбоната;
 - обшивке стен постройки вагонкой (блок-хаусом), рейками, пластиковым сайдингом и т. д.
 
Чтобы выбрать оптимальный вариант, сначала нужно познакомиться со всеми материалами и используемыми конструкциями. Только всесторонняя оценка всех кандидатов и технологий даст шанс не пожалеть о своем решении в будущем.

Как обустроить пол в беседке
Штукатурка — строительный отделочный раствор, которая при нанесении затвердевает, образует на поверхности прочный, ровный слой. В зависимости от состава, наличия или отсутствия дополнительных включений, покрытие может быть гладким или шероховатым.
Смесь может использоваться для декоративной отделки стен, колонн, горизонтальных поверхностей любого формата. Подходит для завершения чернового этапа отделки или для подготовки основания к дальнейшему оформлению.
Основное предназначение штукатурки:
- Выравнивание поверхности, устранение дефектов. Смесь густая, плотная, позволяет убрать незначительные трещины, сколы, заполняет небольшие углубления.
 - Защита кирпичного, каменного, бетонного основания от внешних воздействий. Штукатурная смесь предотвращает проникновение внутрь декоративного слоя влаги, пыли, плесени, предупреждает появление на стенах трещин и других дефектов
 - Повышение износостойкости, укрепление поверхности.
 - Финишная отделка. Некоторые составы можно использовать в качестве декоративного слоя, который не нуждается в дальнейшей отделке.
 
Штукатурные смеси продаются в виде сухой смеси, которую необходимо развести с водой согласно инструкции производителя, или же поставляются сразу в банках, в полужидком состоянии, полностью готовые к использованию.
Всю штукатурку можно условно разделить на два вида — для внутренней и внешней отделки. Также смеси отличаются составами, наличием модифицирующих добавок.