Проектирование и строительство открытой веранды 3х6м к дому: основные этапы
- Проектирование и строительство открытой веранды 3х6м к дому: основные этапы
- Связанные вопросы и ответы
- Что необходимо знать перед строительством открытой веранды 3х6м к дому
- Какие материалы наиболее подходят для строительства открытой веранды 3х6м к дому
- Какие конструкции наиболее популярны для строительства открытой веранды 3х6м к дому
- Какие факторы необходимо учитывать при выборе места для строительства открытой веранды 3х6м к дому
- Какие технические требования необходимо соблюдать при строительстве открытой веранды 3х6м к дому
- Какие этапы строительства открытой веранды 3х6м к дому необходимо выполнить
Проектирование и строительство открытой веранды 3х6м к дому: основные этапы
Создание открытой веранды 3х6м к дому является одним из самых популярных способов расширения жилья. В этой статье мы рассмотрим основные этапы проектирования и строительства такой веранды.
Подготовка к проектированию
Перед началом проектирования необходимо выполнить следующие шаги:
1. Определение места для строительства веранды.
2. Выбор архитектурного стиля веранды, соответствующего стилю дома.
3. Выбор материалов для строительства веранды.
4. Определение бюджета на строительство веранды.
Подготовка к проектированию
Перед началом проектирования веранды необходимо выполнить несколько важных шагов, чтобы обеспечить успешное строительство.
Определение места для строительства веранды
Выберите подходящий участок для строительства веранды, учитывая доступность, освещение, вентиляцию и другие факторы.
Выбор архитектурного стиля веранды, соответствующего стилю дома
Выберите архитектурный стиль, который будет соответствовать стилю вашего дома и окружающей среды.
Выбор материалов для строительства веранды
Выберите материалы, которые будут использоваться для строительства веранды, учитывая их качество, стоимость и функциональность.
Определение бюджета на строительство веранды
Определите бюджет на строительство веранды, чтобы планировать финансы и обеспечить успешное выполнение проекта.
Выполнение этих шагов поможет вам создать успешный проект строительства веранды, который будет отвечать вашим потребностям и пожеланиям.
Проектирование веранды
После того, как выполнены все подготовительные работы, можно приступить к проектированию веранды. Проектирование веранды включает в себя следующие этапы:
1. Создание чертежа веранды.
2. Выбор конструктивных решений для веранды.
3. Выбор материалов для строительства веранды.
4. Определение технических характеристик веранды.
Строительство веранды
После того, как веранда была разработана, можно приступить к ее строительству. Строительство веранды включает в себя следующие этапы:
1. Подготовка места для строительства веранды.
2. Установка фундамента веранды.
3. Монтаж каркаса веранды.
4. Монтаж стен и потолка веранды.
5. Монтаж окон и дверей веранды.
6. Монтаж пола веранды.
7. Монтаж кровли веранды.
8. Монтаж электрической и водопроводной систем веранды.
9. Монтаж декоративных элементов веранды.
Заключение
Проектирование и строительство открытой веранды 3х6м к дому является сложным процессом, который требует опыта и навыков. Однако, если вы соблюдите все рекомендации и правила, то сможете создать красивую и удобную веранду, которая станет прекрасным дополнением к вашему дому.
Связанные вопросы и ответы:
Вопрос 1: Что такое открытая веранда и какие ее преимущества
Ответ: Открытая веранда - это открытое пространство, которое прилегает к дому и обычно используется для отдыха и проведения время на свежем воздухе. Преимущества открытой веранды включают возможность наслаждаться природой и свежим воздухом, а также увеличение комфорта и удобства дома.
Вопрос 2: Какие материалы можно использовать для строительства открытой веранды
Ответ: Для строительства открытой веранды можно использовать различные материалы, такие как дерево, металл, бетон, стекло и пластик. Выбор материала зависит от дизайна и стиля дома, а также от ваших личных предпочтений и бюджета.
Вопрос 3: Как определить размеры открытой веранды
Ответ: Размеры открытой веранды должны соответствовать размерам дома и его архитектурному стилю. Также важно учитывать количество места, которое вы хотите отвести под открытую веранду, и ее предполагаемое использование. В данном случае, мы рассматриваем открытую веранду размером 3х6 метров.
Вопрос 4: Как выбрать подходящий дизайн открытой веранды
Ответ: При выборе дизайна открытой веранды важно учитывать архитектурный стиль дома и его цветовую палитру. Также важно учитывать ваши личные предпочтения и предпочтительное использование открытой веранды. Вы можете найти вдохновение в интернете, в журналах о дизайне и архитектуры, или обратиться к профессиональному дизайнеру.
Вопрос 5: Как обеспечить теплоизоляцию открытой веранды
Ответ: Теплоизоляция открытой веранды важна для обеспечения комфорта и экономии энергии. Для этого можно использовать различные материалы, такие как теплоизоляционные панели, теплоизоляционные штукатурки и теплоизоляционные стекла. Важно также учитывать теплоизоляцию потолка и стен веранды.
Вопрос 6: Как обеспечить безопасность на открытой веранде
Ответ: Безопасность на открытой веранде важна для предотвращения травм и несчастных случаев. Для обеспечения безопасности можно установить металлические решетки, сетку или другие средства безопасности. Также важно обеспечить хорошую освещенность и отсутствие скользких поверхностей.
Вопрос 7: Как ухаживать за открытой верандой
Ответ: Уход за открытой верандой важен для ее долговечности и сохранности. Для этого необходимо регулярно убирать веранду, удалять пыль и грязь, а также обрабатывать материалы, из которых сделана веранда, специальными средствами для защиты от влаги и гниения. Также важно проводить регулярный ремонт и техническое обслуживание.
Что необходимо знать перед строительством открытой веранды 3х6м к дому
У владельцев частных домов всегда есть идеи как облагородить участок и задумки как увеличить полезное пространство. Самый распространенный вариант - строительство веранды. И мы для вас собрали полезную информацию по строительству террасы.
Типы веранд
По своему расположению веранда может быть угловой, торцевой или фасадной. Оригинальным решением можно считать возведение ее по всему периметру дома, которая может иметь остекленные, открытые и закрытые зоны различного предназначения: в них может разместиться и прихожая, и зона отдыха, и большая кладовая.
Фундамент
Опора для веранды будет зависеть от двух факторов:
- Качество грунта;
- Масса конструкций.
Если вы строите террасу из кирпичей, газоблоков или будете делать опору конструкций на деревянные столбы, нужно сделать ленточный фундамент. Если вы выбрали деревянный или металлический каркас, подойдёт столбчатый фундамент.
Глубина закапывания столбов зависит от грунта и климатических условий. Если грунт неоднородный или в нём много влаги, стройте веранду на винтовых сваях. В северных районах ямы выкапывать нужно глубже из-за того, что там зимой промерзает более толстый слой грунта.
Делать фундамент желательно летом при низкой влажности и высокой температуре воздуха, то есть летом в хорошую погоду. Тогда материалы не будут усаживаться, а бетон застынет быстрее.
Ленточный фундамент
Перед выкапыванием данного типа фундамента продумайте всё до мелочей. Если появятся нарушения, исправить фундамент будет невозможно.
Вам понадобятся:
Ход работы
Установите колышки, чтобы они совпадали с линиями траншеи. Привяжите веревки и проверьте, ровно ли они натянуты. У вас получатся очертания будущей веранды. Измерьте диагонали получившегося прямоугольника. Если они равны, то вы правильно разметили территорию.
Выкопайте траншею по веревкам. Глубина траншеи зависит от состава почвы и насколько сильно она промерзает зимой. Для мягких почв значение будет 80-100 см, для обычных - 100-150 см. Две стороны будут перпендикулярны зданию, одна параллельна. Параллельную сторону выкопайте шире на 10-15 %, чем перпендикулярные. Стена на дальней от здания стороне будет поддерживать вес конструкций. Если вы сделаете под неё траншею шире, то фундамент меньше просядет, и несущая способность не утратится.
Сделайте опалубку высотой 30 см. Если вы не монтируете деревянную конструкцию вглубь, выложите доски по линиям траншеи. Выровняйте окоп строго по этим доскам.
Дно выложите смесью песка и гравия слоем 10 см, утрамбуйте. Высыпьте щебень на толщину 5-7 см, на него положите армированную сетку из продольных и поперечных прутьев.
Если вы будете строить веранду из газоблоков, приварите к сетке изогнутые прутья, чтобы они располагались вертикально. Они станут основой для бетонных колонн.
Залейте траншею бетоном примерно на две трети глубины. Подождите неделю, тогда на застывшей смеси можно продолжить работу.
Можно приступать к возведению цоколя. Установите внутри опалубки армированную сетку и залейте бетоном.
Дождитесь застывания бетона, смажьте его поверхность мастикой и накройте рубероидом.
Бетон делает устойчивым фундамент на сжатие, а арматура – на растяжение. Если сделать армированную сетку натянутой, то у фундамента будет лучше несущая способность.
Столбчатый фундамент
Такой тип фундамента можно сделать из асбестоцементных труб, винтовых свай или готовых блоков. Но принцип возведения фундамента везде одинаковый. Подойдет для неустойчивых болотистых, торфяных, песчаных или переувлажненных грунтов, а также для регионов с глубоким их промерзанием.
Этапы:
- Отметьте на территории, где вы будете рыть ямы под столбы. Если вы строите веранду длиной в 6 метров, сделайте 3 ряда столбов по длине. В одном ряду установите 4 столба. Получится, что каждый столб будет удален от другого на 1,5 метра.
- Чтобы установить столбы ровно, сделайте опалубку.
- Чтобы выкопать ямы, нужно поинтересоваться, на какую толщину замерзает грунт на вашей территории. Ямы должны быть на 25-30 см глубже толщины промерзания. Если вы делаете фундамент на винтовых сваях, отталкивайтесь от их длины.
- В ямы на 10-15 см засыпьте песок и уплотнить его.
- Вставляйте столбы. Проверьте, на одинаковой ли высоте вы выставили все столбы. Возьмите доску, положите её на два соседних столба и положите на нее уровень.
- Закопайте сваи. В асбестоцементные столбы вставьте армированную сетку и залейте внутрь бетон. Винтовые столбы тоже желательно заполнить бетонной смесью. Это защитит материал от коррозии. Фундамент будет прочнее.
- Вставьте в столбы шпильки. Они схватятся бетоном, потом вы установите на них брус.
- Смажьте столбы мастикой и накройте рубероидом для защиты от влаги.
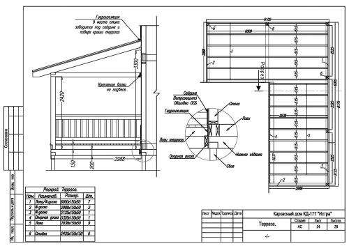
Какие материалы наиболее подходят для строительства открытой веранды 3х6м к дому
Мечтаете об открытом придомовом пространстве, где будете собираться всей семьей, но не знаете, как правильно его организовать? Мы расскажем, как сделать идеальную террасу, которая станет местом притяжения для всех членов семьи и друзей. Реализовать вашу мечту помогут простые шаги, которые разберем в этой статье. Место отдыха на открытой террасе
1. выберите вид террасы
терраса – это открытое помещение, пристроенное к дому, но не имеющее с ним общего фундамента. она может быть, как с одной стороны, так и располагаться по всему периметру здания. чтобы понять какая терраса нужна именно вам, подумайте для каких целей планируете её использовать и сколько человек хотите разместить. Застекленная терраса Полностью открытая. Конструкция такого типа идеально подойдет для комфортного отдыха на свежем воздухе летом. Но если вы хотите использовать террасу круглый год, открытый вариант сложно назвать практичным. Выбирайте садовую мебель, которая будет стойкой к воздействию влаги и прямых солнечных лучей. Открытый вариант террасы с влагоотталкивающей мебелью Терраса с крышей. Плюсы очевидны – вы защищены от дождя и солнца. Появляется возможность создать полноценную уличную кухню и не бояться за мебель, которой вы заполните пространство. Если позволяет конструкция дома, то интересным решением может стать увеличение свеса крыши для того, чтобы накрыть террасу. Таким образом вид не будет перегорожен опорными столбами. Терраса с увеличением свеса крыши Закрытая. Чтобы использовать террасу круглый год, отличным решением будет её остекление. Используйте панорамное остекление, это позволит вам сохранить красивый вид на сад, но в то же время пространство будет закрыто от насекомых и непогоды. Более бюджетный вариант – закрыть каркас террасы поликарбонатом или, так называемыми, мягкими окнами из специальной пленки. Закрытый тип террасы2. спланируйте расположение и площадь террасы
сделайте масштабный рисунок на миллиметровой бумаге или в цифровом виде, если пользуетесь специализированными программами (например, sketchup). таким образом вы сможете определить точную площадь террасы, расставить необходимую мебель на плане и в дальнейшем сделать точную разметку на участке.Независимо от того как вы планируете использовать террасу, не делайте её слишком маленькой. Семья и гости должны иметь возможность свободно передвигаться по террасе, а также должно быть достаточно места для обеденного стола, стульев и барбекю. К примеру, для четырёх человек и переносного гриля необходима площадь примерно 20 кв.м.В основном используют дерево, кирпич, металл или строительные блоки. При выборе материала можно руководствоваться двумя принципами: сумма, которую вы готовы потратить и материал, из которого построен дом.Зависит от материала каркаса, который вы выберете. Тяжелый кирпич потребует крепкое бетонное основание, а дерево или металл могут опираться на более лёгкие конструкции в виде столбов или винтовых свай. Примерно на уровне 50 см над землей должна расположиться отметка пола террасы. Устанавливая опорные конструкции пола, не забывайте о необходимом уклоне для отвода воды. Как правило уклона в 1-2 мм на 1 метр достаточно для эффективного отвода воды с поверхности.Пол должен быть надежной основой для садовой мебели, а также быть стойким к влаге и морозу. Давайте разберемся какие материалы могут подойти для таких задач.Какие конструкции наиболее популярны для строительства открытой веранды 3х6м к дому
Самостоятельная пристройка веранды к жилому дому, как говорят нормативы, должна согласовываться с другими лицами и узакониваться, а также удаляться на определенное расстояние от других объектов.
Необходимость узаконивания постройки
Организацию пристраивания к дому веранды и террасы без документов классифицируют как самовольную. Обратиться в районный отдел архитектуры нужно по следующим причинам:
- соблюдение требований градостроительного законодательства РФ;
- решение спорных вопросов с соседями;
- квалифицированное перепроектирование – встроенная веранда меняет проект дома и размер долей нескольких собственников недвижимости;
- безопасность владельца при прокладке коммуникаций, не предусмотренных первоначальными чертежами;
- возможность дальнейших юридических операций со зданием – продажи, обмена, аренды.


Важно! Пристройку российское законодательство определяет как реконструкцию сооружения, поэтому ее незаконное возведение наказывается штрафом от 2 до 5 тыс. руб.
Правовые основы строительства
Веранда, пристроенная к жилому зданию, является объектом некапитальной застройки. На основании Постановления Правительства РФ № 271 от 11.03.99 собственник должен получить разрешение на строительство, которое выдается муниципалитетом. Помимо него, понадобится документ, подтверждающий согласие соседей, если будущая конструкция перекрывает доступ к свету или выходит частью крыши на чужую территорию.
Какие понадобятся документы?
Здание жилого типа с отдельным фундаментом, под который нужно выделять место, является объектом капитального строительства. Оформить пристройку следует до начала работ. Для этого понадобится пакет следующих бумаг:
- документы, подтверждающие право собственности лица на земельный участок и реконструируемый дом;
- технический паспорт и план здания, кадастровый проект участка;
- чертежи, эскизы или проект строения;
- заявления с согласием других владельцев и соседей на работы (в письменном виде);
- разрешения, выданные газовым, водо-канализационными, электроэнергетическими службами;
- разрешительная документация от архитектурного отдела, пожарников и СЭС.


Весь перечень бумаг подается в БТИ. При отсутствии нарушения органами МСУ выдается официальное согласие.
Вопрос: Можно ли узаконить пристройку по факту окончания строительства?
Ответ юриста: Да, только в судебном порядке. Конструкция будет классифицироваться на основании ст. 222 ГК РФ как самовольная.
Нормативы при выполнении работ
Существуют определенные нормативы удаленности пристроенной веранды от других объектов в частном секторе:
- дистанция от забора на соседской территории – не больше 1 м;
- расположение строения жилого типа от забора соседей – 3 м.
На заметку! Нарушение границы хотя бы на 10 см станет причиной для сноса конструкции.


На основании СП 53. 13330. 2011 законно пристроить пристройку на дачном или садоводческом участке можно, если соблюдать дистанцию:
- от дома соседей – 3 м;
- от сараев для животных и птицы – 4 м;
- от иных сооружений – 1 м;
- от высоких деревьев – 4 м;
- от деревьев средней высоты – 2 м;
- от кустарников – 1 м.
Важно! Если границы вашего здания и соседского отсчитывается от стены или цоколя, то эркеры, навесы, крыльцо конструкции не должны выступать за стену более, чем на 0,5 м.
Веранда, пристроенная к жилому зданию, является объектом некапитальной застройки. Для ее строительства необходимо получить разрешение на строительство, выданное муниципалитетом, а также подтверждение согласия соседей, если будущая конструкция перекрывает доступ к свету или выходит частью крыши на чужую территорию.
Важные конструкции для строительства открытой веранды 3х6м к дому
- Каркасный метод - это наиболее популярный способ строительства открытой веранды. Он заключается в использовании каркаса из деревянных или металлических профилей, на который монтируются обшивки из дерева, пластика или металла.
- Монолитный метод - это более сложный способ строительства, при котором используется монолитный бетон, который заливается в опалубку из металла или дерева.
- Сборный метод - это наиболее простой способ строительства, при котором используются готовые сборные конструкции из дерева или металла.
Важно! Пристройку российское законодательство определяет как реконструкцию сооружения, поэтому ее незаконное возведение наказывается штрафом от 2 до 5 тыс. руб.
Организация строительства
Для начала работ над проектом необходимо собрать пакет документов, который включает в себя:
- Разрешение на строительство, выданное муниципалитетом;
- План строительства;
- Свидетельство о регистрации права на недвижимое имущество;
- Соглашение с соседями;
Весь перечень бумаг подается в БТИ. При отсутствии нарушения органами МСУ выдается официальное согласие.
Вопросы и ответы
Вопрос: Можно ли узаконить пристройку по факту окончания строительства?
Ответ юриста: Да, только в судебном порядке. Конструкция будет классифицирована на основании ст. 222 ГК РФ как самовольная.


Какие факторы необходимо учитывать при выборе места для строительства открытой веранды 3х6м к дому
Правильнее всего продумать ориентациюна стадии планирования дома. Но её можно, если необходимость в дополнительном пространстве для семейных трапез, детских игр, садово-огородных занятий возникла позже.
Интересно, что у каждого из расположений есть свои преимуществ и недостатки. Например, на южной стороне будет особенно приятно весной и осенью. Хотя для летнего времяпрепровождения придётся продумать естественное или искусственное затенение пространства, которое защитит от солнечных лучей и изнуряющего зноя. Утренним кофе лучше всего наслаждаться при восходящем солнце на восточной стороне дома. Западная подойдёт для посиделок тёплыми вечерами. Возможно, кто-то решит возвести сразу две террасы разного назначения с разных сторон загородного строения.
Любителям уединенного отдыха или работы будет комфортнее находиться на отделённой от дома площадке. Кстати, её можно использовать какили. В последних случаях путь к ней из основного здания должен быть коротким. Не забывайте о необходимости подвести к отдельно стоящему строению воду и электричество. С ними отдых будет более комфортным.
ShutterStock
Пребывание на ориентированной на юг террасе в течение жаркого лета сделают приятным мобильная крыша или высаженные рядом лиственные деревья и кустарники. В зной они подарят желанную тень и прохладу, а осенью, сбросив листья, не будут препятствовать проникновению света в дом
Размер и форма
Чтобы правильно выбрать размер открытой террасы, важно ориентироваться на уклад жизни и даже заглянуть в будущее. Тем, кто любит большие шумные посиделки или ожидает прибавления семейства, нужна большая площадь.
Для семьи из четырех человек терраса не должна быть менее 16 м², тогда как для комфортного размещения шести человек потребуется не менее 20 м².
Рачительные хозяева наверняка продумают обстановку этого места. Ведь одно дело — лёгкие компактные садовые стулья, и совсем другое — диваны внушительных размеров. Кроме того, нужен стол и, скорее всего, не один. Поэтому ширина террасы, на которой будет размещена столовая группа не должна быть менее 2,5 м, иначе передвижения около неё будут затруднены.
Что касается формы, то террасе не обязательно быть прямоугольной. При ограниченном пространстве сада достаточно даже небольшой площадки около входной двери или своеобразного балкона, который простирается вокруг всего строения.
Какие технические требования необходимо соблюдать при строительстве открытой веранды 3х6м к дому
Терраса у дома может стать любимым местом отдыха всей семьи, встреч с друзьями или уединения с природой. Можно предусмотреть открытую площадку еще на стадии строительства жилья или пристроить ее позже. Раздумываете, как пристроить террасу к дому, но не знаете с чего начать? Мы подскажем, как спланировать пристройку, возвести фундамент и организовать полноценную зону отдыха.
Конструктивные особенности террасы
Место отдыха на приусадебном участке можно сделать в виде закрытой веранды, отдельно стоящей беседки или открытой террасы. Каждая постройка имеет определенные особенности. Терраса, пристроенная к дому, это открытая площадка без стен . Даже наличие крыши и ограждений не обязательно.

Конструктивные особенности террас:
- фундамент – общий с домом или отдельный, но соединенный с основной постройкой;
- возможно расположение около одной стены или по периметру всего дома ;
- площадка достаточно просторная, ее можно разделить на несколько зон.
Сооружение террасы у дома дает следующие преимущества:
- добавление полезного пространства – зону используют в качестве столовой, летней гостиной, игровой площадки , места для принятия солнечных ванн;
- использование декоративных элементов – оформление террасы позволяет значительно преобразить внешний вид дома.
Планирование открытой террасы
Прежде чем приступить к проектированию открытой террасы к дому, необходимо определиться с местом ее размещения и типом конструкции.

Выбор места под будущую постройку
Планируя обустройство террасы, следует учесть такие параметры:
- освещенность сторон дома;
- особенности рельефа участка и тип грунта;
- открывающийся с площадки вид;
- ландшафт территории – пристройка должна сочетаться с дизайном двора, стилем оформления дома.
Интересное решение для домов, расположенных на склоне – многоуровневая терраса. Такая пристройка одновременно выполняет роль ступеней .
Варианты размещения:
- Терраса к дому. Это самое популярное решение, так как его можно реализовать практически у каждого строения. Конструкция требует надежного основания . Возможно изготовление из разных материалов: кирпича, дерева, металла.
- Отдельно стоящая пристройка. Размещение на свободном участке территории. Площадку для отдыха можно сооружать на приподнятом блочном фундаменте или монолитном основании .
- «Кольцевая» терраса. Пристройка нуждается в прочном фундаменте и грамотном расчете. Возможно совмещение открытой части террасы и закрытой веранды .

Какой материал лучше выбрать
Для строительства открытой площадки чаще всего используют дерево. Это оптимальное решение, если планируется сооружение террасы своими руками.
Преимущества деревянных строений:
- простота обработки пиломатериалов;
- легкость материала и возможность сооружения «облегченного» основания;
- привлекательный внешний вид – дерево создает особую атмосферу комфорта и уюта ;
- универсальность – деревянная терраса органично смотрится с домами из разных материалов.
Минусы древесины:
- риск возгорания – на таких площадках лучше не обустраивать зону барбекю ;
- необходимость обработки дерева защитными составами, предупреждающими гниение и порчу насекомыми.
Кирпичная терраса – прочная конструкция, неприхотливая в уходе. Однако ее сооружение требует значительных финансовых затрат . Кроме того, такая пристройка не подойдет для каркасных и деревянных домов.

Разработка и согласование проекта
Определившись с типом террасы, ее размещением и материалом изготовления, необходимо составить эскиз будущей пристройки.
В план-проекте следует отобразить:
- точную конфигурацию, площадь и габариты пристройки;
- тип фундамента;
- массу сооружения;
- вид напольного покрытия, конструкцию крыши и вариант ограждения.
Размер террасы должен быть соразмерен с габаритами дома . Крохотные пристройки, примыкающие к просторному зданию, смотрятся нелепо.
Советы по планировке:
- терраса не должна быть менее 4 кв. м – сделать комфортной такую зону очень сложно;
- лучше отдать предпочтение прямоугольной пристройке – должно быть визуальное соответствие между главной частью дома и конфигурацией террасы;
- если планируется установка камина или печи, то необходимо усилить фундамент и продумать подвод водопровода к площадке.
Проект необходимо согласовать и одобрить. Без получения разрешительных документов терраса будет считаться самостроем , что в будущем усложнит продажу, сдачу в аренду или другие операции с недвижимостью.
Какие этапы строительства открытой веранды 3х6м к дому необходимо выполнить
Существует множество материалов для строительства террасы к дому своими руками. Выбирайте их с учетом климата, рельефа, грунта, ваших технических навыков и денежных средств. Например, в районах с повышенной влажностью лучше использовать покрытия с хорошей гидроизоляцией.
Фундамент
Его выбор зависит от типа грунта и уровня грунтовых вод. Поскольку террасная пристройка является облегченной конструкцией, то фундамент должен быть соответствующим. Обычно для нее предлагают 3 вида:
- Столбчатый
Столбы из готовых бетонных блоков размещают по углам будущего объекта и в местах пересечения стен. Является наиболее дешевым технологичным вариантом. Недостаток данного метода в том, что столбы устанавливаются исключительно на ровном рельефе и в сухом устойчивом грунте.
- Свайный
Он подходит для любых грунтов: песчаных, глинистых, илистых и торфяных. Сваи заглубляют на 1-2 метра в зависимости от промерзания почвы. Этот способ особенно актуален при высоких грунтовых водах: по весне они могут затапливать участок. Другое его достоинство — возможность строить здания на поверхности с неровным рельефом. Из минусов — высокая стоимость труб и необходимость специальной техники для забивания.
- Ленточный
Он делается из железобетонных блоков, которые образуют замкнутый контур. Это технологичный и быстровозводимый тип основания. Лента фундамента прокладывается под всеми несущими стенами, в точности повторяя их форму. Поэтому он подходит только для сухих грунтов и ровного рельефа.