Проекты каркасных бань своими руками. Преимущества и слабые стороны каркасных бань
- Проекты каркасных бань своими руками. Преимущества и слабые стороны каркасных бань
- Проект каркасной бани 5х4. Проектируем самостоятельно: современные типы бань
- Проект каркасной бани 6х4. Разработка проекта
- Маленькая каркасная баня своими руками. Как построить каркасную баню самому: преимущества и особенности самостоятельного строительства
- Каркасная баня своими руками чертежи. Фундамент
Проекты каркасных бань своими руками. Преимущества и слабые стороны каркасных бань
Какими преимуществами обладают бани, построенные по каркасной технологии? Вот основные плюсы :
- бюджетный вид строительства;
- строительную технику привлекать не нужно;
- каркас стоит на облегченном фундаменте;
- быстрый нагрев помещения из-за низкой теплопроводности;
- красивый внешний вид благодаря внутристенной организации коммуникаций;
- баня сразу готова к эксплуатации, поскольку усадка отсутствует;
- материалы экологически безопасны;
- обучиться самостоятельному возведению достаточно просто даже по
- стройка проходит в любой момент, независимо от погоды, потому что мокрые циклы возведения отсутствуют;
- готовые каркасные бани можно отделать снаружи на любой вкус.
А есть ли минусы у бани на каркасной основе ?
Поговаривают, что стены бань-каркасников склонны к образованию грибка. Действительно, помещение быстро нагревается и быстро остывает, поэтому такая проблема актуальна. Мы советуем найти правильный подход к теплоизоляции и ни в коем случае не экономить на качестве утеплителя. Эконом-вариант в виде пенопласта не стоит даже рассматривать, так как он быстро воспламеняется.
Зато минеральная вата в плитах или рулонах подойдет намного лучше. Этот материал пропускает пар, не горит, позволяет стенам “дышать”. Чтобы перекрыть все стыки и добиться наилучшего результата, проекты каркасных бань должны включать двухслойное утепление: первый пятисантиметровый слой в плитах + дополнительный из рулонного материала такой же толщины.

Еще стоит упомянуть о негативных отзывах владельцев бань-каркасников, связанных с усадкой. Уже через два года у некоторых хозяев конструкция усаживается до 10 см, деформируется отделка внутри и снаружи. Скорее всего, это результат неправильного подбора древесины для каркаса. Рекомендуем останавливать свой выбор на пиломатериалах после камерной сушки.
По итогам вышесказанного, недостатки технологии в проектах каркасных бань таковы:
- утепление стен надо тщательно продумывать, на хорошие материалы придется потратиться;
- антисептик и антипирен для обработки дерева — еще две обязательные статьи расходов;
- древесину следует покупать особую, более дорогую.
Тем не менее, каждый относительный минус можно нивелировать с помощью грамотного проекта . Об этом мы и расскажем далее.
Проект каркасной бани 5х4. Проектируем самостоятельно: современные типы бань
Готовую проектную документацию бани из бруса с мансардой или любой другой можно приобрести в специальных бюро или выполнить самостоятельно. Во втором случае в помощь придет любой типовой проект для выбранного размера строения.
Перед началом проектирования бани на основе каркаса решаются ключевые вопросы:
- найти самое рациональное месторасположение здания, с учетом удобства и простоты для подведения водо-канализационных, осветительных коммуникаций;
- спланировать размеры будущего здания;
- на выбранном месте, изучить состав почвы и перепады поверхности грунта. Эти факторы станут решающими в выборе типа фундамента;
- решить необходимость возведения 2-х этажей, мансарды и постройку внешних элементов, таких как веранда , терраса;
- определить тип крыши. Рассматриваются варианты односкатной, двускатной, многоскатной конструкции.
При выборе количества скатов крыши, учитывается размеры бани, климатические особенности местности, расстояние до других построек, тип покрытия.
Готовый проект станет помощником в рациональном распределении пространств, выборе строительных материалов . Определиться с предпочтениями помогут и фото бань.
Предварительно продумать внутреннюю планировку бани с точки зрения функциональности. Определить место установки печки. От него зависит, как будут располагаться дымоходы и вентиляция.

На этапе проектирования решается вопрос выбора материалов, из которых будет возводиться строение и обсчитывается примерная стоимость строительства. Ч ем более подробно разработан проект каркасной бани своими руками, тем легче вносить в него коррективы при возникновении непредвиденных обстоятельств.
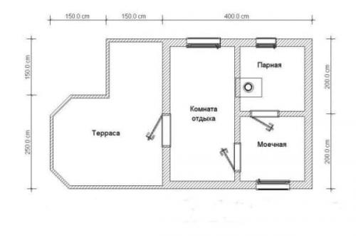
Вариант 4*5 м
Строение размером в 20 м2 компактно, подходит для бани состоящей из трех помещений:
- комнаты для отдыха;
- парилки;
- санитарного помещения с унитазом и душем.
При определении размеров внутренних помещений расчет делается не для «чистого» размера, а с учетом толщины перегородок и стен.

Наиболее подходящая площадь для комнаты отдыха 7-8,5 м2, для парной – до 5 м2, для санузла – не менее 2,2 м2. Небольшие размеры строения не предполагают предбанника. В парной располагается каменка и вся основная поверхность печи. В комнату отдыха выносится топка, играющая роль еще и отопительного прибора . Чтобы в баню с улицы не попадал холодный воздух, необходимо предусмотреть наличие закрытого крыльца.
Расходные материалы и элементы бани 4*5 м:
- Фундамент ленточный заглубленный на 70 см и высотой цоколя 40 см. Для его обустройства требуется подушка из гравия толщиной до 20 см.
- Каркас состоит из стоек и обвязки по верхнему и нижнему краю строения. Оптимально использовать доски 100*50 мм.
- Крыша двускатная со стропильной системой из доски 150*50 мм. Шаг укладки 580 мм.

Обшивка выбирается в зависимости от требуемого уровня теплоизоляции.
Вариант 6*6 м с верандой, балконом
Размер 6*6 м дает пространство для фантазии. В проект такой бани можно включить такие помещения:
- террасу или тамбур;
- комнату отдыха и спальную;
- парилку;
- полноценный санузел;
- моечную.
Линейные размеры предполагают использование пиломатериалов стандартной длины, что удешевляет строительство из-за малого количества отходов.

Моечную комнату можно сделать предельно большой с прямым выходом из парилки и в ней разместить лежаки для отдыха. В другом варианте проекта предполагается разделить моечную и парную небольшим коридором соединенным с комнатой отдыха. В этом случае в комната для мытья будет несколько меньше.
Вариант 6*3 м: дизайн с террасой
Проект бани 6*3 м с террасой встречается в двух вариантах:
- Терраса не входит в площадь строения и ей размер планируется отдельно. В этом случае общий размер здания увеличится на площадь веранды.
- Терраса является частью общего здания. Тогда все внутренние помещения будут иметь меньший размер.

Небольшие размеры бани не позволят обустроить полноценный санузел. Печь будет топиться из комнаты для отдыха.
Выбрать печь компактную, возможно модель будет узкая и вытянутая вверх.
Вынос террасы за фундамент основного строения позволит выделить небольшое пространство от комнаты отдыха для тамбура . Тогда возможно попариться и в зимнее время. Примерные размеры внутренних помещений:
- комната-парилка – 3,5 м2;
- душевая/моечная – 1,8 м2;
- комната релакса – 8,5 м2;
- тамбур – 2,6 м2;
- выносная терраса – 11 м2.

Для формирования каркаса понадобится брус 100*150 мм. Их него делается обвязка и устанавливаются лаги пола. Для крыши используют брус 150*40 мм для потолочного перекрытия. Стропильная система укладывается из обрезной доски. Для этого подходит доска с размером 100*50 мм. Материал для обшивки и кровли выбирается в зависимости от личных предпочтений и климатических условий.
Вариант 4*4 м с террасой
Такой размер строения предполагает только выносную, пристроенную террасу , но под общей крышей и на общем фундаменте.
Площадь 4*4 м подход больше для сухих саун. Для русских бань не самый комфортный вариант.

Проект каркасной бани 6х4. Разработка проекта

План постройки с мансардой
Профессионально разработанный проект каркасной бани 6х4 гарантирует целый ряд преимуществ, среди которых:
- Обеспечение длительного эксплуатационного ресурса благодаря профессиональному подходу к подсчету расчетных нагрузок на каркас;
- Возможность подобрать правильный тип стройматериалов в соответствии с нагрузками, оказываемыми на каркас;
- Возможность корректного составления сметы и, как следствие, предотвращение перерасхода стройматериалов;
- Отсутствие затруднений при регистрации строительного объекта в кадастровых органах;
- Более высокая цена при продаже дома вместе с баней на рынке вторичной недвижимости.

План одноэтажной бани 6*4
Из вышесказанного следует то, что проект каркасной бани 6х6 или 6 на 4 необходим. Но если строительство можно выполнить самостоятельно, то разработка и изготовление проектной документации требует профессионального и квалифицированного подхода.
Заказать проекты бань различных конфигураций можно в специализированных бюро. Также проектную документацию можно получить, приобретая готовый комплект каркасной бани. В итоге, вы по предоставленному плану, самостоятельно или с помощью приглашённых монтажников собираете сооружение.

На фото сборка щитовых панелей
В соответствии со стандартной проектной документацией, каркас под быстросборную баню строится с шагом 95-100 см. В качестве основного стройматериала применяется доска 150х50 мм или брус.
Важно: Если заготовка материалов и строительство ведется самостоятельно, необходимо убедиться в том, что приобретённая древесина в должной степени просушена. Если влажность бруса и доски составляет больше 20%, есть вероятность, что постройку в ходе эксплуатации «поведёт» и потребуется дорогостоящий ремонт.
Каркасная баня 6х6 с мансардой, равно как и постройка 6х4, строится с парным и моечным отделением на первом этаже. На этом же этаже обустраивается предбанник или раздевалка. Печь-каменка для большего комфорта и безопасности топится не из моечного отделения, а из предбанника.
Согласно проекту в мансарду можно попасть из предбанника по внутренней деревянной лестнице. Расчет помещений производится в соответствии с планируемым количеством человек, одновременно использующих баню. Ряд разработчиков, помимо комнаты отдыха, в мансарде предусматривает наличие террасы или веранды.

Стены, облицованные деревянной вагонкой
Бани, в соответствии с чертежной документацией, оборудуются внутренними перегородками между моечным отделением, парной и предбанником. Перегородки, как и несущие стены, изготовляются каркасными + с утеплителем, заложенным между слоями внешнего покрытия. Утеплитель в обязательном порядке с обеих сторон прокладывается гидро- и пароизоляционной пленкой.
Каркасные малогабаритные постройки, независимо от типа примененных отделочных материалов, характеризуется малой нагрузкой на грунт. Поэтому быстросборные бани возводятся на небольшом малозаглубленном фундаменте ленточного типа .
Применение ленточного основания гарантирует такие преимущества как экономия строительных материалов и времени.
Важно: организации, занятые проектированием и строительством быстросборных зданий, при необходимости могут внести в план объекта требуемые изменения. Разумеется, внесение изменений в проект скажется на его стоимости, но в таком случае можно будет построить нетиповую баню, которая будет максимально соответствовать вашим потребностям.
Маленькая каркасная баня своими руками. Как построить каркасную баню самому: преимущества и особенности самостоятельного строительства

Благодаря доступности и быстроте возведения каркасная баня пользуется спросом у дачников и владельцев частного сектора. Это отличное место как для сезонного, так и для круглогодичного отдыха.можно заказать у специалистов или же соорудить ее с нуля своими руками.

- Экологичность сырья. Основной материал – дерево. Внутри бани всегда будет приятный аромат натурального дерева.
- Под строение не нужно заливать массивный фундамент . Вполне хватит столбчатого основания или винтовых свай (в зависимости от типа грунта).
- Конструкция прогревается быстрее, в отличие от кирпичных или бревенчатых бань.
- Экономия топлива. Дров для хорошей протопки такой бани потребуется в 2–3 раза меньше, чем для кирпичной.
- Невысокая цена на материалы.
- Возможность строительства в любое время и погоду.

Из минусов каркасной бани:
- Для круглогодичной эксплуатации строение придется утеплять, что повлечет дополнительные траты.
- Необходимы наружная и внутренняя отделка конструкции.
- Баня нуждается в периодической антисептической, огнезащитной обработке.
- Велика вероятность усадки бани спустя 1,5–2 года. Усадка может быть до 10 см. Из-за этого происходит деформация отделки внутри и снаружи.
Чтобы предотвратить существенную усадку конструкции, для строительства нужно применять доски и другие пиломатериалы, которые сушили камерным способом.
Варианты проектирования бани
В начале строительных работ разрабатывается проект будущего сооружения. Сделать это можно самостоятельно, взяв за шаблон один из готовых чертежей в интернете. Есть хорошая альтернатива, которая сэкономит время, – заказать проект у специалистов. Эта же команда займется и пошаговым возведением под ключ.

В продаже есть готовые модульные баньки, которые просто собираются по принципу конструктора и не нуждаются в наружной или внутренней отделке.
Каркасная баня своими руками чертежи. Фундамент
Фундамент, как я уже говорил, под нашей баней столбчатый. Сначала мы не без помощи наемников сняли лопатами слой грунта с растущей на нем травой. Площадку выровняли, после чего начали делать разметку.

Начало начал. Сняли грунт по всей площади
Хочу поделиться опытом и подробно рассказать о процессе разметки. Чтобы баня не была кривой и косой, обязательно нужно точно вымерять углы и диагонали. Мы так и поступили.
Первый угол намечали, воткнув в землю колышек и выровняв его по отвесу. Для дальнейшей разметки пригодился угольник и пятиметровая рулетка. К первому колышку привязали шнур, отмерили 450 мм, проверили угол и воткнули еще два колышка, соответственно обозначающих второй и третий углы бани. Аналогично натянув шнур, установили последний четвертый колышек.
Несмотря на то, что углы мы проверяли угольником, замер диагоналей показал небольшие неточности. Пришлось исправлять их, слегка сдвигая колья и четко выравнивая их по уровню.
Дальнейшим этапом работы стала разметка местоположения столбцов, расстояние между которыми равняется 112,5 см. Местоположение отмечали, просто неглубоко втыкая прутья арматуры.
В бане будет одна межкомнатная перегородка, соединенная с углом печи. Используя рулетку, мы с сыном сделали замер и отметили положение одного столбика, который будет удерживать перегородку и еще четырех столбиков, которые в дальнейшем окажутся под печью.

Талибы бурят, сын помогает
После всех расчетов и разметок пришло время бурить ямы под фундаментные столбы. Под землю они будут уходить на полтора метра и еще на 30 см торчать из земли. На фото видно, что мы сняли шнуры, но оставили колышки. Ямы выкопали довольно быстро – рабочие бурили бензобуром, сын помогал таскать землю. Кстати, диаметр ям был примерно 30 см, то есть на 5 см больше диаметра асбестоцементных труб.
Чтобы столбики стояли крепко, на дно ям я насыпал слой гравия и песка, после чего утрамбовал эту засыпку ручной трамбовкой. Изготовил ее сам, перпендикулярно приколотив к длинному березовому бревну брусок-ручку. Принцип простой – засыпал гравий, взял бревно, опустил в яму и несколько раз им постучал.

В каждую яму подсыпали песок и гравий, утрамбовали и расставили столбы, под печь — 5 штук
Цемент для столбиков мы с сыном замешивали в небольшой электрической бетономешалке . Засыпали цемент, песок, немного щебня, перемешивали и вливали воду. Столбики заливались по всем правилам. Сначала труба опускалась в яму, потом в нее наливался первый слой раствора. Трубу мы приподнимали, чтобы часть раствора стекла на дно ямы, после чего опускали ее, выравнивали и уже тогда слоями по 20-30 см заливали доверху. Каждый слой приходилось уплотнять, используя все то же бревно с перекладиной. Благо диаметр полена был меньше диаметра труб. Чтобы не испачкать столбы, бетон лили через узкий желоб и пластиковую воронку. Получилось достаточно аккуратно. После заливки, в бетон мы вбивали прутья арматуры (шпильки с резьбой). Верхний край оставляли немного торчать над бетоном, чтобы в дальнейшем прикрепить брусья нижней обвязки. В последнюю очередь был засыпан песок в пространство между стенками ям и трубами. На этом работы по сооружению были временно завершены.
Через два дня, как следует отдохнув, я занялся фундаментом для печи. Разрезал лист ДСП на 5 частей – 4 для стенок опалубки и 1 для дна. Самый большой лист примерил на опорные столбики, потом пошел сверлить в нем отверстия под шпильки, а заодно приколотил гвоздями бортики. Получившуюся коробку с отверстиями я насадил на шпильки, приготовил гайки с шайбами и, выравнивая лист по уровню, потихоньку затянул крепеж. Снизу опалубку подпер досками.
Чтобы фундамент под печью получился более крепким, я изготовил арматурный каркас. Нашел сварную сетку, вырезал два куска почти по размеру опалубки и приварил куски проволоки так, чтобы каркас получился объемным. Посмотрите на схему, на ней показано, как расположены прутки. Конечно, в идеале использовать не сварную сетку, а самостоятельно связывать мягкой проволокой отдельные арматурины. Такое соединение более пластично и не разрушается почти никогда.
Схема армирования
В опалубку с уложенным арматурным каркасом заливали бетон , замешанный с порцией мелкой щебенки. Рассказывать здесь особо нечего – залили, выгнали проволокой пузырьки воздуха, утрамбовали, накрыли пленкой и оставили застывать. Процесс этот продолжительный, занимает целый месяц. Ждать мы с сыном не стали, решив за это время сделать каркас бани, крышу и некоторые сопутствующие работы.

Забетонировали все столбы, под печь залили плиту
Перед тем как начать укладывать балки, я вкопал между столбами трубы канализации и подачи воды, чтобы потом не пришлось подлезать под лаги.