Создание беседок из дерева своими руками: подробный инструктаж
- Создание беседок из дерева своими руками: подробный инструктаж
- Связанные вопросы и ответы
- Какие виды дерева наиболее подходящие для создания беседок
- Какие инструменты необходимы для создания беседки из дерева своими руками
- Как правильно выбрать место для установки беседки
- Какие факторы следует учитывать при выборе места для установки беседки
- Как сделать фундамент для беседки из дерева своими руками
- Как правильно выбрать размеры беседки
- Какие материалы можно использовать для покрытия крыши беседки
- Как сделать крышу для беседки из дерева своими руками
- Какие дополнительные особенности можно добавить к беседке, такие как полка или лампа
- Как обеспечить долговечность беседки из дерева своими руками
Создание беседок из дерева своими руками: подробный инструктаж
8 мин.
Беседка
Загородный дом или дача — отличная возможность обустроить собственную территорию так, как желают ее хозяева. Для большинства одним из самых привлекательных и практичных объектов становится беседка. Эта легкая постройка — украшение участка, комфортабельное место для отдыха и защита от непогоды. Беседка своими руками — операция, которая вполне по силам большинству владельцев загородных домов и дач. Однако перед началом ее строительства будущим хозяевам нужно познакомиться с потенциальными сооружениями, с используемыми материалами и элементами, а также со всеми этапами возведения легкой, но почти незаменимой конструкции.
Беседки: предназначение и их разновидности

Если владельцы участка планируют построить беседку своими руками, то сначала им нужно решить, какую конструкцию предпочесть, какие функции будут возложены на этот небольшой домик. Как правило, такие постройки служат для защиты владельцев и их гостей от осадков, солнца, частично или полностью — от ветра. Однако беседка может быть оптимальным местом для установки полноценной печи, мангала или барбекю, использоваться не только как зона отдыха, но и как небольшая игровая площадка для детей.
Сравнительно простые конструкции бывают нескольких типов. По степени открытости беседки делятся на закрытые и открытые.
Закрытые

Эти постройки имеют крышу, стены и пол. Их называют садовыми домиками, и нередко используют круглый год. Для таких конструкций создают прочный фундамент. Чтобы обеспечить комфортное времяпрепровождение в холодное время года, внутри устанавливают электрический обогревательный прибор, или выкладывают кирпичную печь своими руками.
Закрытая беседка может быть прямоугольной, но более привлекательны многоугольные конструкции — шестигранные или восьмигранные строения. Очень эффектно выглядят садовые домики, в которых стены (крыша) сделаны из стекла. Эти невесомые строения пропускают максимум света, дают возможность следить за тем, что происходит в любом уголке участка.
Создание беседок из дерева своими руками: подробный инструктаж
Загородный дом или дача — отличная возможность обустроить собственную территорию так, как желают ее хозяева. Для большинства одним из самых привлекательных и практичных объектов становится беседка. Эта легкая постройка — украшение участка, комфортабельное место для отдыха и защита от непогоды.
Выбор конструкции и материалов
Если владельцы участка планируют построить беседку своими руками, то сначала им нужно решить, какую конструкцию предпочесть, какие функции будут возложены на этот небольшой домик. Как правило, такие постройки служат для защиты владельцев и их гостей от осадков, солнца, частично или полностью — от ветра. Однако беседка может быть оптимальным местом для установки полноценной печи, мангала или барбекю, использоваться не только как зона отдыха, но и как небольшая игровая площадка для детей.
Типы беседок
Сравнительно простые конструкции бывают нескольких типов. По степени открытости беседки делятся на закрытые и открытые.
Закрытые беседки
Эти постройки имеют крышу, стены и пол. Их называют садовыми домиками, и нередко используют круглый год. Для таких конструкций создают прочный фундамент. Чтобы обеспечить комфортное времяпрепровождение в холодное время года, внутри устанавливают электрический обогревательный прибор, или выкладывают кирпичную печь своими руками.
Открытые беседки
Открытые беседки имеют только крышу и не имеют стен. Они могут быть использованы как зона отдыха, или как место для барбекю. Открытые беседки могут быть установлены на фундаменте или на бетонной основе.
Материалы для строительства
Для строительства беседки из дерева используются следующие материалы:
- Доски для стен и пола
- Крыша из дерева или металла
- Материалы для отделки (например, лак, краска, обои)
- Основание (фундамент, бетонная основа)
Шаги постройки
Строительство беседки из дерева своими руками включает в себя следующие шаги:
- Подготовка территории
- Установка основания
- Строительство стен
- Установка крыши
- Отделка
- Установка электрических приборов (если необходимо)
Следует помнить, что строительство беседки из дерева своими руками требует некоторых навыков и опыта. Если вы не уверены в своих навыках, лучше обратиться к специалистам.

Связанные вопросы и ответы:
Вопрос 1: Какие материалы необходимы для изготовления беседки из дерева своими руками из подручных материалов
Ответ: Для изготовления беседки из дерева своими руками из подручных материалов необходимы следующие материалы:
1. Дерево (обычно используются хвойные породы, такие как сосна или ель, или лиственные породы, такие как ясень или берёза).
2. Для крепления деталей беседки могут использоваться гвозди, шурупы, болты, винты, а также клеевая лента или клей.
3. Для обработки дерева могут использоваться рубанки, пила, шлифовальные машины, шуруповерты и другие инструменты.
4. Для защиты дерева от погодных условий и увеличения его срока службы могут использоваться краски, лаки, масла или иные защитные составы.
5. Для создания удобного и безопасного настила могут использоваться доски, брусья, пластик или другие материалы.
Вопрос 2: Какие инструменты необходимы для изготовления беседки из дерева своими руками из подручных материалов
Ответ: Для изготовления беседки из дерева своими руками из подручных материалов необходимы следующие инструменты:
1. Рубанки и пила для распиливания и обработки дерева.
2. Шлифовальные машины для обработки поверхности дерева и удаления насечек.
3. Шуруповерты для крепления деталей беседки.
4. Мастерская или работающая поверхность для работы с деревом.
5. Инструменты для измерения и прокладки, такие как линейка, уровень, клевер и т.д.
6. Перчатки, очки и другие средства индивидуальной защиты для безопасной работы с инструментами.
Вопрос 3: Как выбрать подходящее место для установки беседки
Ответ: Выбор места для установки беседки зависит от нескольких факторов:
1. Доступность места для установки беседки.
2. Удобство и безопасность для пользователей беседки.
3. Возможность защиты беседки от непогоды и прямых солнечных лучей.
4. Возможность обеспечения достаточного освещения и вентиляции.
5. Возможность создания удобного и безопасного доступа к беседке.
Какие виды дерева наиболее подходящие для создания беседок
Дерево для обустройства беседки на природе подходит больше всего, ведь это экологичный и полностью безопасный материал, который станет дополнением естественного ландшафта и удачно впишется в дизайн практически любого дачного участка.
Главные преимущества беседки из дерева:
- пластичность и простота в обработке. Дерево позволяет воплотить массу задумок и создать необычные формы;
- небольшой вес, что значительно упрощает монтаж и позволяет обходиться облегченным фундаментом ;
- способность поддерживать оптимальный микроклимат. Согласно отзывам владельцев, даже в жаркий день в такой беседке несколько прохладней, ведь дерево обладает низкой теплопроводностью;
- полная экологичность;
- невысокая стоимость, тем более что порой строительный материал даже покупать не придется, ведь в ход могут пойти старые деревья с участка;
- универсальность. Беседка с деревянными стенами станет достойным украшением любой дачи.

Минусы :
- невысокая устойчивость к влаге, огню и вредителям;
- необходимость постоянного ухода как следствие предыдущего недостатка. Чтобы беседка как можно дольше сохраняла свой первоначальный вид, необходимо регулярно обрабатывать конструкцию антисептиками для защиты от грибка и плесени , антипиренами для повышения пожарной безопасности, а также специальными лаками и пропитками;
- даже после обработки антипиренами мангал или барбекю в такой беседке ставить нельзя.

Для возведения беседки из дерева могут использоваться оцилиндрованные и неоцилиндрованные бревна, строганый и клееный брус, массивная доска и тонкие деревянные рейки. Древесина должна быть хорошо высушенной, в противном случае при эксплуатации могут пойти трещины.

Что же касается пород , то в этих целях, как правило, используют сосну и лиственницу . Лиственница славится своей влагостойкостью, сосна уступает ей по этому параметру и по прочности, но стоит дешевле. Опытные дачники советуют использовать для строительства беседки старые деревья, растущие на участке и уже отжившие свой век. Их бы все равно пришлось спиливать и вывозить, но они еще могут быть полезными. Фруктовая древесина отличается красивым рисунком, а ее ветви часто имеют интересные формы. Именно ветви и могут использоваться для создания стенок, а пеньки послужат для организации столбчатого фундамента. Вариантов масса – главное, не забыть обработать древесину защитными средствами.
Какие инструменты необходимы для создания беседки из дерева своими руками
Чтобы беседка из дерева своими руками построенная на участке, стала гордостью владельцев участка, работы по ее сооружению нужно проводить с применением специального инструмента. На стенах не будет зазоров, все стыки будут идеально подогнаны, а швы обработаны и отшлифованы, если под рукой имеется следующий инструмент.

| Материалы | Инструменты |
|---|---|
| A – Бетонная опора (фундамент): трубчатая опалубка (4 штуки), регулируемые анкеры (4 штуки); | Циркулярная пила, пила для резки под углом; |
| B – Периметр обрешетки пола (нижняя обвязка): брус 5х15 см длиной 300 см (2 штуки), брус 5х15 см длиной 307.5 см (2 штуки); | Дрель и сверла; |
| C – Средняя балка каркаса пола: брус 5х15 см длиной 300 см (1 штука); | Молоток, уровень, столярный карандаш, рулетка; |
| D – Лаги пола: брус 5х15 см длиной 148.5 см (16 штук); | Бур для рытья ям под столбы; |
| E – Распорки для лагов пола: брус 5х15 см длиной 36.5 см (18 штук); | Лестница; |
| F – Деревянные стойки: брус 10×10 см длиной 270 см (9 штук); | Защитные перчатки, очки. |
Как правильно выбрать место для установки беседки
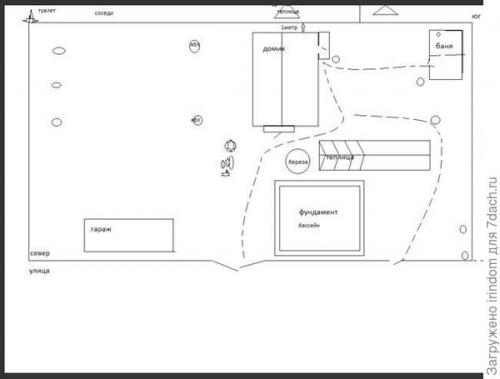
Вопрос от нашей подписчицы Ann Viktori:У меня вопрос по устройству участка. Домик очень близко к соседнему участку (1 метр от забора), причем юго-восток!.. Вход с юго-западной стороны. Между домиком и баней, у забора, детская площадка: домик и песочница. Есть еще вход с севера-запада (в виде балкона). С юго-востока на северо-запад приличный наклон, особенно до ворот.Где лучше разместить беседку?
У вас есть свой дачный вопрос? Задайте его нашим экспертам и опытным дачникам.
Какие факторы следует учитывать при выборе места для установки беседки
Чтобы решить, где соорудить беседку, важно учесть несколько нюансов.
Назначение
Место для беседки выбирайте с учетом ее назначения. Вот несколько примеров.
- Если планируете в летнем домике обедать и принимать гостей, располагайте его ближе к кухне, чтобы было удобно приносить и уносить посуду и угощения.
- Если беседка предназначена для спокойного отдыха, выделите для нее самое тихое и укромное место.
- Если же хотите использовать перголу или павильон, чтобы переждать полуденный зной, спрятаться от дождя или просто посидеть и перевести дух, выбирайте самое живописное место. Устроив себе минутку отдыха, вы сможете любоваться красивыми видами своего сада.
Идеальным расположением для беседки, в зависимости от назначения, может стать дальний тихий угол участка, место рядом с домом или летней кухней, боковой фасад дома, наиболее живописные зоны сада.
Рельеф участка и его зоны
Рельеф дачного участка нередко вносит коррективы в выбор места для беседки. Если территория бугристая, приходится выравнивать площадку под строительство или установку летнего домика. При внушительных перепадах высот может даже понадобиться лестница.
Если в пределах участка есть водоем, не упустите шанс поставить беседку рядом с ним. Вид воды действует успокаивающе, поэтому лучшего места для отдыха вам не отыскать.
Не забывайте, что беседка сама по себе является украшением сада. Поэтому при выборе расположения подумайте, как она смогла бы показать себя во всей красе. Чтобы сделать акцент на летнем уголке отдыха, выделите ей местечко на границе садовых зон, по углам участка или недалеко от входной зоны.
Самые неудачные места для беседки
Чтобы вы избежали популярных ошибок, назовем самые неудачные места для беседки.
- Въездная зона и парковка . Тут всегда шумно и пыльно. Да и красота пейзажа под большим вопросом.
- Детская площадка . Хорошо, если площадка для игр будет в поле видимости. Однако если расположить ее слишком близко к беседке, о полноценном релаксе можно забыть. Исключение составляют разве что навесы и перголы, которые специально созданы для проведения времени с детьми.
- Центр маленького участка . Не стройте беседку в центре небольшого (около 6 соток) участка. Конструкция только лишний раз подчеркнет скромные размеры дачных владений. Наиболее удачным расположением в этом случае считается один из углов, например, самый дальний.
Если беседка оборудована камином или печью, ее расположение не должно быть слишком близким к дому, особенно к окнам спальни или гостиной. Ведь дым может доставить вашим домочадцам и гостям неудобства.
Чтобы не было проблем с соседями
При выборе места для беседки учтите кое-какие важные ограничения. Так, любая постройка должна возводиться на расстоянии не менее 1 м от соседского забора. Помните также о следующих нюансах и о том, как они влияют на расположение хозяйственной постройки.
- Наличие пожароопасных объектов с подведением коммуникаций (например, газовый гриль) – минимум 5 м от забора.
- Наличие фундамента – 5 м от водопровода и напорной канализации, 2 м от газопровода низкого давления, 4 м – среднего и 7 – высокого давления, а также 0,6 м от любых силовых кабелей.
Если крыша беседки выступает за плоскость стены не более чем на 50 см, расстояния измеряются от цоколя. В противном случае – от максимально выступающих элементов конструкции или их проекции на землю.
Даже если соседям все равно, где вы строите беседку, и вы не боитесь штрафных санкций, владельцам небольших участков стоит опасаться шума со смежной территории. Поэтому старайтесь, чтобы сооружение было максимально удалено от входа в соседский дом, их беседок, мангалов, детских площадок, курятника. Разумеется, важно расположить беседку подальше от соседского (да и собственного!) туалета. При этом учитывайте и направление ветра: посторонние запахи и сквозняки вам ни к чему.
Как сделать фундамент для беседки из дерева своими руками
Строительство фундамента для беседки своими руками начинается с проектирования конструкции и подготовки места.
Как сделать проект самостоятельно
- 1) Начертите план беседки, заранее выберите материал для возведения стен или опор. Желательно делать чертеж в масштабе, чтобы в дальнейшем было удобно соблюсти все размеры при строительстве.
- 2) Дальнейший план действий зависит от типа выбранного фундамента. Для столбчатого и свайного определяют размещение опор: на стыках и по периметру под стенами с шагом 1,5-2,0 метра, если предполагается строительство зоны отдыха с большим периметром. Для ленты принимают ширину, превышающую толщину стен на 10-15 см.
Подготовка места
- 1) Площадь строительства расчищают от валунов, кустарников.
- 2) Делают разметку периметра. Для обозначения точек пересечения стен удобно использовать арматурные куски или деревянные колышки. Их забивают в почву, натягивают между ними веревку. Так обозначают периметр.
- 3) Теперь приступают к выкапыванию траншеи или котлована, под столбы – делают ямы. Если плита перекрытия (пола) будет располагаться немного ниже грунта, верхний слой почвы обязательно нужно снять и тщательно удалить корни растений.
Как глубоко копать
Для столбов и ленты требуется выемка грунта для освобождения места для конструкций в почве. Величина заглубления зависит от ряда факторов:
- Типа грунта;
- Наличия грунтовых вод;
- Уровня промерзания почвы в регионе.
Чем мельче и подвижнее грунт, тем меньшее заглубление фундамента требуется. Определить глубину промерзания земли в регионе можно по СНиП «Строительная климатология» согласно таблицы в приложении. К полученному значению нужно прибавить 20 см на обустройство подушки из песка и щебня. Поскольку беседки обычно нетяжелые, строгих требований к несущей конструкции не предъявляют, но норм все же стоит придерживаться.
Под сваи выравнивать грунт и выкапывать ямы не нужно.
Как правильно выбрать размеры беседки
- Многоугольные : основа таких конструкций – шести- или восьмиугольник. Чаще всего такую форму придают полуоткрытым беседкам из дерева или из кованого металла. Многоугольные беседки – яркие претенденты на роль элемента садового ландшафтного дизайна.
- Круглые : округлая или цилиндрическая форма обычно представляет классическую беседку-ротонду. В соответствии с формой и материалом стол должен быть такой же. Крыша этого вида конструкции выполняется в форме купола и часто украшается вьющимися растениями.
- Комбинированные : эту разновидность используют при строительстве закрытых беседок – «летних домиком». Она сочетает в себе многоугольную форму, навесы и дополнительные аксессуары.
Выбирая форму и размер беседки, важно учитывать гармоничное сочетание всех элементов.
Универсальный вариант для небольшой семьи – небольшой многоугольник (3х3), если дача, в первую очередь, место отдыха, то подойдёт вариант прямоугольной беседки (6–12 кв. м).
На просторных участках выигрышно смотрятся закрытые беседки, на маленьких – лёгкие ажурные конструкции.
Что касается размеров беседки, то они напрямую зависят от параметров участка и наличия свободного места.
Важно понимать, для чего вам нужна беседка, так как это влияет на тип будущей конструкции.
Если вы планируете небольшие посиделки в тесном кругу, то лучшего варианта, чем простой навес или открытый многоугольник, не придумать.
Если же в планы входят более масштабные идеи для досуга, то такая беседка выполняется из кирпича или камня (лучших огнеупорных материалов), с установленным мангалом. Такое строение получится весьма объёмным, поскольку очаг должен располагаться минимум в 3 метрах от места застолья.
Есть и универсальное решение – летняя разборная конструкция. Она не нуждается в фундаменте, в отличие от остальных видов.
Выбирая форму и размер беседки, важно учитывать гармоничное сочетание всех элементов.
Универсальный вариант для небольшой семьи
Для небольшой семьи подойдёт маленький многоугольник (3х3), если дача, в первую очередь, место отдыха, то подойдёт вариант прямоугольной беседки (6–12 кв. м).
Выбор размеров беседки
Размеры беседки зависят от параметров участка и наличия свободного места.
Важность понимания целей
Важно понимать, для чего вам нужна беседка, так как это влияет на тип будущей конструкции.
Маленькие посиделки
Если вы планируете небольшие посиделки в тесном кругу, то лучшего варианта, чем простой навес или открытый многоугольник, не придумать.
Масштабные идеи
Если в планы входят более масштабные идеи для досуга, то такая беседка выполняется из кирпича или камня (лучших огнеупорных материалов), с установленным мангалом. Такое строение получится весьма объёмным, поскольку очаг должен располагаться минимум в 3 метрах от места застолья.
Универсальное решение
Есть и универсальное решение – летняя разборная конструкция. Она не нуждается в фундаменте, в отличие от остальных видов.
Какие материалы можно использовать для покрытия крыши беседки
Чтобы выбрать кровельный материал для беседки, нужно опираться на ее форму и строение.
- Односклонная - самый легкий вариант, установку которого можно выполнить самостоятельно. Такие крыши устанавливают в беседках четырехугольной формы, поддержка конструкции приходится на противоположные стены различного уровня. Сторону и угол наклона подбирают в соответствии с направлением ветров, чтобы крыша могла уберечь от косого дождя.
- Двухсклонная - еще один несложный и популярный способ, который применим для беседок прямоугольной формы, простой в укладке, но имеет некоторые минусы. При незначительном наклоне снег затруднительно сходит, а при излишнем - снижается угол видимости территории из беседки, поэтому такие конструкции могут применяться не для всех регионов.
- Четырехсклонная - в установке более трудоемкая, поэтому наблюдается крайне редко. Такая крыша создана из двух частей в форме трапеции и двух в форме треугольника, применяется при возведении прямоугольных или многоугольных беседок.
- В виде шатра - имеет четыре и более скатов треугольной формы, которые сходятся в одной точке. Такие конструкции имеют высокие аэродинамические характеристики и при большом свесе прочно защищают от погодных капризов.
- В виде круга - вариант посложнее, в зависимости от угла наклона обладает формой конуса или шлема, имеет необычный дизайн.

Как только вы выберете форму кровли, то будет легче решить, чем покрыть крышу беседки. Для склонных конструкций лучше класть листовой материал: шифер, профлист, металлочерепицу. Для шатровых, многогранных и пальмовых кровель листовой материал не стоит применять, иначе работа станет сложной, а мусора будет много, поэтому выбирать следует мягкие материалы, к примеру, битумная черепица.
Металлочерепица
Металлочерепица является востребованным и долгосрочным кровельным материалом, и для создания беседок он также применяется. Этот материал будет больше воспроизводить свои функции, если крыша строения произведена из металлочерепицы. Листовой материал обычно создается из оцинкованной стали, поверх наносится пару слоев защитных составов, а благодаря рельефу он напоминает черепицу.
Достоинства:
- малая масса,
- легкость и скорость установки,
- разнообразие оттенков и профилей,
- длительный срок эксплуатации,экологическая безопасность,
- стойкость к отрицательным влияниям окружающей среды благодаря защитному слою: дожди, снег, ветер, прямые солнечные лучи - все это металлочерепица не боится,
- легкость в обслуживании,
- доступная цена.
Минусы:
- высокая слышимость во время дождя,
- много мусора при монтаже крыш сложных форм,
- риск появления коррозии, если будет деформирован защитный слой.
Средняя цена за 1 кв. м.
300 руб.

Лист металлочерепицы

Крыша для беседки из металлочерепицы
Профлист
Профлист, или профнастил стоит дешевле, чем металлочерепица, и по многим показателям эти материалы имеют схожие характеристики. Профлист создается из стали холодного проката, на которую наносится несколько слоев защитного состава. Рельеф обычно сделан в виде волн или трапеций, и он должен обеспечивать материал прочностью. По эстетическим свойствам материал хуже металлочерепицы, а среди его главных плюсов можно отметить следующее:
- привлекательная стоимость,
- длительный срок службы,
- разнообразие цветов,
- небольшая масса и легкость установки,
- устойчивость к коррозии, скачкам температур и осадкам.
Единственный минус, кроме эстетической составляющей, заключается в высоком шуме во время дождя. Можно воспользоваться виброизоляционными прокладками, но они не могут полноценно справиться проблемой. Листы должны быть толстыми, так как тонкий материал уязвим к ударам и не ремонтопригоден. Металлическая кровля очень быстро нагревается, а это означает, что в жару в беседка будет как парник, поэтому такой вариант рационален для построек, находящихся в тени.
Средняя цена за 1 кв.м.
200 руб.

Листы профнастила

Крыша из профнастила
Гибкая черепица
Гибкая черепица является материалом, созданным на базе стеклохолста, который обрабатывается битумом и каменной крошкой. Материал считается мягкой кровлей и представляет собой маленькие модули прямоугольной, шестиугольной или других форм. Они устанавливаются внахлест и предназначены для установки кровель сложных форм, поэтому это отличный вариант, если вы не знаете, чем покрыть крышу беседки в форме купола.
Достоинства:
- Большой выбор цветов и форм.
- Мягкая черепица создается любых оттенков, а форма может быть как ромбовидной или прямоугольной, так и сложной.
Как сделать крышу для беседки из дерева своими руками
Для начала посмотрите на такой упрощенный вариант шатровой крыши, которая замечательно подходит для небольших беседок с легким кровельным покрытием:
А для самых маленьких беседок и вовсе такую:
Но, если в вашей местности снега бывает немало и вы переживаете, выдержит ли такая крыша все невзгоды, тогда лучше отдать предпочтение классической шатровой стропильной системе.
Итак, давайте определимся как построить стандартную шатровую крышу на беседке. Отталкиваемся от того, что каркас дома беседки у вас уже готов:
- Шаг 1. Натяните шнур между угловыми стойками и определите центр беседки.
- Шаг 2. Установите прямо в этот центр длинную доску, можно даже сшитую по длине, и закрепите ее любым удобным способом. Сильно натягивать не нужно, это ведь только ориентир.
- Шаг 3. Далее натяните шнуры от верха центра центральной стойки к углам – так вы визуально определите, где будут находиться ваши диагональные стропила.
- Шаг 4. Теперь установите сами стропила, лучше висячие, с приподнятой затяжкой. Для изготовления их возьмите доски 150 на 50 и запаситесь парой шаблонов из брусков 50 на 50 метров и длиной до 2 метров и 25 сантиметров.
- Шаг 5. Переходим к установке второй пары диагональных стропил. При этом вы можете убрать временную стойку, если она мешает, или хотя бы сдвинуть. Главное – не сдвинуть при этом центр, на который опираются все стропила.
- Шаг 6. Далее установите между диагональными стропилами третью и четвертую пару. Проверяйте все время шаблоном правильность разметки и установки.
- Шаг 7. Теперь размечаем и устанавливаем нарожники. С каждой стороны нужно прикрепить доски при помощи коротких брусков.
- Шаг 8. Отметьте на диагональных стропилах длину их выноса, например на 40 сантиметров, и натяните разметочный шнур.
- Шаг 9. Все стропила вам нужно отрезать по разметке, причем отрезать концы стропил вы можете как по вертикали, так и по горизонтали, и даже под прямым углом – как вам захочется и как того будет требовать эстетика.
- Шаг 10. Теперь между парами диагональных стропил произведите закрепление затяжек из досок 150 на 50 миллиметров, и отрежьте все лишнее.
- Шаг 11. Далее установите затяжки между другими стропилами, но расположите их уже выше или ниже установленных. А вот между нарожниками затяжки устанавливать не нужно.
- Шаг 12. Прибейте к концам стропил ветровую доску и накройте крышу листами ОСБ или фанерой, либо установите любую другую обрешетку под мембранную кровлю.
- Шаг 13. Если у вас получились слишком большие пролеты между столбами (например, больше 2 метров), тогда поставьте укосины или соорудите юбку из штакетника, что сегодня достаточно модно.
Какие дополнительные особенности можно добавить к беседке, такие как полка или лампа
При оформлении беседки можно использовать свет как оригинальную деталь декора. Иногда освещается весь фасад постройки. В этом случае хорошо подойдут разноцветные гирлянды Твинкл Лайт и Клип Лайт на светодиодах. Очень эффектно смотрятся гирлянды Занавес и Сетка, которые подвешиваются по периметру беседки и образуют вокруг нее красивый светящийся полог. Также с их помощью выполняется зонирование внутреннего пространства.
Для локальной декоративной подсветки применяются гирлянды Бахрома, Дреды и Сосульки. Их размещают как внутри, так и снаружи. Эффект усиливается при выборе моделей с многоцветными диодами и контроллером управления. Можно включать различные световые эффекты – мерцание, переливание цвета, бегущая волна.
Еще одним интересным средством декоративной подсветки является светодиодная лента. Ее устанавливают в любых подходящих местах: на потолке, стенах, полу, опорных столбах. Для монтажа применяется алюминиевый профиль с матовым экраном. Ленту в профиле можно монтировать накладным или более трудозатратным врезным способом, для которого потребуется сделать пазы в деревянном массиве.
Интересной дизайнерской идеей является скрытая подсветка led лентой. Понадобится выбрать место размещения светодиодного шлейфа, которое скрыто от глаз. Например, на стропилах или за карнизом. При правильном расположении источника света будет видно только свечение, красиво подсвечивающее потолок беседки.
Как обеспечить долговечность беседки из дерева своими руками
Строения округлой формы требуют тщательного выбора материала. Из наиболее популярного дерева построить круглую беседку сложно. При выполнении постройки в античном стиле с колоннами используют цементный раствор, кованые элементы для строительства беседки. Ажурные открытые беседки из кованого металла подчеркнут утонченный вкус хозяев, но стоят очень дорого.
Популярной сегодня стала полукруглая беседка с колоннами открытого типа в восточном стиле. Их называют ротондами, возводят возле водоемов. Круглые сооружения вместительны, отсутствие острых углов в них создает максимально гармоничный внешний вид.
Многогранная форма
Конструкции с количеством углов 6–8 сочетают основные достоинства круглых и прямоугольных строений.
- Занимая небольшой участок, они отличаются хорошей вместительностью.
- Многогранная конструкция отличается повышенной устойчивостью и прочностью, что важно в регионах с сильными ветрами и снегопадами, сейсмической активностью.
- Строения вписываются в любой архитектурный стиль.
- Они могут быть как компактных размеров с диагональю 1,5–2 м, так и просторные с диагональю 3–5 м. Установить такую беседку можно в саду или перед домом, вход легко повернуть в нужную сторону.
Большинство многогранных строений открытого типа имеют резную деревянную отделку или кованые элементы. Для отдыха зимой возводят закрытые домики-гриль из бруса либо бревна с каминами, печкой.
Основные принципы дизайна беседки на даче
Выбирая многогранную форму, чтобы построить беседку на даче, проекты лучше приобретать готовые либо пользоваться услугами строительных фирм.
Комбинированные строения
Если традиционные формы построек не могут удовлетворить потребности хозяина, то выбирают комбинированные постройки. Конструкции с двумя этажами отличаются многофункциональностью и вместительностью. Такое строение обычно зонируют: второй этаж предназначается для семейного отдыха, первый – для общественного использования. Также возможно использовать первый этаж как складское помещение либо гараж. Такие объекты особенно популярны на небольших участках, так как позволяют существенно сэкономить место.
Маленькие конструкции
Такие сооружения возводят на небольших участках, часто пристраивают к жилому дому или другому строению. Основным преимуществом таких конструкций является невысокая стоимость и минимальный размер занимаемого участка.
Средняя ширина составляет 1,5–2 м, длина – 2–2,5 м. Для каркаса применяют металлический профиль, деревянные столбы. В качестве обшивочного материала используют легкий сотовый поликарбонат.

