Красивые террасы и веранды пристроенные к дому. Какие виды веранд бывают?
Красивые террасы и веранды пристроенные к дому. Какие виды веранд бывают?
Прежде, чем разобраться с вариантами пристроенных веранд к дому, следует научиться отличать террасу и веранду.
Терраса — отдельная постройка, располагается за пределами дома, требует своего фундамента.
Веранда — пристройка к дому, базируется на его основании, находится на одном уровне.

На фото открытая пристройка к дому


Пристраивают веранду к дому в двух вариантах.
Открытая веранда
Строительство веранды такого типа не требует больших вложений и времени. По сути она представляет собой место для отдыха возле частного дома, часто делают под крышей на стойках, но встречаются и полностью открытые варианты или модификации с выдвижными навесами, откидной кровлей.
Расположение открытой веранды выбирают, исходя из архитектурных особенностей дома и функционала пристройки: например, если вы собираетесь разместить на площадке летнюю столовую или гостиную, советуем располагать ее со стороны кухни и делать дверь между кухней и открытой террасой.
Если есть свободное место у главного входа, веранду располагают там, оформляя под зону отдыха или бистро — места для утреннего кофе и созерцания природы.



Главные достоинства сооружения открытого типа в свежем воздухе и доступе естественного освещения. Недостаток — использование возможно только летом.
Закрытая веранда
Крытая веранда у дома, в свою очередь, также бывает теплой или холодной. Проще всего построить веранду с окнами в пол, но учтите, что этот вариант будет плохо сохранять тепло и не подойдет для суровых зим. Поэтому в условиях сильных перепадов температур, остекленную веранду используют только в качестве летней кухни .
Чтобы дополнительная площадь оставалась полезной в холодный сезон, конструкция террасы должна предполагать наличие стен, утепленных стеклопакетов, отопления. В отсутствии возможности провести центральное отопление, поставьте печку-буржуйку, она способна за короткий срок нагревать большие пространства.

Преимущества закрытой веранды очевидны: вы защищены от дождя, ветра, снега, назойливых насекомых. Благодаря этому можно использовать любую мебель, не боясь ее порчи. Из недостатков — недостаточное количество свежего воздуха и солнца, но это легко решить с помощью раздвижных панорамных окон-дверей.



Кроме деления по архитектурным особенностям, существуют разные виды веранд по функционалу:
- Гостиная . Главный элемент уюта в этой комнате — открытый огонь. На открытой площадке в виде очага или костровища, в закрытой — камин или печь. Обязательно наличие комфортных кресел, диванов, столика для закусок.
- Столовая . Чтобы пригласить друзей на вкусный ужин и собрать семью на обед на природе, достаточно поставить на террасе или веранде большой стол с удобными стульями.
- Спальня . Теплая пристройка вполне может стать гостевой спальней — этот вариант актуален, если у вас небольшой дом в один этаж, но гости часто остаются с ночевкой.
- Кухня . Для летней достаточно простого остекления, для круглогодичной нужно фундаментальное теплое сооружение.
Однако, чаще всего пристроенная веранда к дому выполняет сразу несколько функций: кухня объединяется со столовой, гостиная с игровой и так далее.

Строительство террасы к дому. Терраса у дома: планирование, ход работ
Терраса у дома может стать любимым местом отдыха всей семьи, встреч с друзьями или уединения с природой. Можно предусмотреть открытую площадку еще на стадии строительства жилья или пристроить ее позже. Раздумываете, как пристроить террасу к дому, но не знаете с чего начать? Мы подскажем, как спланировать пристройку, возвести фундамент и организовать полноценную зону отдыха.
Конструктивные особенности террасы
Место отдыха на приусадебном участке можно сделать в виде закрытой веранды, отдельно стоящей беседки или открытой террасы. Каждая постройка имеет определенные особенности. Терраса, пристроенная к дому, это открытая площадка без стен . Даже наличие крыши и ограждений не обязательно.

Конструктивные особенности террас:
- фундамент – общий с домом или отдельный, но соединенный с основной постройкой;
- возможно расположение около одной стены или по периметру всего дома ;
- площадка достаточно просторная, ее можно разделить на несколько зон.
Сооружение террасы у дома дает следующие преимущества:
- добавление полезного пространства – зону используют в качестве столовой, летней гостиной, игровой площадки , места для принятия солнечных ванн;
- использование декоративных элементов – оформление террасы позволяет значительно преобразить внешний вид дома.
Планирование открытой террасы
Прежде чем приступить к проектированию открытой террасы к дому, необходимо определиться с местом ее размещения и типом конструкции.

Выбор места под будущую постройку
Планируя обустройство террасы, следует учесть такие параметры:
- освещенность сторон дома;
- особенности рельефа участка и тип грунта;
- открывающийся с площадки вид;
- ландшафт территории – пристройка должна сочетаться с дизайном двора, стилем оформления дома.
Интересное решение для домов, расположенных на склоне – многоуровневая терраса. Такая пристройка одновременно выполняет роль ступеней .
Варианты размещения:
- Терраса к дому. Это самое популярное решение, так как его можно реализовать практически у каждого строения. Конструкция требует надежного основания . Возможно изготовление из разных материалов: кирпича, дерева, металла.
- Отдельно стоящая пристройка. Размещение на свободном участке территории. Площадку для отдыха можно сооружать на приподнятом блочном фундаменте или монолитном основании .
- «Кольцевая» терраса. Пристройка нуждается в прочном фундаменте и грамотном расчете. Возможно совмещение открытой части террасы и закрытой веранды .

Какой материал лучше выбрать
Для строительства открытой площадки чаще всего используют дерево. Это оптимальное решение, если планируется сооружение террасы своими руками.
Преимущества деревянных строений:
- простота обработки пиломатериалов;
- легкость материала и возможность сооружения «облегченного» основания;
- привлекательный внешний вид – дерево создает особую атмосферу комфорта и уюта ;
- универсальность – деревянная терраса органично смотрится с домами из разных материалов.
Минусы древесины:
- риск возгорания – на таких площадках лучше не обустраивать зону барбекю ;
- необходимость обработки дерева защитными составами, предупреждающими гниение и порчу насекомыми.
Кирпичная терраса – прочная конструкция, неприхотливая в уходе. Однако ее сооружение требует значительных финансовых затрат . Кроме того, такая пристройка не подойдет для каркасных и деревянных домов.

Разработка и согласование проекта
Определившись с типом террасы, ее размещением и материалом изготовления, необходимо составить эскиз будущей пристройки.
В план-проекте следует отобразить:
- точную конфигурацию, площадь и габариты пристройки;
- тип фундамента;
- массу сооружения;
- вид напольного покрытия, конструкцию крыши и вариант ограждения.
Размер террасы должен быть соразмерен с габаритами дома . Крохотные пристройки, примыкающие к просторному зданию, смотрятся нелепо.
Советы по планировке:
- терраса не должна быть менее 4 кв. м – сделать комфортной такую зону очень сложно;
- лучше отдать предпочтение прямоугольной пристройке – должно быть визуальное соответствие между главной частью дома и конфигурацией террасы;
- если планируется установка камина или печи, то необходимо усилить фундамент и продумать подвод водопровода к площадке.
Проект необходимо согласовать и одобрить. Без получения разрешительных документов терраса будет считаться самостроем , что в будущем усложнит продажу, сдачу в аренду или другие операции с недвижимостью.

Терраса к дому своими руками: ход работ
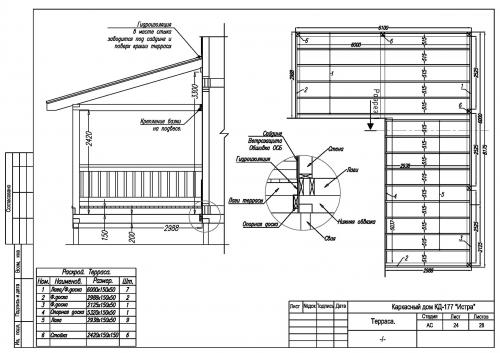
Рассмотрим порядок пристройки террасы к дому. В предлагаемом варианте используется столбчатый фундамент , опорные деревянные балки и дощатый настил . В конструкции предусмотрены крыша и ограждения.
Возведение фундамента
Для возведения столбчатого основания используют бетонные блоки или бордюрный камень. Второй вариант проще в реализации и дешевле.