Технология строительства террасы к дому своими руками. Каковы отличия террасы от других конструкций?
- Технология строительства террасы к дому своими руками. Каковы отличия террасы от других конструкций?
- Как пристроить террасу к дому. ВИДЫ ВЕРАНД
- Терраса своими руками: пошаговая инструкция. Терраса у дома: планирование, ход работ
- Терраса своими руками из досок. Строительство террасы к дому своими руками: как сделать фундамент
- Бюджетная терраса своими руками. Веранда пристроенная к дому: этапы строительства
Технология строительства террасы к дому своими руками. Каковы отличия террасы от других конструкций?
Терраса в загородном доме представляет собой просторную площадку, которая располагается над землёй перед жилым домом. Простым языком подобное сооружение представляет собой строительную конструкцию.

Часто террасу воспринимают за веранду. Однако она относится к разновидностям террасы, но главное условие заключается в наличии крыши, плавно прилегающей к дому. Ещё одним требованием является наличие панорамного остекления по периметру сооружения. В таком помещении можно находиться зимой и холодной осенью.
Выделяют несколько видов террас:
Крытая. В устройстве конструкции присутствуют небольшой навес над обеденной зоной или местом отдыха.

Огороженная. Здесь имеется небольшой бордюр в виде декоративной решетки, которую покрывают вьющие зелёные растения. По периметру конструкции можно установить необычные статуи. Наверняка многие замечали такие ограждения возле морского побережья. Главное предназначение подобных конструкций заключается в панорамном виде окружающей среды.

Многоуровневая. Такая терраса может содержать в себе несколько уровней, соединяющихся между собой выступами и ступенями.
По форме она делится на квадратную или прямоугольную. Большую террасу чаще всего выполняют по форме квадрата. Здесь удаётся компактно разместить зону отдыха, территорию для приема гостей. Прямоугольные предлагают для небольших территорий. Они тянутся вдоль жилого здания.

Если возведение данного сооружения планируется самостоятельно, то отталкиваться рекомендуют от простых форм. Для работы необходимо использовать качественные материалы и инструменты.

Как пристроить террасу к дому. ВИДЫ ВЕРАНД
С точки зрения конструкции и расположения есть разные виды террас и веранд, в этом они схожи. В современном строительстве есть много способов, как сделать террасу своими руками, но для легких деревянных конструкций предпочтителен столбчатый фундамент. Простой и экономичный вариант, состоит из частично погруженных в почву столбов и ростверка.
Варианты расположения и формы строений:
- Обособленная. Не привязана ни к одному строению на участке, стоит отдельно. Располагается в удобном месте участка, обычно вровень с ним или на небольшой возвышенности (10-20 см). Не требует глубокой укладки фундамента.
- Пристройка веранды к деревянному дому. Примыкает к одной или нескольким стенам. Бывает проходной, выступает частью крыльца. Материалы и фундамент подбираются разные, в зависимости от тяжести конструкции и привязки к основному зданию.
- Часть дома. Уходит внутрь одной из комнат (обычно угловой), увеличивая ее. Часто пристройка к деревянному дому оборудуется панорамными окнами или дверьми, играет роль тамбура при выходе на задний двор. Требует устойчивого фундамента, привязанного к основному зданию.
Выбор формы ограничивается только фантазией владельца: круглые, прямоугольные и сложные геометрические конструкции. Пристройка террасы к дому сопровождается установкой перил или ограждений высотой около метра.
Дополнительная особенность открытой площадки в специфическом устройстве полов и материалов для них. Даже крыша не спасает от атмосферных осадков, а их скопление приведет к порче пола. Поэтому при проектировании делают минимальный уклон. Кроме того, нужны дренажные отверстия между досками или в металле (в зависимости от используемого материала).
Терраса своими руками: пошаговая инструкция. Терраса у дома: планирование, ход работ
Терраса у дома может стать любимым местом отдыха всей семьи, встреч с друзьями или уединения с природой. Можно предусмотреть открытую площадку еще на стадии строительства жилья или пристроить ее позже. Раздумываете, как пристроить террасу к дому, но не знаете с чего начать? Мы подскажем, как спланировать пристройку, возвести фундамент и организовать полноценную зону отдыха.
Конструктивные особенности террасы
Место отдыха на приусадебном участке можно сделать в виде закрытой веранды, отдельно стоящей беседки или открытой террасы. Каждая постройка имеет определенные особенности. Терраса, пристроенная к дому, это открытая площадка без стен . Даже наличие крыши и ограждений не обязательно.

Конструктивные особенности террас:
- фундамент – общий с домом или отдельный, но соединенный с основной постройкой;
- возможно расположение около одной стены или по периметру всего дома ;
- площадка достаточно просторная, ее можно разделить на несколько зон.
Сооружение террасы у дома дает следующие преимущества:
- добавление полезного пространства – зону используют в качестве столовой, летней гостиной, игровой площадки , места для принятия солнечных ванн;
- использование декоративных элементов – оформление террасы позволяет значительно преобразить внешний вид дома.
Планирование открытой террасы
Прежде чем приступить к проектированию открытой террасы к дому, необходимо определиться с местом ее размещения и типом конструкции.

Выбор места под будущую постройку
Планируя обустройство террасы, следует учесть такие параметры:
- освещенность сторон дома;
- особенности рельефа участка и тип грунта;
- открывающийся с площадки вид;
- ландшафт территории – пристройка должна сочетаться с дизайном двора, стилем оформления дома.
Интересное решение для домов, расположенных на склоне – многоуровневая терраса. Такая пристройка одновременно выполняет роль ступеней .
Варианты размещения:
- Терраса к дому. Это самое популярное решение, так как его можно реализовать практически у каждого строения. Конструкция требует надежного основания . Возможно изготовление из разных материалов: кирпича, дерева, металла.
- Отдельно стоящая пристройка. Размещение на свободном участке территории. Площадку для отдыха можно сооружать на приподнятом блочном фундаменте или монолитном основании .
- «Кольцевая» терраса. Пристройка нуждается в прочном фундаменте и грамотном расчете. Возможно совмещение открытой части террасы и закрытой веранды .

Какой материал лучше выбрать
Для строительства открытой площадки чаще всего используют дерево. Это оптимальное решение, если планируется сооружение террасы своими руками.
Преимущества деревянных строений:
- простота обработки пиломатериалов;
- легкость материала и возможность сооружения «облегченного» основания;
- привлекательный внешний вид – дерево создает особую атмосферу комфорта и уюта ;
- универсальность – деревянная терраса органично смотрится с домами из разных материалов.
Минусы древесины:
- риск возгорания – на таких площадках лучше не обустраивать зону барбекю ;
- необходимость обработки дерева защитными составами, предупреждающими гниение и порчу насекомыми.
Кирпичная терраса – прочная конструкция, неприхотливая в уходе. Однако ее сооружение требует значительных финансовых затрат . Кроме того, такая пристройка не подойдет для каркасных и деревянных домов.

Разработка и согласование проекта
Определившись с типом террасы, ее размещением и материалом изготовления, необходимо составить эскиз будущей пристройки.
В план-проекте следует отобразить:
- точную конфигурацию, площадь и габариты пристройки;
- тип фундамента;
- массу сооружения;
- вид напольного покрытия, конструкцию крыши и вариант ограждения.
Размер террасы должен быть соразмерен с габаритами дома . Крохотные пристройки, примыкающие к просторному зданию, смотрятся нелепо.
Советы по планировке:
- терраса не должна быть менее 4 кв. м – сделать комфортной такую зону очень сложно;
- лучше отдать предпочтение прямоугольной пристройке – должно быть визуальное соответствие между главной частью дома и конфигурацией террасы;
- если планируется установка камина или печи, то необходимо усилить фундамент и продумать подвод водопровода к площадке.
Проект необходимо согласовать и одобрить. Без получения разрешительных документов терраса будет считаться самостроем , что в будущем усложнит продажу, сдачу в аренду или другие операции с недвижимостью.

Терраса к дому своими руками: ход работ
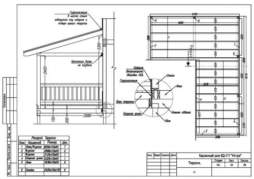
Рассмотрим порядок пристройки террасы к дому. В предлагаемом варианте используется столбчатый фундамент , опорные деревянные балки и дощатый настил . В конструкции предусмотрены крыша и ограждения.
Возведение фундамента
Для возведения столбчатого основания используют бетонные блоки или бордюрный камень. Второй вариант проще в реализации и дешевле.
Терраса своими руками из досок. Строительство террасы к дому своими руками: как сделать фундамент
Существует два главных правила строительства террасы к дому своими руками: пол не должен прогибаться и пружинить под ногами, а перила должны быть прочными, устойчивыми и безопасными. Поскольку такие конструкции в общем случае представляют собой продолжение здания, их чаще всего к нему и крепят. Устройство подобной террасы рассмотрим на конкретном примере.
При строительстве фундамента террасы учитывайте, что он держит всю конструкцию террасы и предотвращает ее сдвиг или уход в землю. Обычно это бетонные блоки размером 30 х 30 см, заглубленные на 15 см в нетронутый плотный грунт.
Как сделать фундамент для террасы самостоятельно? Каждый бетонный блок должен быть положен на песчаную подушку, выступая на 15 см над поверхностью земли, чтобы стойки или балки каркаса террасы не подвергались гниению под воздействием почвы.
Вместо готовых бетонных блоков можно использовать самодельные, отлитые в дощатой опалубке. Однако такое решение пригодно лишь для регионов зоны теплого климата, в условиях непромерзающего или слабо промерзающего грунта. В условиях средней полосы при возведении построек на пучинистых грунтах устройство фундамента для террасы своими руками может быть и другим. Главное, чтобы это основание обеспечивало устойчивость и жесткость всей конструкции. Следует также учитывать конструкцию фундамента основного здания, чтобы взаимное смещение основного здания и пристройки не привело к заметной деформации конструкций.
На этих фото представлены фундаменты террасы к дому, выполненные своими руками:
Перед тем как реализовать задачу под названием «строим террасу своими руками», ознакомьтесь с основными этапами работы.
Бюджетная терраса своими руками. Веранда пристроенная к дому: этапы строительства
Прежде всего необходимо определиться с типом — открытая/закрытая, из какого материала, выбрать тип фундамента. Также необходимо решить, какие размеры она будет иметь, где и как располагаться. Все это желательно прорисовать на плане. Еще лучше — заказать проект. Строительство по проекту у нас, скорее, исключение, но хотя-бы план с размерами и указанием места расположения, привязкой к дорожкам и т.д. у вас быть должен.
Постройка веранды к дому своими руками идет по следующему плану (строим из древесины):
- При помощи колышков и шпагата размечаете контуры.
- Снимаете дерн и плодородный слой. Если этого не сделать, под настилом растительность будет гнить, распространяя ароматы.
- Размечаете фундамент. На этом этапе могут возникнуть вопросы: какой высоты он должен быть. Если фундамент делаете несвязным и «плавающим», уровень настила веранды должен быть на 5-10 см ниже уровня пола. Это необходимо для того, чтобы даже приподнявшись, пристройка не заблокировала входную дверь. Если не хотите чтобы пол был ниже, придется во входной двери делать высокий порог: чтобы гарантировать свободу открывания двери. От того, на какой высоте будет находится пол пристройки, зависит высота опорного бруса. Он прибивается к стене дома, к нему крепят балки перекрытия. По его нижнему краю отбивают высоту фундамента (это два следующих шага).
- Прибиваете к стене опорный брус, по нижнему краю которого отбивается высота фундамента.

Как разметить пристройку: прибиваете на требуемом уровне опорный брус, по его нижнему краю отбиваете высоту фундамента
- Строите фундамент.
- Пока бетон набирает хотя бы половину прочности, завершаете подготовку площадки. Если на дне котлована (плодородный слой сняли) почва хорошо пропускает воду (песчаная, супесчаная), на дно засыпаете щебень. Его можно уплотнить, а можно обойтись и без этого. Если под плодородным слоем суглинок или глина, засыпать котлован придется или таким же грунтом (но не плодородным) или чистой глиной. Ее необходимо хорошо утрамбовывать, чтобы не создавались пустоты, в которых будет скапливаться вода (лучше укладывать размоченную до состояния пасты слоями).
- На готовый фундамент укладывается слой гидроизоляции.
- Выставляются и закрепляются опорные стойки под кровлю.
- Делают обвязку стоек: прибивают по периметру брус толщиной 100*150 мм. Его можно прибить снаружи стоек или между ними. Иногда стойки прибивают после того, как настелили пол. Это — не самый лучший вариант: пол быстрее всего придет в негодность. При таком строении чтобы его заменить, придется разбирать все, вплоть до крыши. Если сначала выставить стойки, а после — пол, его можно будет ремонтировать без проблем.