Качели для детей своими руками из металла. Подвесы
- Качели для детей своими руками из металла. Подвесы
- Детские качели своими руками: чертежи. Из чего можно сделать детские качели
- Детские качели своими руками из профильной трубы. Моделирование качелей
- Качели своими руками из труб чертежи. Изготовление качелей из профильной и полипропиленовой трубы
- Детские качели из профильной трубы своими руками: чертежи. Виды садовых качелей
Качели для детей своими руками из металла. Подвесы
Их можно сделать из ремней, веревок, цепей или профильных труб. Жесткие подвесы устанавливают на пружинах, придающих соединению с основанием больше мягкости и подвижности. Существует четыре пособа крепления к верхней горизонтальной балке.
Способы крепления подвесов
- Узлы — применяются для веревок. Такое решение подойдет в случае, если сиденье обладает небольшой массой. Чтобы веревка не перемещалась по горизонтальному основанию, ее вдевают в петли либо устанавливают ограничители. Как правило, это тонкие прутья, приваренные по краям узла; приклеенные куски материала; углубления; отверстия или обмотка.
- Приваренные петли, изготовленные из согнутых арматурных стержней. В них вставляют звенья цепи, пристегивают карабин и продевают веревку.
- Рым-гайки — они представляют собой кольцо, накручивающееся на болт. Перед их монтажом в балке нужно просверлить два отверстия подходящего размера. В них вставляются винты головкой вверх и затягивается рым-гайка.
- Вращающиеся держатели — чтобы собрать качели на подшипниках своими руками из металла, нужно правильно подобрать детали. Они должны выдерживать расчетную нагрузку. Такое решение применяется для жестких подвесов, изготовленных из профильной трубы. Круглые подшипники помещают в держатели — петли из стальных полос, приваренные к основанию. Они имеют полукруглую форму. В подшипники вставляют стержень с подвесами и фиксируют его боковыми заглушками. Существуют специальные держатели, состоящие из горизонтальной планки с винтами и закрепленном на ней подшипнике с петлей.
Детские качели своими руками: чертежи. Из чего можно сделать детские качели
В первую очередь качели отличаются материалом изготовления. Детям интересно все то, что необычно. Например, старые автомобильные шины послужат отличным сиденьем. Колеса привязывают к веревкам вертикально, горизонтально. Шины разрезают ножом, выворачивают, делают из них кресла, сиденья в виде разных фигур. Наподобие покрышки встречаются даже аттракционы заводского изготовления из пластика. Сиденье оснащено монтажными отверстиями. Родителям остается только своими руками продеть веревки и закрепить их на опоре.

Классическим материалом для сборки качелей считается древесина. В простейшем исполнении аттракцион детям выполнен из отрезка доски, привязанной канатами или цепями к опоре. Сиденье закрепляют с двух концов или по центру. Второй вариант представляет собой тарзанку, на которой дети катаются сидя и стоя. Деревянный капитальный каркас для детских качелей своими руками создают из бруса или бревен. Сиденье детям делают скамейкой или цепляют пару одноместных кресел.

Не менее популярные, но дорогостоящие стальные качели. Каркас сваривают своими руками из труб или профиля. Конструкция получается надежная, выдерживает большие нагрузки. Минусом является подверженность металла коррозии. Периодически конструкцию придется зачищать от ржавчины, окрашивать.

Однако металл – очень удобный материал для изготовления своими руками разборной конструкции. Родители делают детям компактные качели, которые летом используют на улице, а с наступлением холодов переносят внутрь жилого помещения. Каркас такой конструкции соединен болтами и при надобности легко разбирается по запчастям.
Детские качели своими руками из профильной трубы. Моделирование качелей
Наиболее часто встречающийся вариант – это металлические качели из труб, конструкция которых может быть разнообразной. Выбирая тип сооружения, отталкиваются от места установки, если оно постоянное, то качели монтируются основательно, опорные трубы вкапываются и бетонируются, как например детские или большие качели. Если участок небольшой и определиться с местом трудно, тогда модель может быть переносной, в основном это садовые или террасные качели, не несущие особых динамичных нагрузок. Такая конструкция должна быть легкой, в тоже время устойчивой, прочной, а так же практичной и долговечной. Этого можно достичь благодаря металлической профильной продукции, которая предназначена для изготовления надежных и легких каркасов любой сложности.
Определившись с предназначением и местом установки, необходимо выбрать тип сборки: он может быть разборным или сварочным. Часто возникает необходимость спрятать качели, поэтому возможность их разобрать облегчит этот процесс. У такого типа сборки есть особенности: использование резьбового соединения легко выполнить самостоятельно, однако под воздействием нагрузок может появиться люфт, тогда соединения придется периодически поджимать. Сварочный способ, наоборот, предусматривает цельную, жесткую, долгие годы выдерживающую нагрузки конструкцию, но для него нужно сварочное оборудование и умение им пользоваться.
Чертеж – начало моделирования качелей, он поможет продумать форму, ее размеры, рассчитать количество деталей, расход материала. Схематически садовые качели из профильной трубы состоят из опорных стоек, перекладины, подвесов и сиденья. При использовании круглых труб детали берутся те же.

Качели могут быть переносными и разборными или же стационарными
Опорные стойки могут иметь разнообразную конструкцию, главное их предназначение – это устойчивость качелей под действием нагрузки. Чаще всего используют такие формы:
- самая надежная треугольная, Λ или А-видная форма с междуножным углом в 30-40 град. Здесь стабильность рамы можно повысить, придав ей трапециевидную форму;
- рама формы П обязательно дополняется распорками, присоединяемыми к боковым стойкам и нижней перекладине, лежащей на земле;
- Ж-видная форма, удобная для сооружения крыши над качелей.
Так же немаловажно уделить внимание посадочному месту, от его формы зависит комфорт и безопасность качелей. Любой чертеж сиденья можно найти в интернете, однако есть важные моменты относительно конструкции:
- наличие спинки и боковых подлокотников добавит удобства;
- сидение не должно иметь округлых переходов, чтобы избежать соскальзывания;
- небольшой уклон (сидение откинуто слегка назад) снимет напряжение мышц во время раскачивания;
- ребра жесткости упрочнят конструкцию сиденья.
В чертеж можно вносить различные коррективы, например, добавить навес к садовым качелям, который защитит от дождя и солнца. Его форма должна быть широкой, покатой, располагаться на достаточной высоте, чтобы не травмировать голову во время вставания.

Чаще всего для качелей используется каркас А-образной формы
Размеры начинают рассчитывать от ширины посадочного места, в среднем 500 мм на одного взрослого человека, которое крепят на высоте 400-500 мм от уровня земли, или на свое усмотрение, чтобы была возможность удобно сесть, встать и отталкиваться ногами при раскачивании. Далее предусматриваются боковые расстояния от сидения до опор, так как вариант цепных подвесов дает возможность раскачиваться во все стороны. Исключить задевание стоек поможет отступ в 350 мм по бокам от посадочного места. Исходя из этого, длину верхней перекладины составит ширина сидения плюс боковые промежутки. Высота рамы (стойки + перекладина) в любом случае должна быть больше роста человека от 1,7 м (вариант подвесной лавки), либо от 2,5 м (качели для развлечения, где берется рост человека, ставшего ногами на сиденье и промежуток до земли).
Можно для сидения сделать отдельный чертеж, где разработать форму, указать размеры, угол между сиденьем и спинкой. Садовые качели в основном предполагают лавку длиной от 1,5 м, на которой можно прилечь.
Важно! Чертеж должен быть максимально понятным, подробным, так как обращаться к нему придется в процессе сборки постоянно, особенно если он будет отдан в работу специалисту. От этого будет зависеть, насколько готовые качели совпадут с вашим замыслом.
Качели своими руками из труб чертежи. Изготовление качелей из профильной и полипропиленовой трубы
Особенности
Если в семье есть дети, наличие качелей – отличный вариант для проведения свободного времени. В продаже огромное количество садовых качелей. Но собрать конструкцию своими руками всегда интересно и увлекательно. Есть несколько видов металлических садовых качелей, которые можно сделать своими руками:
- для всей семьи (массивная конструкция, состоящая из большой скамейки, на которой могут разместиться молодые и старые);
- для детей (маленькие качели, которые состоят из одного или двух сидений, кататься на них может только ребенок).


Выбор места для установки качелей на участке
Для портативных и стационарных моделей рекомендуется выбирать ровную площадку. Если опоры неровные, шаткая несущая рама изогнется или перевернется. Одна из сторон фундамента придется заглубить слишком глубоко, что приведет к перерасходу материала. Если не удается найти сухой участок, землю засыпают щебнем или кладут плитку.
подвесной диван для отдыха лучше всего разместить в тихом месте, где нет раздражающих шумов. Детские качели лучше разместить под окнами возле дома – если ребенок упадет, нужно будет действовать срочно. Детская площадка должна быть видна. Ее необходимо оторвать от проезжей части и отгородить от нее. Не устраивайте игровое пространство рядом с гаражом или мастерской.
Опоры монтируются на безопасном расстоянии от стены, чтобы исключить возможность удара. Важно расположить конструкцию так, чтобы взгляд не упирался в препятствие: стену или забор.
Стойки нельзя монтировать под трубами и линиями электропередач. Если обрыв провода, они будут возбуждены.
Дети до 6 лет
Дети легкие, что позволяет создать простые в плане конструкции качели. При этом не забывайте о правильном уровне безопасности, который должен быть максимально высоким. Для таких качелей подойдет труба диаметром более 50 мм. Прежде чем приступить к сборке, следует позаботиться о составлении подробного чертежа.
В этом случае вполне уместна Г-образная конструкция высотой от 1,5 до 2 м. Оптимально, если качели будут реализованы в переносном варианте, что достигается приваркой квадратного основания.
Далее используется металлический стержень, который загибают так, чтобы он принял форму крючка. Длина такого отрезка должна быть около 1 м с учетом того, что около 50 см стержня будет находиться под землей. Для обеспечения приемлемой устойчивости достаточно зафиксировать качели в четырех точках.

Чертежи и фото садовых качелей своими руками из металла: размеры и технология
Садовые качели своими руками могут иметь каркас разного типа. Исходя из этой особенности, различают следующие варианты оформления:
- разборная;
- сварной.
Сварные поворотные типы требуют использования сварочного аппарата и другого специального оборудования. В результате у вас будет прочная и жесткая опорная деталь, которая позволит эксплуатировать конструкцию долгие годы без какого-либо риска для здоровья.

Монтажные размеры каркаса садовых качелей в профильных трубах
Если вы не умеете обращаться со сварочным аппаратом, выбирайте качели складной конструкции. Принцип сборки каркаса заключается в скручивании всех элементов изделия болтами и гайками. Такую работу может выполнять каждый.
Примечание! Со временем в металлических садовых качелях ручной работы нити соединений под действием веса и других нагрузок постепенно ослабляются. В результате игра (свободное место) отображается. Он может спровоцировать разрушение конструкции, в результате чего человек может получить травму. Чтобы этого не произошло, закрепите элементы пазами и контргайками. Не забывайте регулярно подтягивать стыки гаечным ключом.

Металлические садовые качели современного дизайна
Краткая классификация садовых качелей своими руками из металла
Самый простой способ – сделать конструкцию по готовым чертежам садовых качелей своими руками из металла. Рассматривая схемы, можно отметить, что конфигурация опор разная.
Основание А-образного каркаса состоит из двух соединенных между собой вверху балок. Перемычка находится примерно посередине их роста. Он предназначен для увеличения жесткости конструкции. Существуют опоры без наличника, Г-образные.
Качели своими руками из труб: извлекаем наслаждение из детства
Если в вашей семье есть дети, наличие качелей – это отличный способ провести свободное время. В продаже есть огромное количество садовых качелей, но собрать конструкцию своими руками – это интересно и увлекательно. Есть несколько видов металлических садовых качелей, которые можно сделать своими руками:
Выбор места для качелей
Для портативных и стационарных моделей рекомендуется выбирать ровную площадку. Если опоры неровные, шаткая несущая рама изогнется или перевернется. Одна из сторон фундамента придется заглубить слишком глубоко, что приведет к перерасходу материала. Если не удается найти сухой участок, землю засыпают щебнем или кладут плитку.
Выбор места для установки качелей
Подвесной диван для отдыха лучше всего разместить в тихом месте, где нет раздражающих шумов. Детские качели лучше разместить под окнами возле дома – если ребенок упадет, нужно будет действовать срочно. Детская площадка должна быть видна. Ее необходимо оторвать от проезжей части и отгородить от нее. Не устраивайте игровое пространство рядом с гаражом или мастерской.
Монтирование опор
Опоры монтируются на безопасном расстоянии от стены, чтобы исключить возможность удара. Важно расположить конструкцию так, чтобы взгляд не упирался в препятствие: стену или забор. Стойки нельзя монтировать под трубами и линиями электропередач. Если обрыв провода, они будут возбуждены.
Выбор диаметра трубы
Дети легкие, что позволяет создать простые в плане конструкции качели. При этом не забывайте о правильном уровне безопасности, который должен быть максимально высоким. Для таких качелей подойдет труба диаметром более 50 мм.
Составление чертежа
Прежде чем приступить к сборке, следует позаботиться о составлении подробного чертежа. Это поможет вам тщательно спланировать процесс сборки и обеспечит максимальную безопасность.
Таким образом, с помощью качелей из труб можно создать простор для игр и развлечений для детей, обеспечив им безопасность и радость.

Детские качели из профильной трубы своими руками: чертежи. Виды садовых качелей
Есть несколько видов подобных конструкций:
- из круглой и прямоугольной трубы;
- для взрослых и детей;
- скамейка, гнездо или индивидуальное сиденье;
- стационарная или переносная (сборная).
Вне зависимости от выбранного вида, этапы изготовления одинаковые:
- Составить проект, приготовить чертеж.
- Сделать разметку на профильной детали и нарезать несколько заготовок.
- Убрать зазубрины и другие механические дефекты.
- Собрать основу – две одинаковые опоры, сварив длинные заготовки под углом 45 градусов.
- Перпендикулярно им установить перекладину.
- Подготовить ямы с помощью бура или лопаты (глубина 80-100 см).
- Уложить на дно песочную подушку, сверху щебень.
- Поставить ножки и залить бетоном.
- Дать постоять минимум сутки, лучше – неделю (до полного высыхания).
Далее к перекладинам приваривают крючки, на которых вешают сиденье. За основу можно взять разные виды крепежа:
- пружинный – только для детей (небольшая нагрузка);
- шпилька с резьбой – ее устанавливают в заранее проделанное отверстие и фиксируют гайкой, шайбой;
- металлический ролик – его прикрепляют к поперечной профильной балке болтами и поддевают трос под проушину.
Еще до застывания бетона конструкцию проверяют на устойчивость, а также на правильность установки с помощью строительного уровня. Далее металл покрывают краской для того, чтобы уберечь его от ржавчины. Пренебрегать этим этапом не стоит, поскольку в противном случае поверхность быстро покроется ржавчиной. Покрасить можно в один цвет или декорировать узорами.
На последнем этапе делают сиденье, подвешивая его на металлические цепи либо на прочные веревки. Они более приятны на ощупь, хотя и менее долговечны – могут растягиваться, из-за чего придется периодически подтягивать.
Сиденье обшивают кожзаменителем либо прочной тканью с водоотталкивающими свойствами. Рекомендуют сделать сиденье мягким, при этом чехол должен быть съемным, поскольку тогда его легко убрать и постирать от загрязнений.
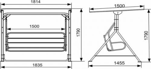
Чертежи с размерами садовых качелей из профильной трубы
В первую очередь необходимо составить чертеж садовых качелей из металлических труб. Разработать его можно самостоятельно или взять за основу один из готовых вариантов. При этом его можно доработать под конкретно свой проект:
- Классический вариант со скамейкой, на которой могут разместиться три человека.

- Еще один вариант со скамейкой.

- Чертежи с видами прямо и сбоку.

- Схема с навесом и длинной скамейкой.




