Террасы для дома. Чем веранда отличается от террасы
- Террасы для дома. Чем веранда отличается от террасы
- Оформление террасы на даче. Терраса на даче: проектирование, постройка и советы по выбору дизайна (125 фото и видео)
- Террасы для дома своими руками. Терраса у дома: планирование, ход работ
- Террасы для дома закрытые поликарбонатом. Фундамент
- Видео строительство веранды, беседки, террасы к дому от А до Я
Террасы для дома. Чем веранда отличается от террасы
Если рассматривать эти сооружения с точки зрения действующего законодательства, а именно, СП 55.13330.2016 Дома жилые одноквартирные. Актуализированная редакция СНиП 31-02-2001 (с Изменением N 1), то отличие есть. Что веранда, что терраса, бывает трех видов:
- пристроенная к дому;
- встроенная в дом;
- встроенно-пристроенная.
Но если веранда – это по определению застекленное, следовательно, и покрытое неотапливаемое помещение и может устраиваться также на перекрытии нижнего этажа, то терраса, открытая, без остекления площадка. С ограждением и навесом, но может быть и без крыши, в том числе и на кровле нижнего этажа. Разница между верандой и террасой – в отсутствии у последней полноценных стен и остекления. То есть, если изначально открытую террасу застеклить частично, сделав стены и проемы под оконные блоки, или полностью, поставив панорамные порталы, в том числе и дверные, по правилам она станет верандой. А если веранду утеплить, провести в ней отопление и использовать в качестве кухни, столовой или ванной (актуально при реконструкции старого жилого фонда с удобствами на улице), она станет вспомогательным помещением.
Пристройка веранды к дому или модернизация террасы обычно проводится с целью организации комфортного места отдыха, куда не будет задувать ветер и попадать дождь. В теплое время года в этих помещениях можно не только собираться за столом, но и использовать их в качестве гостевых, если неожиданно нагрянула большая компания. Нечто среднее между обеими конструкциями, это терраса с мягкими окнами – светопрозрачные полимерные шторки не являются полноценным остеклением, но при необходимости надежно защитят от капризов погоды. А при хорошей погоде полотно скручивается под крышей, абсолютно не перекрывает доступ воздуха и не мешает любоваться видами. Но все же наиболее зрелищно смотрится, что на фотографиях, что в реальности, панорамное или безрамное остекление.

Про отдельно расположенные, открытые или частично огражденные площадки, не граничащие с домом, в СП ничего не сказано. Но в обиходе эти зоны отдыха, иногда совмещенные с костровой ямой или печным комплексом, тоже называют террасами, хотя типом они гораздо ближе к средиземноморским патио. Также в обиходе постоянно встречаются понятия «открытая веранда» и «закрытая терраса», что технически неверно. Как веранда не может быть открытой, потому что это застекленное помещение, так и терраса закрытой, потому что это открытое, огражденное, но не застекленное помещение. Поэтому обиход обиходом, а открытой может быть только терраса, как и закрытой – только веранда.
Оформление террасы на даче. Терраса на даче: проектирование, постройка и советы по выбору дизайна (125 фото и видео)
Обустройство большой и красивой террасы позволяет владельцу участка в любое время года любоваться своим садом. При ее постройке следует учитывать большое количество нюансов. Предлагаем разобраться, как сделать террасу стильной и практичной.

Особенности террас
К основным характеристикам террас можно отнести:
- наличие крыши;
- установку отдельной двери для входа или оформление с ее помощью выхода из дома;
- необходимость выбора материалов для внешнего оформления с учетом тех, которые были использованы для дома;
- расширение с ее помощью площади дома.

Виды террас
По виду обустройства выделяют:
- Пристроенные террасы. Они строятся одном фундаменте с домом.
- Встроенные террасы. Достраиваются на отдельном фундаменте или без него.

Исходя из вида конструкции бывают:
- Открытые террасы. Остекление отсутствует, используются в качестве площадок для отдыха в теплое время года. На зиму мебель с летних террас рекомендуется заносить в дом.
- Закрытые террасы. Полностью остекляются и представляют собой полноценную комнату.
Материалы для строительства
Для постройки террасы можно применять:
- Кирпич. Позволяет быстро и довольно просто создать надежную постройку.
- Дерево. Дает возможность легко обустроить красивую современную террасу.
- Металл. Применяется для каркаса и обшивается другими материалами.
- Пеноблоки. Идеально подходят для теплой закрытой террасы для дачи.
- Стекло. Может использоваться не только для окон, но и для стен.
- Поликарбонат. Используется для постройки нестандартной полностью или частично прозрачной террасы.

Месторасположение веранды
При определении места расположения террасы следует внимательно все обдумать. Она не должна закрывать привлекательные части фасада. Существуют следующие варианты размещения террасы:
- перед домом;
- сбоку дома;
- сразу около двух смежных стен.

Специалисты рекомендуют располагать террасу с восточной стороны дома.

Размер конструкции
Размер террасы зависит от того, где она размещена. Ее ширину рекомендуется делать не менее 1,8 м, иначебудет слишком узкой и неудобной для отдыха. Террасы могут быть разной геометрической формы.

Этапы постройки террасы
Прежде, чем приступать к постройке террасы, следует обдумать ее размеры, конструкцию, форму и используемые материалы.

Для оформления полукруглых террас идеально подходит поликарбонат.

Предлагаем рассмотреть основные этапы постройки закрытой деревянной террасы.
Устройство фундамента
В данном случае вполне достаточно столбчатого фундамента.

Возведение каркаса
Из брусьев 10*10 последовательно выполняют:
- нижнюю обвязку;
- монтаж вертикальных опор;
- закрепление горизонтальных брусьев в местах расположения окон и дверей;
- монтаж верхней обвязки.

Для дополнительной фиксации верхней обвязки непосредственно к дому используют анкеры.

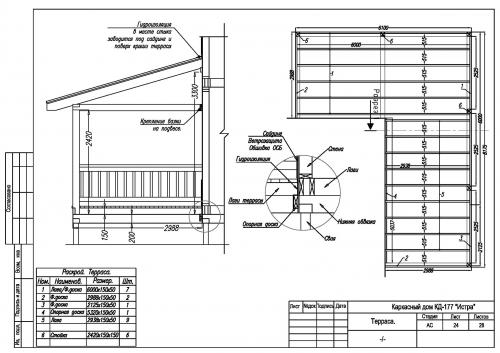
Террасы для дома своими руками. Терраса у дома: планирование, ход работ
Терраса у дома может стать любимым местом отдыха всей семьи, встреч с друзьями или уединения с природой. Можно предусмотреть открытую площадку еще на стадии строительства жилья или пристроить ее позже. Раздумываете, как пристроить террасу к дому, но не знаете с чего начать? Мы подскажем, как спланировать пристройку, возвести фундамент и организовать полноценную зону отдыха.
Конструктивные особенности террасы
Место отдыха на приусадебном участке можно сделать в виде закрытой веранды, отдельно стоящей беседки или открытой террасы. Каждая постройка имеет определенные особенности. Терраса, пристроенная к дому, это открытая площадка без стен . Даже наличие крыши и ограждений не обязательно.

Конструктивные особенности террас:
- фундамент – общий с домом или отдельный, но соединенный с основной постройкой;
- возможно расположение около одной стены или по периметру всего дома ;
- площадка достаточно просторная, ее можно разделить на несколько зон.
Сооружение террасы у дома дает следующие преимущества:
- добавление полезного пространства – зону используют в качестве столовой, летней гостиной, игровой площадки , места для принятия солнечных ванн;
- использование декоративных элементов – оформление террасы позволяет значительно преобразить внешний вид дома.
Планирование открытой террасы
Прежде чем приступить к проектированию открытой террасы к дому, необходимо определиться с местом ее размещения и типом конструкции.

Выбор места под будущую постройку
Планируя обустройство террасы, следует учесть такие параметры:
- освещенность сторон дома;
- особенности рельефа участка и тип грунта;
- открывающийся с площадки вид;
- ландшафт территории – пристройка должна сочетаться с дизайном двора, стилем оформления дома.
Интересное решение для домов, расположенных на склоне – многоуровневая терраса. Такая пристройка одновременно выполняет роль ступеней .
Варианты размещения:
- Терраса к дому. Это самое популярное решение, так как его можно реализовать практически у каждого строения. Конструкция требует надежного основания . Возможно изготовление из разных материалов: кирпича, дерева, металла.
- Отдельно стоящая пристройка. Размещение на свободном участке территории. Площадку для отдыха можно сооружать на приподнятом блочном фундаменте или монолитном основании .
- «Кольцевая» терраса. Пристройка нуждается в прочном фундаменте и грамотном расчете. Возможно совмещение открытой части террасы и закрытой веранды .

Какой материал лучше выбрать
Для строительства открытой площадки чаще всего используют дерево. Это оптимальное решение, если планируется сооружение террасы своими руками.
Преимущества деревянных строений:
- простота обработки пиломатериалов;
- легкость материала и возможность сооружения «облегченного» основания;
- привлекательный внешний вид – дерево создает особую атмосферу комфорта и уюта ;
- универсальность – деревянная терраса органично смотрится с домами из разных материалов.
Минусы древесины:
- риск возгорания – на таких площадках лучше не обустраивать зону барбекю ;
- необходимость обработки дерева защитными составами, предупреждающими гниение и порчу насекомыми.
Кирпичная терраса – прочная конструкция, неприхотливая в уходе. Однако ее сооружение требует значительных финансовых затрат . Кроме того, такая пристройка не подойдет для каркасных и деревянных домов.

Разработка и согласование проекта
Определившись с типом террасы, ее размещением и материалом изготовления, необходимо составить эскиз будущей пристройки.
В план-проекте следует отобразить:
- точную конфигурацию, площадь и габариты пристройки;
- тип фундамента;
- массу сооружения;
- вид напольного покрытия, конструкцию крыши и вариант ограждения.
Размер террасы должен быть соразмерен с габаритами дома . Крохотные пристройки, примыкающие к просторному зданию, смотрятся нелепо.
Советы по планировке:
- терраса не должна быть менее 4 кв. м – сделать комфортной такую зону очень сложно;
- лучше отдать предпочтение прямоугольной пристройке – должно быть визуальное соответствие между главной частью дома и конфигурацией террасы;
- если планируется установка камина или печи, то необходимо усилить фундамент и продумать подвод водопровода к площадке.
Проект необходимо согласовать и одобрить. Без получения разрешительных документов терраса будет считаться самостроем , что в будущем усложнит продажу, сдачу в аренду или другие операции с недвижимостью.

Терраса к дому своими руками: ход работ
Рассмотрим порядок пристройки террасы к дому. В предлагаемом варианте используется столбчатый фундамент , опорные деревянные балки и дощатый настил . В конструкции предусмотрены крыша и ограждения.
Возведение фундамента
Для возведения столбчатого основания используют бетонные блоки или бордюрный камень. Второй вариант проще в реализации и дешевле.
Террасы для дома закрытые поликарбонатом. Фундамент
Веранда или терраса из поликарбоната заведомо легкие сравнительно с основательными пристройками. Поэтому здесь можно ограничиться ненагруженным фундаментом. Чаще заливают ленточный монолит.
Порядок действий выглядит так:
- разметка территории;
- устройство траншей под монолит глубиной 50 см, шириной в среднем 30-40 см;
- формирование минеральной подушки (трамбуется с периодическим увлажнением песок для получения основы толщиной 20 см);
- сооружение опалубки с возвышением над землей на 15-20 см из герметичных стенок (можно укрыть внутри техническим полиэтиленом от 100 микрон), которые должны быть жестко зафиксированы в заданном положении (можно использовать стяжки, укосины, поперечные клинья);
- сборка армирующего каркаса путем перевязки прутьев с учетом минимального сокрытия стержней бетоном на 3 см;
- заливка готовой конструкции раствором с марочной прочностью М150 или М200.
Процесс высыхания железобетонного основания будет проходить в течение 28 дней. Опалубку снимать можно через 2 недели. На протяжение всего времени нужно следить за примерно схожими условиями влажности и температуры. В жару поверхность накрывают полиэтиленом, периодически увлажняют, в мороз утепляют.
Каркасная система
Для сборки несущих конструкций применяются деревянный брус с досками либо различные профиля и трубный металлопрокат. Здесь важно в первую очередь определиться с нагрузкой, которую материалы должны выдержать. Затем выполняется защита изделий от природных явлений, разрушительных процессов. Например, металл зачищают, грунтуют и красят антикоррозионными составами. Дерево пропитывают противогрибковыми и антипиреновыми составами. Далее можно древесину использовать в натуральном виде либо покрыть лакокрасочными средствами для наружных работ.
Крыша террасы из поликарбоната может иметь произвольную форму или строгую геометрию. Скат может быть плоским, в виде арки либо свода. Полотно относительно гибкое, поэтому фантазия может быть ограничена только свойствами материала или сложностью каркасной конструкции. Например, под простой скат собирается простая обрешетка, а под сводчатый используются металлические дуги, которые необходимо надежно и эстетично скрепить между собой.
Как выбрать поликарбонат для навеса: какой лучше для террасы или веранды
Специалисты рекомендуют на этом этапе учесть такие момент относительно радиуса. У каждого полотна имеется ограничение по допустимому сгибанию. Об этом обязательно есть упоминание на этикетке или в сопроводительной документации. Полукруглый каркас должен быть выполнен с небольшим запасом, чтобы не достигать предела прочности поликарбоната на изгиб.
Вот примерные показатели в мм (толщина листа, радиус):
- 4 – 700;
- 6 – 1050;
- 8 – 1400;
- 10 – 1750;
- 16 – 2800.
Чаще выбор останавливается на плоской односкатной крыше. Это объяснимо не только простотой исполнения. Такой вариант, как правило, сочетается с конструкцией двухскатной кровли дома, что создает гармонию. Наклон здесь соблюдается в 30 градусов. Но показатель может быть скорректирован с учетом погодных условий конкретной местности, размеров и состава крыши веранды из поликарбоната.
Обшивка каркаса
Специалисты рекомендуют для летнего помещения использовать полотна толщиной 8-10 мм. Если эксплуатация планируется в течение всего года, то показатель нужно увеличить до 14-16 мм. Здесь дополнительно понадобятся соединительные и кромочные профиля с уплотнителем либо можно использовать герметик.
Начинается обшивка веранды с раскроя заготовок из поликарбоната. Для этого применяется электрический лобзик или циркулярная пила с оснасткой с мелкими зубчиками. Так срез получится с минимальным повреждением полотна.
Крепление материала выполняется с учетом следующих технических требований:
- с каждой стороны листа обязательно оставляется монтажный зазор для теплового расширения;
- крепеж устанавливают минимум в 4 см от кромки в предварительно просверленное отверстие (с запасом на 2 мм по отношению к диаметру винта);
- лист сотового типа располагают на крыше так, чтобы сток конденсата был естественным и свободным.
Для фиксации применяются кровельные саморезы или винты с шайбами. Прорезиненные прокладки нужны, чтобы предотвратить попадание воды во внутренние пустоты полотна. Также выполняется крепление поликарбоната без жесткого давления со стороны металла, без нарушения его целостности (перемычки мягкие и тонкие – легко прогибаются).
Крыша из поликарбоната для террасы может быть покрыта аналогичным материалом, что и стены с ограждениями. Так создается единая композиция. Здесь актуален монолитный лист или ячеистый толщиной 16 мм.