Как построить дом с гаражом — интересные варианты планировки с советами от экспертов (фото и видео)
- Как построить дом с гаражом — интересные варианты планировки с советами от экспертов (фото и видео)
- Одноэтажные дома с гаражом под ключ. Достоинства и недостатки одноэтажных домов
- Построить одноэтажный дом с гаражом. Современные проекты одноэтажных домов с гаражом
- Дом на век. СТРОИТЕЛЬНАЯ КОМПАНИЯ "ДОМ НА ВЕК"
- Дом из пеноблока с гаражом. Что предлагают проектировщики
Как построить дом с гаражом — интересные варианты планировки с советами от экспертов (фото и видео)
Если вам нужны грязезащитные коврики, то вы всегда можете обратиться на https://www.kovrik.ru/gryazezaschitnyie-i-antiskolzyaschie-pokryitiya-iz-rezinyi .
До недавнего времени проживание в городской квартире считалось пределом комфортной современной жизни. Сейчас люди больше предпочтений отдают загородным домам. Существует множество фото дома с гаражом, где гармонично совмещается комфорт проживания и легкая доступность к необходимым объектам.

Таким образом, семья наслаждается чистым загородным воздухом, тишиной и спокойствием.

В случае необходимости, можно сесть на автомобиль и в течение короткого промежутка времени комфортно добраться до нужного городского объекта. Очень удобно!

Конструктивные особенности
Существуют различные проекты домов с гаражом. При их выборе необходимо учитывать следующие особенности:
- размещение дома и длину подъездного пути;
- расположение гаража внутри дома или возле него;
- на каком этаже устанавливается гараж.
При обустройстве дома с гаражом необходимо учитывать длину подъездного пути. Он будет занимать полезную площадь земельного участка.

Важно добиться рациональное использование этой территории. Ее придется расчищать при снегопаде, что составит некоторые затруднения.

Размещение гаража внутри дома дает преимущество в его отапливании, однако понадобиться позаботиться о его вентиляции.

Следует участь на каком уровне располагается гараж. Если он находится в нулевом подземном гараже, то каждый раз придется хорошо прогревать двигатель автомобиля для выезда из него.

Идеальным вариантом будет размещение гаража на одном уровне с прилегающей территорией.
Гараж в одноэтажном доме
Самым простым вариантом является одноэтажный дом с гаражом. Такая конструкция дает некоторые преимущества:
- гараж размещается на краю дома или пристраивается к нему вплотную;
- он находится на одном уровне с домом, что позволяет удобно выезжать на автомобиле;
- есть возможность создать единую систему отопления, позволяющую в зимнее время не тратиться на прогрев автомобиля и садиться уже в прогретую машину.

Это удобное конструктивное решение объединить гараж и жилое помещение.

Дом находится над гаражом
Установить гараж под домом — это интересное решение. Оно имеет свои особенности:
- гараж размещается в цокольном этаже, что требует меньших затрат на его обогрев;
- необходимо предусмотреть удобный выезд из него за счет снижения угла подъема;
- есть возможность разместить рядом мастерскую комнату.

Это традиционное решение, когда человек пытается рационально использовать земельный участок.

Разнообразие проектов
Существуют различные проекты одноэтажных домов с гаражом. Могут быть следующие варианты:
- гараж примыкает с тыльной стороны дома;
- занимает крайнюю комнату;
- он примыкает к коридору.
При обустройстве гаража в одноэтажном доме происходит экономия на строительных материалах, его отоплении.

Одноэтажные дома с гаражом под ключ. Достоинства и недостатки одноэтажных домов
В свое время огромную популярность завоевали двухэтажные дома. Оно и не удивительно, ведь их габариты будут намного компактнее, чем одноэтажных даже при одинаковой площади. Однако, здраво поразмыслив, нетрудно сделать выводы, что одноярусное здание обладает множеством преимуществ, которые во многих случаях будут определяющими критериями при выборе проекта.
- Начнем с самого ответственного этапа любого строительства – возведения фундамента . Для зданий с несколькими этажами требуется закладка более глубокого, усиленного основания. Конечно же, стоимость строительных работ и самих материалов будут в разы выше, чем в случае организации упрощенного фундамента, которого вполне достаточно для большинства одноэтажных домов;
- Благодаря возможности использования облегченного типа основания, снимается большинство ограничений, связанных с особенностями грунта на территории, предназначенной под строительство;
- Также существенно сэкономить можно и при дальнейшем возведении стен. В связи с тем, что на них не возлагается необходимость удерживать на себе вес второго яруса, нет нужды их усиливать. При этом и выбор самих строительных материалов будет более широким; 
- Работы по разводке различных коммуникаций будут более простыми, а значит, потребуют меньшего количества материалов. Да и монтажные работы будут иметь гораздо меньшую стоимость;
- Затраты на закупку материалов и работы также будут существенно меньшими, соответственно себестоимость конструкции будет более приемлемой;
- Еще один факт в пользу экономической выгоды – отапливать одноэтажный дом зимой гораздо дешевле. Да и дом будет нагреваться быстрее и равномернее;
- Одноярусные конструкции можно назвать более безопасными, особенно для тех семей, где есть дети или пожилые люди. Почему? Ответ более чем простой – в таких домах нет лестниц , которые могут представлять собой опасность;
- И наконец, с психологической точки зрения такие постройки воспринимаются целостно, без разделения, как в случае с двухэтажными, а значит и семья позиционирует себя на подсознании, как единое целое. А это очень важно для здоровых отношений между родными.
Построить одноэтажный дом с гаражом. Современные проекты одноэтажных домов с гаражом
Когда семьей принято решение построить дом, необходимо определиться с проектом – будет это типовой или индивидуальный план. Каждый из них имеет свои несомненные преимущества. Например, выбор в сторону типового проекта позволит ускорить начало строительных работ, так как все чертежи уже имеют точные расчеты и соответствующую документацию. Кроме того, такой проект уже не раз был реализован и проверен на практике, что подтверждает надежность конструкции. При составлении собственного уникального плана можно учесть любые пожелания и создать комфортную обстановку со всеми удобствами конкретно для той или иной семьи. При этом есть возможность учесть все географические особенности почвы и построить, например, дом на склоне, как показано на фото, или другую архитектурную форму, что будет смотреться довольно оригинально.
Гараж в цокольном этаже
Обустройство гаража под домом значительно экономит место не только на земельном участке, но и жилую площадь самого строения. Кроме того, это отличный вариант возведения дома на участке под уклоном. Однако при строительстве придется столкнуться с некоторыми трудностями, такими как необходимость организации отвода ливневых и грунтовых вод из помещения и надежной гидроизоляции конструкции. Помимо этого, нужно учесть и тот факт, что в периоды заморозков спуск и подъем будет значительно затрудняться.


Гараж на первом этаже
Хорошим решением станет размещение гаража на первом этаже строения. Таким образом, жилая площадь несколько сократиться, но расположение гаража под одной крышей с домом поможет сэкономить расходы на кровельные материалы. Чаще всего гаражное помещение и стены дома имеют одинаковую отделку, представляя собой целостное композиционное решение. Такая планировка наделяет также дополнительной площадью и подвальное помещение, где, предусмотрев все необходимые коммуникации, можно оборудовать не только хозяйственные, но и жилые помещения, комнаты отдыха.


Одноэтажный дом с гаражной пристройкой
Гараж может являться составляющей дома, но не объединяться с ним единой кровлей, а иметь собственную. Он может быть линейным продолжением жилой части дома или в ансамбле с ним представлять Г-образную форму всей постройки. Нередко крышу гаража нарочито делают плоской, чтобы затем обустроить на ней зону отдыха с террасой или сад, хотя вполне возможно организовать на ней небольшую мансарду, на площади которой будет расположена мастерская или небольшая комната отдыха.


Мансардный дом с гаражом и подвалом
Такое решение можно смело назвать наиболее экономичным, так как при минимальных затратах можно получить сразу три жилых уровня. Обустройство мансарды обходится дешевле выгонки полноценного этажа, а при прокладке необходимых коммуникаций (отопления, электропроводки) здесь можно обустроить полноценную спальню, детскую или комнату для релакса.
То же самое можно сказать и о подвальном пространстве – в его обустройстве первичную роль играют прерогативы той или иной семьи. Одним необходим просторный погреб для хранения продуктов, консервации, бытовых мелочей, а другим – дополнительные жилые комнаты, мини-спортзал или прачечная. Пространство под гаражом также относится к общему подвалу, а его крыша может стать великолепной террасой или добавить площади территории мансарды.


Одноэтажный дом с гаражом и сауной
Строительство дома с гаражным отсеком – само по себе довольно рациональное решение, но некоторые стремятся сделать свой дом более функциональным, достраивая дополнительно террасы, беседки и бани. Например, как показывает фото планировки, к одной из сторон дома, более короткой, примыкает гараж и сауна, откуда открывается выход на террасу. Таким образом, придомовая территория остается полностью свободной от дополнительных строений.


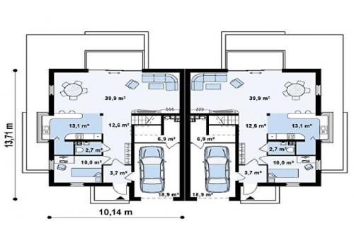
Дуплекс с гаражом
Дуплексом называют дом на две семьи с отдельными коммуникациями и общей стеной. Чаще всего постройки симметричны, но могут иметь общий холл или гараж. Такая планировка удобна для двух разных семейных пар или же большой семьи, состоящей из нескольких поколений. Наличие разных входов обеспечивает сохранение личного пространства, не доставляет неудобств постоянными встречами с соседями. Нередко центральным элементом выступает гаражная территория, которая может быть единым просторным помещением на несколько машин, но чаще всего это две отдельные комнаты, каждая из которых рассчитана на один или два автомобиля.



Дом на век. СТРОИТЕЛЬНАЯ КОМПАНИЯ "ДОМ НА ВЕК"
Организация не действует Причина
Индивидуальный предприниматель прекратил деятельность в связи с принятием им соответствующего решения.
проверено ИНН dex.ru на основании ОГРНИП 315532100004420, ИП Романовский Артур Сергеевич, г Пестово
Строительство домов и бань под ключ и под усадку
Компания «Дом на век» имеет богатый (более 10-ти лет) опыт в строительстве деревянных конструкций. Этот материал проверен временем. Если при возведении применить современные технологии, то дом прослужит вам многие годы, будет добротным и экологически безопасным.
Наша мастера предоставляют услуги по строительству разных конструкций из дерева под ключ. Это может быть небольшой садовый домик, баня или огромный загородный коттедж. 
НАШИ ГЛАВНЫЕ ПРИНЦИПЫ:
- Собственное производство - У нас есть собственное производство бруса. Таким образом цены на проекты домов ниже, чем у конкурентов;
- Проекты стандартные и на заказ - В стоимость проекта дома входят все материалы и работы, указанные в базовой комплектации. Нет скрытых платежей;
- Прозрачность работы - Цены, указанные на сайте - это реальные цены. Никаких доплат! Стоимость строительства не увеличится во время работ;
- Строим под ключ - Заказав дом с отделкой "под ключ" вы получаете уже полностью готовое помещение для жилья. Отделка также входит в этот спектр работ.
НАШИ ПРЕИМУЩЕСТВА:
Загородное строительство домов сегодня пользуется большим спросом. Строительные компании предлагают услуги по постройке домов и бань Большинство имеют опыт, но не имеют собственного производства, как мы.
Что «Дом на век» может предложить вам, для того, чтобы строительство обошлось недорого, заняло минимум времени, а дом был высокого качества?
1) Материалы, необходимые для строительства. Они всегда имеются в наличии на нашем складе;
2) Проекты домов, которые уже опробованы нашей бригадой;
3) Еще до начала строительства согласовать стоимость, которая не будет меняться до сдачи в эксплуатацию.
Будем рады нашему сотрудничеству!
Дом из пеноблока с гаражом. Что предлагают проектировщики
Рассматривая типовые предложения проектировщиков, можно видеть, что различий между пенобетоном и газобетоном они не делают. Причиной тому примерно одинаковые характеристики материалов, при использовании которых не надо усиливать фундамент или увеличивать толщину стен .

Типовые предложения: проект дома с гаражом из пеноблоков
Разница в проектах заключается только в размерах домов и их планировке — да и та типовая. Если в доме не предусмотрен цокольный этаж, на первом этаже, кроме гаража и прихожей располагаются технические помещения, кухня-гостиная, и иногда гостевая спальня.
Хозяйские комнаты обычно находятся на втором этаже или в мансарде. Одноэтажные дома с гаражом проектируются редко, так как чтобы всё это разместить, требуется занять под дом достаточно большую площадь участка.
Вот как планируются типовые дома с гаражом из пеноблоков:
Сегодня не редкость, когда в семье не один автомобиль, а несколько. Поэтому достаточной популярностью пользуются не только проекты гаражей из пеноблоков боксового типа, но и дома со встроенным или пристроенным гаражом на две машины.
Если в доме предусмотрен ещё и цокольный этаж, то гараж может находиться в нём. Въезд в него может осуществляться как с ворот, установленных в стене цоколя, так и с помощью подъёмника, через первый этаж, как на фото.
- Подача автомобиля подъёмником на первый этаж
- Гараж на две машины в виде пристройки к дому из пеноблока – отделка: обшивка сайдингом
- Гараж из пеноблоков на два автомобиля в передней части участка вместо забора
- Версия дома с двумя гаражами – встроенным и пристроенным
- Пристройка с гаражом и отдельным входом
- При дефиците места гараж можно пристроить не рядом с домом, а перед ним
В общем, решить вопрос размещения на участке дома и гаража можно по-разному. И если дом у вас уже есть, а гараж ещё только предстоит построить, его можно примкнуть к дому.

Пеноблочный дом с гаражом в разгаре строительства
Для возведения стен можно использовать пеноблоки — даже если сам дом построен из другого материала. Ведь у них будет собственный фундамент, который будет просто примыкать к существующим конструкциям.
А с применением в наружной отделке тех же материалов, которыми оформлено основное здание, ваш гараж составит с ним единый архитектурный ансамбль.
