Терраса к дому проекты из металла. Красивые проекты домов с террасой и верандой пристроенной к дому (фото)
- Терраса к дому проекты из металла. Красивые проекты домов с террасой и верандой пристроенной к дому (фото)
- Терраса к дому своими руками. Терраса у дома: планирование, ход работ
- Веранда из профильной трубы пристроенная к дому своими руками. Выбор стройматериалов
- Проекты террас пристроенных к дому
- Терраса к дому из дерева. Чем веранда отличается от террасы
- Терраса к дому проекты из металла на сваях. Веранда пристроенная к дому: этапы строительства
- Видео изготовление террасы от А до Я, на металлическом каркасе.
Терраса к дому проекты из металла. Красивые проекты домов с террасой и верандой пристроенной к дому (фото)
Разрабатывая проект террасы или веранды (фото можно найти в интернете), следует сразу определиться с её назначением. Это позволит рассчитать подходящие размеры и подобрать материал . Выделяется несколько вариантов использования этих строений.
Летняя гостиная
Такая идея обустройства предполагает стремление к проведению совместного времени в уютном помещении. Поэтому мебель подбирается максимально удобной, предпочтительнее с мягкой обивкой. В центре обязательно присутствует стол, вокруг которого строится вся задумка остального интерьера.
На террасу уместно установить пластиковые предметы мебели, дополнив их декоративными подушками, пледами. Превосходно впишутся ансамбли, плетёные из лозы или искусственного влагостойкого ротанга.

Если позволяет место, на террасе или веранде можно обустроить полноценную кухню

Интересная идея — разместить в центре стола декоративный очаг с открытым пламенем




Просторная многоуровневая терраса пристроенная к дому
Каминная комната
Пространство крытой веранды приобретет респектабельность и ощущение комфорта, если в ней установить электрический камин в роскошном портале с имитацией старинных изразцов. Рядом уютно расположить кресла на кованых ножках и небольшой журнальный столик.
На открытой террасе с крышей — можно оборудовать дровяной камин с мангалом и решетками для барбекю. Дополняется такой антураж удобным устойчивым столом и стульями.
Важно! Чтобы предотвратить возгорание, стена дома где устанавливается камин, защищается отделкой из огнеупорного материала.

Простой и уютный интерьер веранды с камином

Прекрасное сочетания декоративного камня, с другими отделочными материалами

Правильно подобранный интерьер не только украсит веранду, но и решит её многие функциональные задачи

Камин обустроенный на открытой веранде — не только прекрасный элемент декора, но и отличный источник тепла, способный согреть в холодную погоду

Проект открытой веранды с надстроенным вторым этажом

Просторная веранда с камином и панорамными окнами
Обеденная зона
Легкая пластиковая мебель поможет создать уютную обстановку, если возникает потребность собираться за трапезой на террасе. Потребуется сервант и открытые полки с посудой. Можно вместо традиционного стола сделать барную стойку, подобрав стулья соответствующей высоты.
Терраса к дому своими руками. Терраса у дома: планирование, ход работ
Терраса у дома может стать любимым местом отдыха всей семьи, встреч с друзьями или уединения с природой. Можно предусмотреть открытую площадку еще на стадии строительства жилья или пристроить ее позже. Раздумываете, как пристроить террасу к дому, но не знаете с чего начать? Мы подскажем, как спланировать пристройку, возвести фундамент и организовать полноценную зону отдыха.
Конструктивные особенности террасы
Место отдыха на приусадебном участке можно сделать в виде закрытой веранды, отдельно стоящей беседки или открытой террасы. Каждая постройка имеет определенные особенности. Терраса, пристроенная к дому, это открытая площадка без стен . Даже наличие крыши и ограждений не обязательно.

Конструктивные особенности террас:
- фундамент – общий с домом или отдельный, но соединенный с основной постройкой;
- возможно расположение около одной стены или по периметру всего дома ;
- площадка достаточно просторная, ее можно разделить на несколько зон.
Сооружение террасы у дома дает следующие преимущества:
- добавление полезного пространства – зону используют в качестве столовой, летней гостиной, игровой площадки , места для принятия солнечных ванн;
- использование декоративных элементов – оформление террасы позволяет значительно преобразить внешний вид дома.
Планирование открытой террасы
Прежде чем приступить к проектированию открытой террасы к дому, необходимо определиться с местом ее размещения и типом конструкции.

Выбор места под будущую постройку
Планируя обустройство террасы, следует учесть такие параметры:
- освещенность сторон дома;
- особенности рельефа участка и тип грунта;
- открывающийся с площадки вид;
- ландшафт территории – пристройка должна сочетаться с дизайном двора, стилем оформления дома.
Интересное решение для домов, расположенных на склоне – многоуровневая терраса. Такая пристройка одновременно выполняет роль ступеней .
Варианты размещения:
- Терраса к дому. Это самое популярное решение, так как его можно реализовать практически у каждого строения. Конструкция требует надежного основания . Возможно изготовление из разных материалов: кирпича, дерева, металла.
- Отдельно стоящая пристройка. Размещение на свободном участке территории. Площадку для отдыха можно сооружать на приподнятом блочном фундаменте или монолитном основании .
- «Кольцевая» терраса. Пристройка нуждается в прочном фундаменте и грамотном расчете. Возможно совмещение открытой части террасы и закрытой веранды .

Какой материал лучше выбрать
Для строительства открытой площадки чаще всего используют дерево. Это оптимальное решение, если планируется сооружение террасы своими руками.
Преимущества деревянных строений:
- простота обработки пиломатериалов;
- легкость материала и возможность сооружения «облегченного» основания;
- привлекательный внешний вид – дерево создает особую атмосферу комфорта и уюта ;
- универсальность – деревянная терраса органично смотрится с домами из разных материалов.
Минусы древесины:
- риск возгорания – на таких площадках лучше не обустраивать зону барбекю ;
- необходимость обработки дерева защитными составами, предупреждающими гниение и порчу насекомыми.
Кирпичная терраса – прочная конструкция, неприхотливая в уходе. Однако ее сооружение требует значительных финансовых затрат . Кроме того, такая пристройка не подойдет для каркасных и деревянных домов.

Разработка и согласование проекта
Определившись с типом террасы, ее размещением и материалом изготовления, необходимо составить эскиз будущей пристройки.
В план-проекте следует отобразить:
- точную конфигурацию, площадь и габариты пристройки;
- тип фундамента;
- массу сооружения;
- вид напольного покрытия, конструкцию крыши и вариант ограждения.
Размер террасы должен быть соразмерен с габаритами дома . Крохотные пристройки, примыкающие к просторному зданию, смотрятся нелепо.
Советы по планировке:
- терраса не должна быть менее 4 кв. м – сделать комфортной такую зону очень сложно;
- лучше отдать предпочтение прямоугольной пристройке – должно быть визуальное соответствие между главной частью дома и конфигурацией террасы;
- если планируется установка камина или печи, то необходимо усилить фундамент и продумать подвод водопровода к площадке.
Проект необходимо согласовать и одобрить. Без получения разрешительных документов терраса будет считаться самостроем , что в будущем усложнит продажу, сдачу в аренду или другие операции с недвижимостью.

Терраса к дому своими руками: ход работ
Рассмотрим порядок пристройки террасы к дому. В предлагаемом варианте используется столбчатый фундамент , опорные деревянные балки и дощатый настил . В конструкции предусмотрены крыша и ограждения.
Возведение фундамента
Для возведения столбчатого основания используют бетонные блоки или бордюрный камень. Второй вариант проще в реализации и дешевле.
Веранда из профильной трубы пристроенная к дому своими руками. Выбор стройматериалов
Пристроить веранду к дому можно из различных материалов:
- деревянный брус в качестве конструктива плюс обшивка досками и вагонкой;
- металлические профильные трубы с прозрачной обшивкой из поликарбоната или стекла;
- силикатный или керамический кирпич, из которого выкладываются сплошные стены либо только столбы.

Деревянная терраса, сделанная своими руками из бруса – наиболее распространенный бюджетный вариант. Его преимущество – в простоте и дешевизне строительства, продолжающегося от 3 до 7 дней (без учета времени на застывание бетона) в зависимости от квалификации исполнителя. Постройка легкая, а потому не нуждается в капитальном дорогостоящем фундаменте. Недостаток единственный – дерево необходимо красить не реже 1 раза в 3 года, чтобы защитить от воздействия окружающей среды.
Металлический каркас обойдется дороже деревянного, но выигрывает у последнего по долговечности. В остальном веранда из профилей повторяет плюсы деревянной постройки: она легкая, быстровозводимая (даже без сварки, на болтах) и довольно прочная. Есть дополнительный бонус: устройство фундамента можно сильно упростить, если качественно забетонировать железные стойки в земле, как это делается для заборов.

Кирпичная кладка, хоть и отличается долговечностью, сложна и трудоемка в исполнении. Чтобы построить веранду из кирпича или пеноблока, нужно заложить капитальный ленточный фундамент, а на пучинистых грунтах – залить железобетонную плиту по всей площади сооружения. Эти виды работ требуют надлежащей квалификации, поэтому их рекомендуется доверять добросовестным строителям. Далее мы предлагаем рассмотреть варианты деревянных и металлических сооружений, которые вы способны реализовать самостоятельно.
Проекты террас пристроенных к дому
Если строго следовать определению термина «архитектурная терраса», то это открытая площадка приподнятая над землей. Но пристроенные к дому террасы имеют свои особенности, которые не всегда совпадают с характеристикой классической конструкции.
Особенности расположения
Если рассматривать террасу как место для отдыха, есть несколько вариантов расположения относительно дома:
- На солнечной или подветренной стороне. Это условие актуально для регионов с коротким летом и ярко выраженной розой ветров. Хотя для южных районов важнее ландшафтные особенности местности, чем сторона света.

- На заднем дворе, если есть сад, лужайка, бассейн, детская площадка или зона барбекю. Это расширяет возможности отдыха и позволяет контролировать маленьких детей.

- Рядом с главным входом, если есть большой палисад сили высоким забором, которые закрывают от любопытных взглядов.

Как один из вариантов, можно обустроить террасу, опоясывающую дом. Если позволяют размеры участка и финансовые возможности.

Особенности конструкции
Конструкция каждого сооружения имеет обязательные и «опционные» элементы. Минимальный набор пристроенной к дому террасы состоит из фундамента и настила. Третье обязательное условие — одна общая с домом стена, у которой есть отдельная входная дверь, соединяющая с какой-то комнатой (чаще всего гостиной).
Еще один элемент зависит от высоты цоколя дома. Настил террасы обычно расположен в одном уровне с полом первого этажа. Если цоколь высокий, то, чтобы спуститься во двор, делают либо ступеньку, либо небольшую лестницу с перилами.

Для повышения комфорта в большинстве случае террасы имеют крышу для защиты от осадков. Также обычно делают ограждение, чтобы обезопасить членов семьи и гостей от случайного падения с настила на землю.

А открытые пристройки (без навеса) предусмотрительные хозяева оснащают специальными маркизами, которые при необходимости можно открыть.

Эти особенности, а также вид фундамента влияют на проект пристройки.
Особенности выбора фундамента и разработки проекта
Вид фундамента, и в целом проекта, зависит от характера самого здания и сезонности проживания.
Вновь строящиеся дома и дачи с круглогодичным проживанием обычно проектируют с постоянными террасами, конструкция которых полностью связана с домом на уровне фундамента и крыши. Но и здесь могут быть нюансы. Если у дома фундамент может быть полного профиля (заглубленный, с подвалом или цокольным этажом), то для террасы выбирают мелкозаглубленный тип ленточного основания.

А крыша может быть как общей с домом, так и отдельной с опорой на стену и столбы (для строений с двумя и более этажами).

Для пристройки к уже стоящему дому фундамент террасы могут связать с основным, если их виды одинаковые. Но, когда позволяет грунт и вес строения, могут выбрать и более легкое основание — столбчатое. А в качестве крыши делают отдельный навес — нецелесообразно переделывать стропильную конструкцию дома.

Для дачи сезонного проживания или, например, возле бани можно предусмотреть возможность установки временной террасы. Если она открытая, то достаточно подготовить щебеночное основание, на которое в теплое время можно укладывать щиты из палубной доски. Чтобы перевести временную террасу в разряд закрытой, можно обустроить в этом месте навес, примыкающую перголу или предусмотреть возможность установки на стене террасной маркизы.
Интересный проект на сваях — смотрите в следующем ролике:
Выбор материалов для настила
Для настила террасы используют палубную доску или декинг. Палубная доска может быть и гладкой (как половая), но чаще для террас используют рифленый профиль, который обладает антискользящими свойствами и способностью отвода воды.

Декинг это другое название палубной доски, но так часто называют и парковый паркет, который по форме напоминает модульную разновидность обычного паркета.
Материалами для изготовления такого покрытия обычно выступают стойкие к влажности породы дерева. Но можно использовать и обычную сосну, прошедшую специальную обработку.

Всего можно выделить три типа материалов: из древесины отечественных или экзотических пород дерева, из древесно-полимерного композита. Экзотические породы для террасы «своими руками» можно не рассматривать — цена декинга в пересчете на 1 м2намного выше доски из отечественной древесины.
Отечественные породы дерева

Террасная доска из сосны наиболее доступная. Достоинства: распространенность, легкость в обработке и сушке, ценовая доступность. Недостатки: невысокая твердость (2.5 по шкале Бринелля), склонность к гниению в условиях высокой влажности и при длительном контакте с водой.
Примечание. Последний недостаток особенно сильно проявляется, если древесина находится близко к земле и плохо проветривается. А именно такие условия эксплуатации у пристроенной к дому террасы.
Терраса к дому из дерева. Чем веранда отличается от террасы
Если рассматривать эти сооружения с точки зрения действующего законодательства, а именно, СП 55.13330.2016 Дома жилые одноквартирные. Актуализированная редакция СНиП 31-02-2001 (с Изменением N 1), то отличие есть. Что веранда, что терраса, бывает трех видов:
- пристроенная к дому;
- встроенная в дом;
- встроенно-пристроенная.
Но если веранда – это по определению застекленное, следовательно, и покрытое неотапливаемое помещение и может устраиваться также на перекрытии нижнего этажа, то терраса, открытая, без остекления площадка. С ограждением и навесом, но может быть и без крыши, в том числе и на кровле нижнего этажа. Разница между верандой и террасой – в отсутствии у последней полноценных стен и остекления. То есть, если изначально открытую террасу застеклить частично, сделав стены и проемы под оконные блоки, или полностью, поставив панорамные порталы, в том числе и дверные, по правилам она станет верандой. А если веранду утеплить, провести в ней отопление и использовать в качестве кухни, столовой или ванной (актуально при реконструкции старого жилого фонда с удобствами на улице), она станет вспомогательным помещением.
Пристройка веранды к дому или модернизация террасы обычно проводится с целью организации комфортного места отдыха, куда не будет задувать ветер и попадать дождь. В теплое время года в этих помещениях можно не только собираться за столом, но и использовать их в качестве гостевых, если неожиданно нагрянула большая компания. Нечто среднее между обеими конструкциями, это терраса с мягкими окнами – светопрозрачные полимерные шторки не являются полноценным остеклением, но при необходимости надежно защитят от капризов погоды. А при хорошей погоде полотно скручивается под крышей, абсолютно не перекрывает доступ воздуха и не мешает любоваться видами. Но все же наиболее зрелищно смотрится, что на фотографиях, что в реальности, панорамное или безрамное остекление.

Про отдельно расположенные, открытые или частично огражденные площадки, не граничащие с домом, в СП ничего не сказано. Но в обиходе эти зоны отдыха, иногда совмещенные с костровой ямой или печным комплексом, тоже называют террасами, хотя типом они гораздо ближе к средиземноморским патио. Также в обиходе постоянно встречаются понятия «открытая веранда» и «закрытая терраса», что технически неверно. Как веранда не может быть открытой, потому что это застекленное помещение, так и терраса закрытой, потому что это открытое, огражденное, но не застекленное помещение. Поэтому обиход обиходом, а открытой может быть только терраса, как и закрытой – только веранда.
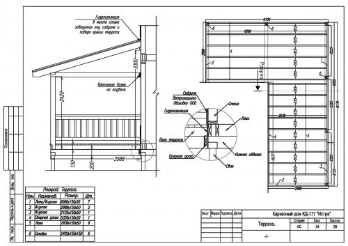
Терраса к дому проекты из металла на сваях. Веранда пристроенная к дому: этапы строительства
Прежде всего необходимо определиться с типом — открытая/закрытая, из какого материала, выбрать тип фундамента. Также необходимо решить, какие размеры она будет иметь, где и как располагаться. Все это желательно прорисовать на плане. Еще лучше — заказать проект. Строительство по проекту у нас, скорее, исключение, но хотя-бы план с размерами и указанием места расположения, привязкой к дорожкам и т.д. у вас быть должен.
Постройка веранды к дому своими руками идет по следующему плану (строим из древесины):
- При помощи колышков и шпагата размечаете контуры.
- Снимаете дерн и плодородный слой. Если этого не сделать, под настилом растительность будет гнить, распространяя ароматы.
- Размечаете фундамент. На этом этапе могут возникнуть вопросы: какой высоты он должен быть. Если фундамент делаете несвязным и «плавающим», уровень настила веранды должен быть на 5-10 см ниже уровня пола. Это необходимо для того, чтобы даже приподнявшись, пристройка не заблокировала входную дверь. Если не хотите чтобы пол был ниже, придется во входной двери делать высокий порог: чтобы гарантировать свободу открывания двери. От того, на какой высоте будет находится пол пристройки, зависит высота опорного бруса. Он прибивается к стене дома, к нему крепят балки перекрытия. По его нижнему краю отбивают высоту фундамента (это два следующих шага).
- Прибиваете к стене опорный брус, по нижнему краю которого отбивается высота фундамента.

Как разметить пристройку: прибиваете на требуемом уровне опорный брус, по его нижнему краю отбиваете высоту фундамента

Так выглядит собранный каркас веранды, пристроенной к дому. Промежуточные стой ки нужны, только если ширина веранды будет более 3 метров.
Это только общие этапы. Чтобы иметь более полное представление о том, как сделать веранду к дому, далее рассмотрим самые проблемные моменты строительства подробнее.
Если веранду пристраивают к дому, фундаменты очень редко делают связными. Во-первых, дом уже отстоялся, усадка прошла. Если к нему жестко присоединить «свежую» постройку, неизбежно возникнут проблемы. Если и можно их связать, то только на стабильных, надежных грунтах, на которых никаких подвижек не бывает. Во-вторых, под пристройки такого типа редко делают тяжелые фундаменты. Сама постройка получается легкой — особенно открытая из дерева или каркасная — и несущей способности свайного или столбчатого фундамента достаточно.
Вообще же ставят веранды на такие же фундаменты, как и дома. Другое дело, что большая их часть стоит на столбчатых основаниях: затраты небольшие, времени требуется немного. И хотя все архитекторы и проектировщики утверждают, что правильный столбчатый фундамент поставить намного сложнее, чем ленточный (правда ленточный намного дороже), народ ставит именно столбы.
Столбчатый и свайный фундамент
Если вы решили пристроить веранду к деревянному дому, можно ставить столбчатый фундамент. Чтобы сделать его своими руками, вам нужно узнать, на какую глубину и на каком расстоянии ставят опоры. Расстояние между столбиками зависит от материала, из которого будет построена пристройка. Если это легкие материалы — древесина или легкая каркасная конструкция — можно ставить с шагом в 1,5 метра. Для более тяжелых расстояние должно быть от 1 метра.

Столбчатый фундамент под веранду — столбики сложены из кирпича. Эта открытая веранда пристроена к деревянному дому. Дом стоит на ленточном фундаменте. Фундаменты пристройки и дома не связаны
При выборе глубины залегания столбиков есть два подхода:
- Закопаться ниже глубины промерзания грунта. Так поступают на водонасыщенных грунтах, склонных к пучению. В этом случае веранда будет стоять на одном уровне, не меняя свое положение, независимо от сил пучения. Для столбчатого фундамента это имеет смысл только если глубина промерзания не больше 1,2 метра. На большие глубины проще сделать свайный фундамент (лучше — сваи ТИСЭ). Скважины для свай не очень сложно делать даже если требуется пробурить 2 метра. Для устройства столбиков под каждый из них копать котлован такой же глубины — сложно и долго.
- Сделать фундамент мелкого заложения: на 20-30 см ниже плодородного слоя. В этом случае получите плавающую веранду, которая будет пониматься и опускаться при морозном пучении. Построить такое сооружение намного проще, но каждую весну вам придется бороться с последствиями пучения. Разные столбы будут «гулять» по-разному и придется каким-то образом выправлять ситуацию. Но это — на пучнистых грунтах (глины, суглинки). На стабильных грунтах, не склонных к пучению таких проблем не будет.


